2026尚湾林语在售详情|上海新房尚湾林语售楼处电话 | 在售户型 | 小区配套 | 最新价格 |绿化率 | 容积率 | 尚湾林语楼盘详情
扫描到手机,新闻随时看
扫一扫,用手机看文章
更加方便分享给朋友
上海闵行尚湾林语
☎️VIPline:4009983632【售楼热线】☎️
☎️置业热线:15021170693(同微信)☎️
➤售楼处〢欢迎咨询〢提前预约可享内部优惠〢➤

基本信息
项目地址: 闵行区颛桥沪闵路
开发商: 上海地产星侨置业有限公司
容 积 率: 约1.8
占地面积:
水电燃气: 民用
购房政策: 可贷款
预 售 证: 闵行房管(2024)预字0000107号
规划户数: 1726户
建筑面积: 约㎡
首付比例: 30%起
绿 化 率: 约35%
产权年限: 70 年
装修状况: 精装修
规划车位: 2060个
☎️VIPline:4009983632【售楼热线】☎️
一房一价表如下
板块价值
根据上海2035计划,上海将建设具有全球影响力的科创中心。国际科创湾区——大零号湾将以上海交通大学、华东师范大学为核芯,目标至2035年形成万亿市值高新技术企业集群,成就上海科创中心重要策源地。
核心产业驱动
聚焦前沿产业集群引领 虹吸人才涌进 大零号湾推动【C-T-O】3大功能区域建设,拥有两所985的科创引擎,凭借“产学研”一体化目建设模式☎️VIPline:4009983632【售楼热线】☎️
配套价值
【立体交通】5号线剑川路、15号线、嘉闵线(预计2027年开通),虹梅路高架,沪金高速。
【繁华商业】龙湖天街、颛桥万达、龙湖星悦荟、满天星生活广场、配套约21.5万方商办。
【文脉之上】约3.44万方教育用地,紧邻“环交大闵行校区基础教育生态区”。
上海交大闵行幼儿园、上海交大附属实验小学、上海交大附属第二中学、交大附中、上海交通大学、华东师范大学等。
☎️VIPline:4009983632【售楼热线】☎️
户型鉴赏+样板展示:
尚湾林语二期即将加推建面约81-130㎡的2-3房,多样化的户型产品,将满足不同预算购房者的不同需求!
建面约81㎡2房2厅1卫。
建面约81㎡样板房照片如下:
建面约93㎡3房2厅1卫
建面约93㎡样板房照片如下
建面约100、101㎡3房2厅2卫。
建面约101㎡样板房照片如下:
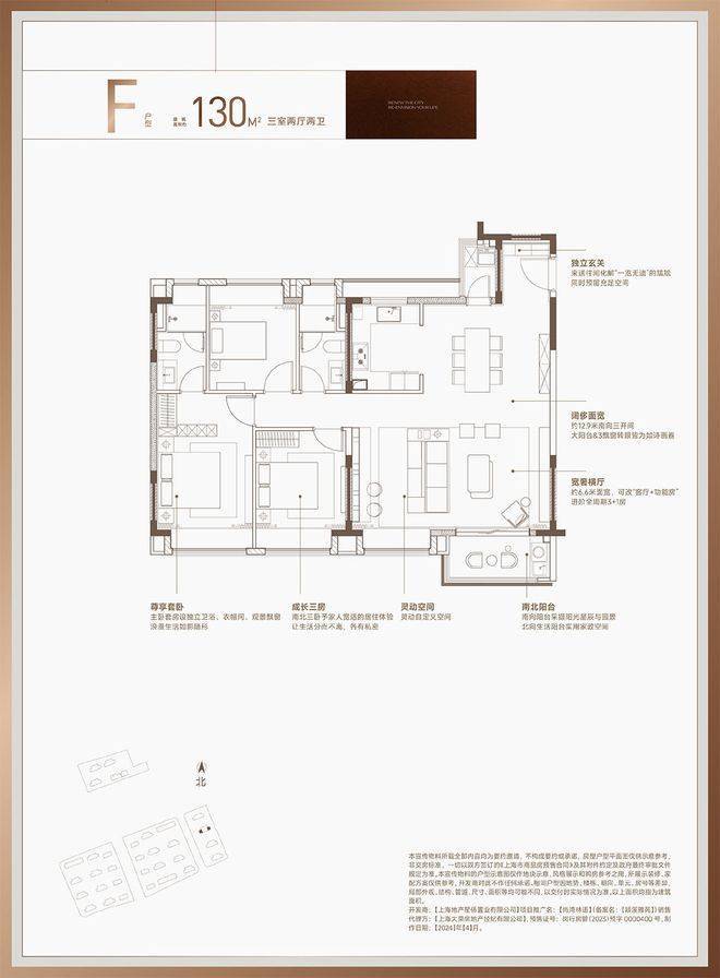
建面约130㎡3房2厅2卫
在装修方面,尚湾林语配备了中央空调和地暖,厨具用了西门子,卫浴是唯宝、高仪,空调用的日立,地暖及热水器是威能(或同等品牌,以具体交付为准)。
装修档次媲美市区10万+项目,享受千万豪宅的居住体验!

101㎡3房样板间展示如下
上海闵行尚湾林语
☎️VIPline:4009983632【售楼热线】☎️
☎️置业热线:15021170693(同微信)☎️
➤售楼处〢欢迎咨询〢提前预约可享内部优惠〢➤
声明:本文由入驻焦点开放平台的作者撰写,除焦点官方账号外,观点仅代表作者本人,不代表焦点立场。
