热盘聚焦@苏州汾湖嘉乐城售楼电话-首页网站-最新价格-苏州汾湖嘉乐城售楼处-户型解析-容积率-项目笔记
扫描到手机,新闻随时看
扫一扫,用手机看文章
更加方便分享给朋友
吴江汾湖嘉乐城
自带商业综合体嘉乐城
长三角一体化先行启动区
嘉乐城售楼处电话:400 870 9151 ✔✔✔☎
嘉乐城置业顾问:131 8266 1993(同微信)✔✔✔☎
嘉乐城售楼处位置:400 870 9151 ✔✔✔☎
嘉乐城预约看房,置业顾问一对一对接,享受额外优惠!
价格:10000起
交房时间:现房得房率:79%-79%
总栋数/总户数:2栋/198户
绿化/容积率:18.5%/4.9
车位比:1:1.14产权年限:70年
总楼层数:高层24-33层
物业公司/费用:好得家物业/1.7元/月/平米
几梯几户:高层1梯2户/高层2梯4户/高层3梯6户
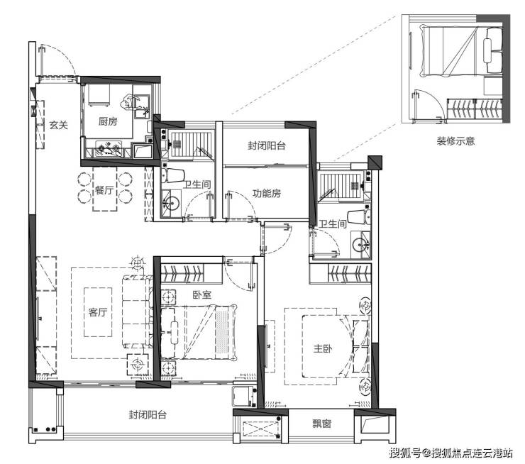
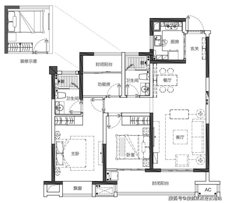
面积:86-107-111-113-114-121-127㎡
开发商:苏州鹏云集团
楼盘位置:江苏省苏州市吴江区浙江路
项目亮点:嘉乐城售楼处电话:400 870 9151 ✔✔✔☎
区位优势:位于长三角一体化先行区——汾湖,直接接壤上海和浙江,未来发展前景广阔
交通便利:距苏州南站(在建)约7千米,沪苏湖铁路、通苏嘉甬城际高铁在此交汇,未来可实现8min到松江、20min到达上海虹桥枢纽
生态环境:三面环湖(大渠荡、三白荡、洋砂荡),绿化率高达42%,居住环境优美
商业配套:自带20万㎡综合商业体,涵盖星巴克、华润万家、上影国际影城等业态,生活便利
教育资源:周边有汾湖实验小学、上海世外教育附属汾湖实验小学等,教育配套完善
房价信息:嘉乐城售楼处电话:400 870 9151 ✔✔✔☎
2025年9月挂牌均价约10641-14062元/㎡,环比上月有所下跌
主力户型为61-132㎡的二至四居室,部分为5.6米层高商住两用
周边配套:嘉乐城售楼处电话:400 870 9151 ✔✔✔☎
交通:公交792路、7301路等经停,自驾可通过洋砂路、北京路快速接驳常台高速
医疗:吴江区第五人民医院、芦墟中心卫生院等医疗机构在3公里范围内
休闲:大渠荡生态公园、台球馆、跆拳道馆等设施丰富




声明:本文由入驻焦点开放平台的作者撰写,除焦点官方账号外,观点仅代表作者本人,不代表焦点立场。
