杭州融创杭望云潮城发展怎样?教育,医疗,杭州杭望云潮城商业配套方面
扫描到手机,新闻随时看
扫一扫,用手机看文章
更加方便分享给朋友
【融创杭望云潮城】杭州主城核心,地铁1号线旁,总价300万级,配套齐全,名校环绕,精装品质大盘!
融创杭望云潮城售楼热线:4008378831


随着杭州城市发展的不断壮大,主城区的房价逐年攀升,让许多购房者望而却步。然而,在繁华喧嚣的城市中,仍有那么一片宁静与机遇并存的区域,等待着有远见的购房者去发现。今天,就让我们一起来领略总价约300万级的融创杭望云潮城,为何成为杭州主城核心的性价比之选。

融创杭望云潮城,位于杭州钱塘区下沙金沙湖CBD,是一个集交通、商业、教育、医疗、生态于一体的全优配套大盘。项目周边地铁1号线高沙站直线约650米,地铁4号线文泽路站直线约830米,轻松连接城北、城西、钱江新城等核心区域。此外,周边两大龙湖天街、银泰百货、印象城等商业综合体环绕,满足您的购物娱乐需求。


龙湖金沙天街实景

龙湖吾角天街实景
在教育方面,融创杭望云潮城周边汇聚了杭州电子科技大学、浙江传媒学院、中国计量大学、浙江理工大学等高校,人文氛围浓厚。同时,项目附近有新旭日幼儿园、景苑小学、景苑中学、杭州市实验外国语学校等一站式教育资源,为您的孩子提供优质的教育环境。



医疗设施方面,项目直线距离两公里内拥有两大三甲医院——浙江省中医院下沙院区、邵逸夫医院下沙院区,为您的健康保驾护航。此外,周边还有杭州市实验外国语学校等高校,人文气息浓厚。

邵逸夫医院(下沙院区)示意图
在生态休闲方面,融创杭望云潮城周边拥有“省级优质综合公园”的怡乐园,以及有“杭州小三亚”之称的金沙湖公园,让您在繁忙的生活中享受片刻的宁静与惬意。此外,项目周边还有钱塘湖大剧院等文化设施,为您的生活增添丰富的色彩。

金沙湖实景
另一个地标级建筑—— 金沙湖大剧院,也计划于2022年建成投用,1365座剧院厅和500座的多功能厅,将大大丰富平时的文化生活。


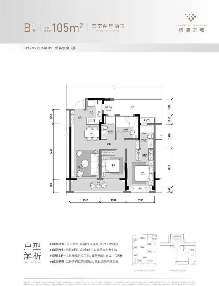
在户型设计方面,融创杭望云潮城此次加推1#、9#楼,建面约105㎡、130㎡、142㎡方。其中,建面约105㎡三房两厅两卫中间套小户型,刚需家庭首选,小三居的面积段,在保证舒适度的同时,还能很好地控制总价。建面约130方户型四房两厅两卫,既把总价控制地很好,也可以满足大家庭的生活空间需求。而建面约142㎡的大户型,则是市场上同价位同建面户型都难得一见的优质产品。
建面约105㎡三房两厅两卫中间套小户型,刚需家庭首选,小三居的面积段,在保证舒适度的同时,还能很好地控制总价。

3开间朝南、长约6.5米的大阳台,进门一面是玄关,一面是厨房;主卧套房更是奢华,不管是尺度还是生活仪式感都很到位。


在装修方面,融创杭望云潮城秉承匠心精神,为您呈现品质生活。项目采用日立中央空调和环都拓普新风系统,提供令人满意的居住舒适度。LOW-E中空玻璃,保温、隔热、降噪效果俱佳。厨房是U型设计,西门子厨电三件套和嵌入式洗碗机给主人一个快乐的烹饪空间。还有手摇开窗器、智能马桶、阳台倾斜扶手以及工艺成本要求更高的墙纸墙面等等细节,让您的生活更加便捷舒适。
总结:
融创杭望云潮城,作为一个名校环绕、地铁旁、总价300万级的大盘,以其完善的配套设施、优越的地理位置、高品质的装修标准,成为杭州主城核心的性价比之选。在这里,您将享受到便捷的交通、丰富的商业、优质的教育、完善的医疗和宜人的生态资源,让您的生活更加美好。户型设计合理,装修品质上乘,让您在繁华都市中拥有一片宁静与舒适。融创杭望云潮城,值得您信赖的品牌,让您的生活触手可及!
融创杭望云潮城售楼热线:4008378831

声明:本文由入驻焦点开放平台的作者撰写,除焦点官方账号外,观点仅代表作者本人,不代表焦点立场。
