吴江汾湖自带商业综合体现房-热盘测评-【2025嘉乐城 -最新来袭】首页网站-最新价格-户型图-容积率-商业配套-嘉乐城-楼市分析

连云港楼市发布 2025-07-29 05:04:00
用手机看
扫描到手机,新闻随时看

扫一扫,用手机看文章
更加方便分享给朋友

售楼热线:400 870 9151 ✔✔✔☎ 置业顾问:131 8266 1993(同微信)✔✔✔☎

吴江汾湖嘉乐城

自带商业综合体嘉乐城

长三角一体化先行启动区

售楼热线:400 870 9151 ✔✔✔☎

置业顾问:131 8266 1993(同微信)✔✔✔☎

售楼处位置:400 870 9151 ✔✔✔☎

预约看房,置业顾问一对一对接,享受额外优惠!

价格:11000起

交房时间:现房得房率:79%-79%

总栋数/总户数:2栋/198户

绿化/容积率:18.5%/4.9

车位比:1:1.14产权年限:70年

总楼层数:高层24-33层

物业公司/费用:好得家物业/1.7元/月/平米

几梯几户:高层1梯2户/高层2梯4户/高层3梯6户

面积:86-107-111-113-114-121-127㎡

开发商:苏州鹏云集团

楼盘位置:江苏省苏州市吴江区浙江路

百湖之城 生态宜居住区

汾湖拥有得天独厚的自然宜居禀赋,区域内有143个天然湖泊,其中重点保护湖泊约23个,水域覆盖率达到40%,绿化率高达42%,形成了以洋砂荡为中心的最具活力“城市核心蓝绿带”。

高新产业聚集 助力城市发展

汾湖高新区现有各类企业约2800余家,拥有永鼎股份、康力电梯、东吴水泥、欧普照明四家上市公司,还有华为研发基地、京东智能产业园、英诺赛客等头部企业落户于此。同时,投资超260亿的人工智能产业制造基地现已开工,将成为汾湖的产业新地标,拉动汾湖经济的飞跃式发展。

高铁直达 虹桥下一站

苏州南站(汾湖站)位于长三角一体化先启区——汾湖,沪苏湖铁路、通苏嘉甬城际高铁于此呈“十字”交汇,其中沪苏湖铁路由上海虹桥枢纽引出,途经上海松江、苏州吴江,至浙江湖州站,通车后将实现由汾湖8分钟到松江,快速到达上海虹桥枢纽,将汾湖与上海更紧密的联系在一起。

交通配套:

项目周边公交站点密集,如文化中心站仅70米,可通过7308路、792路等直达;未来将无缝对接上海地铁17号线和苏州轨交10号线,并毗邻沪苏湖高铁苏州南站(约7公里),通车后20分钟可达上海虹桥枢纽

商业配套:

自带20万㎡商业综合体,含富泰超市(64米)、社区集智慧超市(172米)及国际院线、亲子乐园等;周边有乐购超市(114米)、华润万家(1.8公里)及碧乐时光·汾湖等商圈

教育配套:

1.6公里内覆盖全龄段学校,包括蓝蝶幼儿园(902米)、上海世外附属汾湖实验小学(1.3公里)、汾湖高新区实验初中及中加合作苏州枫华高级中学校等

医疗配套:直线3公里范围内有吴江区第五人民医院,并规划建设三级甲等综合医院

生态休闲:

三面环湖(大渠荡、三白荡、洋砂荡),直面大渠荡生态公园;周边3公里内有洋砂荡公园、芦墟大渠荡生态公园、湘几漾湿地公园等12个休闲场所,水域覆盖率达40%

生活服务:

银行包括建设银行、江苏银行等多家网点;酒店有项目自有的四星级酒店及周边如家、知音酒店;日均购物需求可通过周边9个商场满足

户型鉴赏:售楼热线:400 870 9151 ✔✔✔☎

A户型127㎡3室2厅2卫

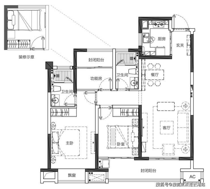
B户型111㎡3室2厅2卫

C户型114㎡3室2厅2卫

吴江汾湖嘉乐城

自带商业综合体嘉乐城

长三角一体化先行启动区

售楼热线:400 870 9151 ✔✔✔☎

置业顾问:131 8266 1993(同微信)✔✔✔☎

售楼处位置:400 870 9151 ✔✔✔☎

预约看房,置业顾问一对一对接,享受额外优惠!

声明:本文由入驻焦点开放平台的作者撰写,除焦点官方账号外,观点仅代表作者本人,不代表焦点立场。