吴江汾湖嘉乐城自带商业综合体嘉乐城2026嘉乐城樓盤詳情‖苏州嘉乐城售楼處→2026最新房价↓首页头条↓嘉乐城售楼處电话几梯几户:高层1梯2户/高层2梯4户/高层3梯6户2026嘉乐城樓盤詳情‖苏州嘉乐城售楼…
吴江汾湖嘉乐城
自带商业综合体嘉乐城
长三角一体化先行启动区
嘉乐城售楼热线:
400 998 3632嘉乐城营销中心电话
4009983632 嘉乐城售楼处位置
13270987731【营销中心】嘉乐城官方網站‖
2026嘉乐城樓盤詳情‖苏州嘉乐城售楼處→2026最新房价↓首页头条↓嘉乐城售楼處电话
价格:10000起
交房时间:现房得房率:79%-79%
总栋数/总户数:2栋/198户
绿化/容积率:18.5%/4.9
车位比:1:1.14产权年限:70年
总楼层数:高层24-33层
物业公司/费用:好得家物业/1.7元/月/平米
几梯几户:高层1梯2户/高层2梯4户/高层3梯6户
面积:86-107-111-113-114-121-127㎡
开发商:苏州鹏云集团
楼盘位置:江苏省苏州市吴江区浙江路
400 998 3632嘉乐城营销中心电话
📍 地址与交通
嘉乐城位于苏州市吴江区城司路819号。从苏州出发,驾车约26min即可到达,路线为:三香路→西环路→西环快速路→友新快速路→江陵西路→江陵快速路→江陵东路→庞北路。

🛍️ 商业与配套
作为汾湖CBD的地标,嘉乐城拥有20万㎡的综合商业,业态丰富,包括购物中心、星级酒店、国际影城、亲子游乐等。这里入驻了星巴克、华润超市、博纳影城等众多品牌,还有水乡缘大酒店、汉起徐州烧烤等餐饮选择,能满足一站式消费需求。400 998 3632嘉乐城营销中心电话

🌳 周边环境
项目三面环湖(大渠荡、三白荡、洋砂荡),对面就是大渠荡生态公园,生态环境优越,水域覆盖率达40%。

🏫 生活配套
周边教育资源丰富,有汾湖实验幼儿园、上海世外附属汾湖实验小学等学校。医疗、银行等生活配套也一应俱全。

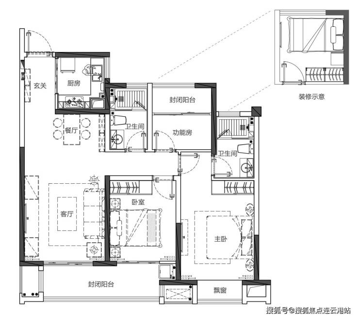
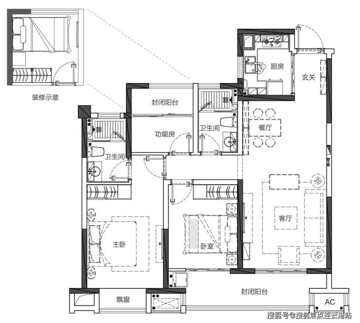
户型鉴赏

A户型127㎡3室2厅2卫

B户型111㎡3室2厅2卫

C户型114㎡3室2厅2卫




嘉乐城售楼热线:
400 998 3632嘉乐城营销中心电话
4009983632 嘉乐城售楼处位置
13270987731【营销中心】嘉乐城官方網站‖
2026嘉乐城樓盤詳情‖苏州嘉乐城售楼處→2026最新房价↓首页头条↓嘉乐城售楼處电话