恒泰象屿·时光青澄
恒泰象屿 深耕园区第三子
园区花园境 建面约91-128㎡低密纯洋房
营销中心:400 870 9151 ✔✔✔☎
置业顾问:131 8266 1993(同微信)✔✔✔☎
售楼处位置:400 870 9151 ✔✔✔☎
预约看房,置业顾问一对一对接,享受额外优惠!
总价:91㎡起,总价最低260万起
开发商:苏州恒泰、象屿地产 (双国企)
占地面积:约3.6万㎡
总建筑面积:约8.5万㎡
绿地率:≥35%容积率:≤1.5
规划户数:约496户机动车位数:约681个
产品形态:13栋8-11F纯洋房
户型面积:建筑面积约91m2/112㎡/128㎡(洋房)
交付标准:装修交付楼户比:2梯4户
物业公司:江苏象屿物业管理有限公司
项目地址:苏州园区·青剑湖·夷浜路与科成路交汇处

【品牌·青澄】再耀苏州的新核
苏州恒泰| 园区开拓者与运营者
中新合作苏州工业园区直属的大型国有企业,累计开发各类物业载体约760万平方米,拥有苏州中心、苏州自贸商务中心等代表项目,目前已成为园区商业地产、产业地产、租赁住房领域重要的载体持有者和运营商。

象屿地产| 国匠精工的践行者
象屿集团,厦门市属国有企业,《财富》世界500强位居第142位。31载象屿地产,象屿集团旗下全资子公司,深耕长三角核心都市圈,享誉华东区域的精品住宅开发商,连续多年获评“中国房地产开发稳健十强”和“中国华东房地产品牌价值TOP10”。
象屿地产位列2024年上半年全国销售金额第30位(操盘)、上海市场销售金额位列第17位(操盘)、苏州市场销售金额位列第一。

交通配套
主干道:紧邻中环北线、星湖街、现代大道等城市主干道,自驾约15min可达湖东CBD
轨道交通:地铁3号线(直线距离约2公里)及规划中的16号线(阳澄湖大道站)覆盖,通勤需结合公交接驳
高铁:园区高铁站直线距离约5公里,通达长三角核心城市
公交:周边设青澄路科营路站(586米)、星澄学校站(670米)等,含161路、176路等多条线路
商业配套
大型商圈:龙湖星湖天街(直线约2公里)、阳澄湖邻里中心;车行约15min可达湖东圆融商圈、永旺梦乐城
社区商业:科技城邻里中心(约1.1公里)提供日常购物服务
教育配套
学校:星澄学校(九年一贯制,670米)、伊顿双语幼儿园、伟才幼儿园(私立)环伺周边
医疗配套
综合医院:星湖医院(约4公里)、九龙医院(三甲,约9公里)满足就医需求
生态休闲
自然景观:阳澄湖、青剑湖、翡翠湖三湖环绕,毗邻阳澄湖生态体育公园、翡翠湖公园
社区绿地:项目绿地率超35%,含环形跑道、儿童乐园等主题空间





户型鉴赏:共三个面积段,约90/112/128㎡,全部一梯两户,带精装三大件交付!
哪怕是最小的约90㎡也做到了3房2卫,三开间朝南、全屋3个大飘窗赠送、开敞阳台,客卫干湿分离、U型厨房…堪称满分上车户型!
10F洋房,建面约90㎡
3房2卫,2梯4户

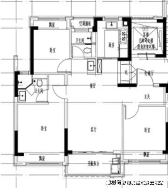
最王炸的户型,还是约112㎡,竟然做到了4房2卫!
大三开间朝南,全屋多达4个飘窗赠送,独立入户玄关、套房主卧…功能性超强!三代同堂的二胎家庭也能住得下!
而且,不出意外的话,这应该也是眼下园区新房中,最低总价4房。
8F洋房,建面约112㎡
4房2卫,2梯4户

约128㎡的空间更为舒适一点,大三房、双联阳台、客厅是大宽厅设计…预算更充足的改善家庭可以冲这个户型。
10F洋房,建面约128㎡
4房2卫,2梯4户

恒泰象屿·时光青澄
恒泰象屿 深耕园区第三子
园区花园境 建面约91-128㎡低密纯洋房
营销中心:400 870 9151 ✔✔✔☎
置业顾问:131 8266 1993(同微信)✔✔✔☎
售楼处位置:400 870 9151 ✔✔✔☎
预约看房,置业顾问一对一对接,享受额外优惠!