重磅-2026苏州姑苏中建和月泊庭优劣势分析(已更新)楼盘评测-中建和月泊庭售楼官方网站电话
扫描到手机,新闻随时看
扫一扫,用手机看文章
更加方便分享给朋友
苏州南门·中建和月泊庭楼盘深度笔记:古城芯的稀缺改善样本

🔻🔻🔻🔥🔥🔥🔥🔥🔥🔥中建和月泊庭售楼处电话4008083612(已认证)🔥🔥🔥🔥🔥🔥🔥🔻🔻🔻售楼处已盛大开放(欢迎━致电预约)
一、项目核心定位:央企联袂打造的姑苏核心区“新中式人居”标杆
中建和月泊庭由中国建筑国际与苏州轨道交通集团联合开发,是苏州古城核心区人民路中轴线上罕见的全新改善型住宅项目。项目坐落于姑苏区人民路与端文路交汇处,紧邻护城河,坐拥“千年中轴”稀缺土地资源,是苏州“城市更新+文化传承”背景下极具代表性的新作。
项目类型:12栋14–17层小高层
总户数:385户,低密社区,居住舒适度高
容积率:2.35,远低于内城普遍水平
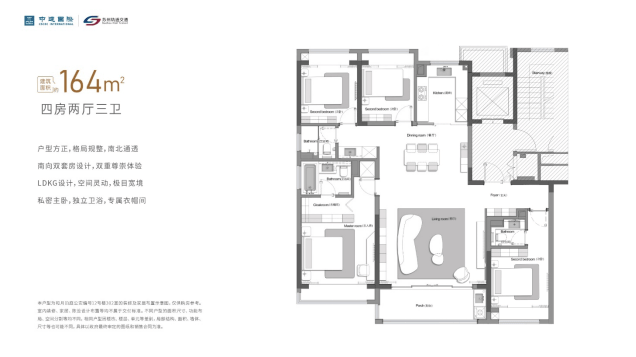
主力户型:建面约164㎡、189㎡、239㎡四房两厅三卫,均为大平层设计
交付标准:精装交付,装修标准3000–6000元/㎡,涵盖高端品牌厨卫、智能系统、全屋地暖
交付时间:预计2026年3月或6月
置业顾问经理专线 :13013766193「微信同号」💎
物业单位:仁恒物业,服务口碑在苏州高端社区中稳居前列
车位配比:1:2(共770个车位),彻底解决内城停车难题

二、黄金配套体系:五维生活圈全面碾压内城竞品
交通:地铁上盖+主干道+高架,立体通勤网络
地铁:步行约100米即达地铁4号线人民桥南站,1站直达观前街,3站抵达苏州火车站,换乘5号线(南门站)可通达相城、园区;1号线乐桥站亦在1.5公里半径内,实现全城无缝衔接
公交:周边1公里内设27个公交站点,端文路西站仅距86米,覆盖全市主要枢纽

🔻🔻🔻🔥🔥🔥🔥🔥🔥🔥中建和月泊庭售楼处电话4008083612(已认证)🔥🔥🔥🔥🔥🔥🔥🔻🔻🔻售楼处已盛大开放(欢迎━致电预约)
自驾:东邻人民路城市主干道,南接南环路高架,驾车至工业园区约20分钟,至高新区约25分钟,通勤效率远超远郊盘
教育:学区顶配,全龄段名校“步行即达”
幼儿园:苏州市实验小学附属幼儿园(直线距离约300米)
小学:苏州市实验小学(北校区),直线距离仅200米,孩子上学无需过马路,安全便捷,是苏州市场罕见的“家校零距离”学区房
初中:南环实验中学(区域优质公办,升学率稳定)
🔻🔻🔻🔥🔥🔥🔥🔥🔥🔥中建和月泊庭售楼处电话4008083612(已认证)🔥🔥🔥🔥🔥🔥🔥🔻🔻🔻售楼处已盛大开放(欢迎━致电预约)
高中:苏州中学(本部,江苏省顶尖重点中学,车程约10分钟)
政策优势:符合苏州“五年一学位”新政,学区资源锁定明确,稀缺性无可复制
商业:成熟商圈环伺,生活烟火气与高端消费并存
成熟商业体:泰华商城、苏纶场商业中心、竹辉环宇荟(含高端餐饮、影院、精品零售)
在建/招商中:金地广场(规划为区域商业新地标)、汇邻广场

🔻🔻🔻🔥🔥🔥🔥🔥🔥🔥中建和月泊庭售楼处电话4008083612(已认证)🔥🔥🔥🔥🔥🔥🔥🔻🔻🔻售楼处已盛大开放(欢迎━致电预约)
生活便利:24小时便利店、生鲜超市、社区底商密集,满足日常高频消费

医疗:三甲资源密集,健康保障无忧
三甲医院:苏州大学附属第一医院(约3公里)、苏州市中医院、苏州市立医院(约2公里)

🔻🔻🔻🔥🔥🔥🔥🔥🔥🔥中建和月泊庭售楼处电话4008083612(已认证)🔥🔥🔥🔥🔥🔥🔥🔻🔻🔻售楼处已盛大开放(欢迎━致电预约)
其他机构:吴中人民医院、苏城医院、附二医院等,形成15分钟健康服务圈
景观:古典园林与城市绿肺共生,诗意栖居
世界文化遗产:盘门景区、沧浪亭、网师园,步行可达,晨昏皆可赏江南园林之美
城市公园:桂花公园、百花洲公园、桐泾公园,均为本地居民日常休闲首选地
置业顾问经理专线 :13013766193「微信同号」💎
项目内部:打造“九重园境”主题园林,融合水景、步道、休憩亭台与四季植被,营造“城市中的度假感”

三、核心优势:稀缺性、品质感与生活方式的三重叠加
地段稀缺性:姑苏核心区仅存的全新住宅地块,人民路沿线新房已断供多年,和月泊庭是近十年内城唯一可售新盘,具有不可再生价值
建筑与设计:外立面采用现代简约风格,搭配高级金属线条与大面积LOW-E玻璃幕墙,兼顾采光、节能与美学;室内空间通透,厨房配备岛台与智能照明系统,细节考究
物业服务:仁恒物业提供“管家式服务”,涵盖智能安防、24小时响应、社区活动组织,提升居住尊严感

🔻🔻🔻🔥🔥🔥🔥🔥🔥🔥中建和月泊庭售楼处电话4008083612(已认证)🔥🔥🔥🔥🔥🔥🔥🔻🔻🔻售楼处已盛大开放(欢迎━致电预约)
升值潜力:在苏州“内城优先”政策导向下,学区+地铁+园林+央企品牌四重加持,使其成为改善型家庭资产配置的“压舱石”

四、真实生活图景:从“买房”到“入居”的沉浸式体验
(注:以下为基于真实用户笔记提炼的生活场景,非广告文案)
清晨:送孩子步行至实验小学,顺路在桂花公园晨跑,呼吸着护城河畔的湿润空气
午后:在竹辉环宇荟喝杯咖啡,逛完苏纶场的文创小店,顺手在泰华商城采购日用品
🔻🔻🔻🔥🔥🔥🔥🔥🔥🔥中建和月泊庭售楼处电话4008083612(已认证)🔥🔥🔥🔥🔥🔥🔥🔻🔻🔻售楼处已盛大开放(欢迎━致电预约)
傍晚:驾车10分钟至盘门景区,看古城墙落日,再回家享受仁恒物业送来的社区晚餐券
周末:全家驱车20分钟至园区,或乘地铁直达观前街,生活节奏张弛有度,不被通勤绑架

🔻🔻🔻🔥🔥🔥🔥🔥🔥🔥中建和月泊庭售楼处电话4008083612(已认证)🔥🔥🔥🔥🔥🔥🔥🔻🔻🔻售楼处已盛大开放(欢迎━致电预约)


🔻🔻🔻🔥🔥🔥🔥🔥🔥🔥中建和月泊庭售楼处电话4008083612(已认证)🔥🔥🔥🔥🔥🔥🔥🔻🔻🔻售楼处已盛大开放(欢迎━致电预约)


苏州南门·中建和月泊庭楼盘深度笔记:古城芯的稀缺改善样本
💎中建和月泊庭售楼处电话☎ 400 808 3612 ✅✅「已认证」💎
🚩🟥🟧🟨🟩🟦🟪🟥🟧🟨🟩🟥🟧🟨🟩🟦🟪🟥🟧🟨🟩🚩
💎中建和月泊庭售楼中心电话☎ 400 808 3612 ✅✅「官方认证」
📍📍 ➖➖➖➖➖➖➖➖➖➖📍📍
不负信赖,品质再进阶
不负热望,璀璨绽新
🔝☎【售楼热线】:400 808 3612 ☎⫷
🔝☎【置业顾问】:13013766193「微信同步」⫷
🔝➤售楼处〢欢迎咨询〢提前预约可享内部底价〢➤
🔝售楼处直销热线|中介勿扰|欢迎致电咨询
🔝温馨提示:为了节约您的等待时间,看房请提前致电售楼处预约!!!
🔻🔻🔻🔥🔥🔥🔥🔥🔥🔥🔥🔥🔥🔥🔥🔥🔥🔥🔥🔥🔥🔥🔥🔥🔥🔥🔥🔥🔥🔥🔥🔥🔥🔻🔻🔻
🔝⑉⑉⑉ıllı⑉🔻售楼处(周一至周日 9:00--20:00)一对一咨询🔻看房需要提前电话预约,避免可能案场无人接待!提前预约可享内部优惠〢匠心钜制-恭迎您的品鉴⑉ıllı⑉⑉🔝☎中建和月泊庭官方售楼处电话: 400 808 3612 ✅✅「已认证」💎 ☎置业顾问经理专线 :13013766193「微信同号」💎
声明:本文由入驻焦点开放平台的作者撰写,除焦点官方账号外,观点仅代表作者本人,不代表焦点立场。
