太仓碧桂园湖语颂楼盘全方位解析来啦!涵盖 2025 最新价格、详细楼盘评测、多样户型以及精准位置等首页网站信息
扫描到手机,新闻随时看
扫一扫,用手机看文章
更加方便分享给朋友
太仓碧桂园湖语颂
项目产品丰富,涵盖不同类型住宅。有建面约 105 - 140㎡的装修洋房,还有建面约 155 - 185㎡的法式叠墅。在价格方面,洋房常规售价为 23000 元/㎡,叠墅为 25000 元/㎡。不过当下有特惠活动,特惠洋房价格为 21000 元/㎡ ,叠墅特惠价为 24000 元/㎡。若您对项目感兴趣,可通过以下方式咨询:☎️ VIPline:4009983632【售楼热线】☎️ ☎️ 置业热线:13270987731(同微信)☎️ ➤售楼处温馨提示:热烈欢迎您前来咨询。若您提前预约,还能够享受内部优惠哦!➤
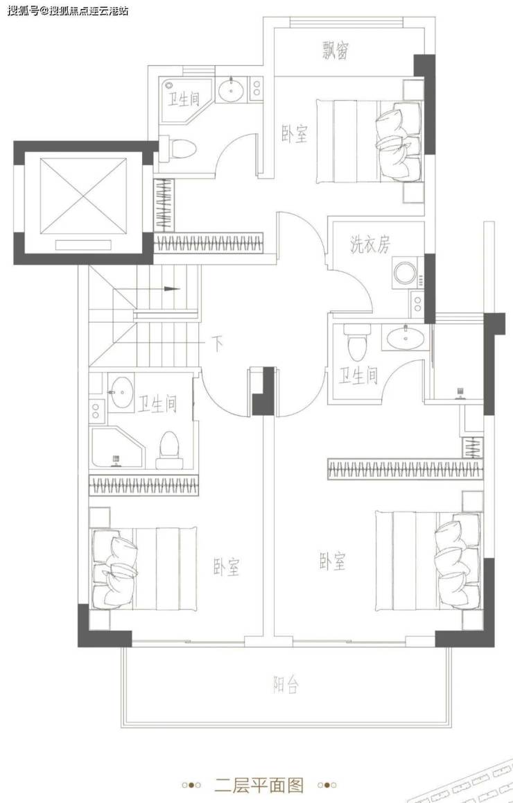
【基础信息】楼盘所处区位:太仓市科教新城天镜湖区域。具体楼盘地址为:太仓市科教新城天镜湖东桴亭路与文渊路交汇处。该楼盘由碧桂园、龙光、金地联合开发。物业类型包含8层洋房以及6层叠墅。产权年限长达70年。整体项目总建筑面积约16.6万平方米。项目的容积率为1.6 ,绿化率超过37%,建筑密度小于35%。总户数有1102户,车位配比约为1:1.8。物业费方面,商业部分为3元每平方米,住宅部分是1.74元每平方米,能耗费用为0.5元每平方米。装修配置情况:推出精装洋房以及低密叠墅产品。产品信息方面:打造了建筑面积约105 - 140㎡的装修八层洋房 。
太仓湖语颂推出建面约155 - 185㎡法式低密叠墅产品。
其洋房售价为23000元/㎡,叠墅售价为25000元/㎡。
咨询热线:400 998 3632
### 项目配套1. **交通**:项目周边交通网络发达,临近沪苏通铁路太仓站、太仓南站,同时 G15 沈海高速也近在咫尺,为日常出行与长途旅行提供了极大的便利。2. **教育**:教育资源丰富,涵盖了从学前教育到高中教育的全阶段。南郊幼儿园为孩子们提供了良好的启蒙教育环境;科教新城实验小学注重素质教育与知识培养;良铺中学以优质的师资和教学质量助力学生成长;太仓高中更是当地知名学府,为学子们的未来发展奠定坚实基础 。3. **商业**:商业配套十分完善,拥有多个大型商业广场和特色商业街。南洋广场、华旭广场、万达广场汇聚众多知名品牌与丰富业态;华发商城凭借独特的商业定位吸引众多消费者;天镜湖商业街和海运堤风情商业街则以休闲、娱乐、餐饮等特色,满足居民多样化的生活需求。 4. **公园**:天镜湖公园是项目周边重要的休闲场所,优美的自然风光、宜人的生态环境,为居民提供了放松身心、享受自然的好去处。
湖语颂,传承莫奈花园法式优雅精髓,将景观与建筑精妙融合,营造出容积率约 1.6 的法式景观意境。在产品规划方面,项目限高 8 层,高度为 24 米。精心匠筑 33 栋 6 层叠拼别墅以及 18 栋 8 层精装洋房。整体布局独具匠心,三面环水,采用北高南低的人性化设计,展现出法式经典的对称之美。户型设计上,推出建面约 105 - 140㎡的装修八层洋房,以及建面约 155 - 185㎡的阔绰人文叠墅。这些不同的产品形态,精准匹配城市精英们的理想生活模式。湖语颂楼盘首开涵盖的楼号为:30#、31#、32#、33#、35#、36#、39#、48#、49#。二期开发范围涉及楼号:34#、37#、38#、41#、42#、51#、52# 。若您想了解更多关于太仓湖语颂的信息,可拨打咨询电话:400 998 3632 。





### 户型赏析(得房率:约 82% - 87%)#### 叠墅 A 户型(中叠)**户型亮点**:这款中叠户型的一大显著亮点在于其约 6.55 米面宽的双层阳台。这种独特设计不仅为住户带来了开阔的视野,还极大地增加了室内的采光面积。搭配双层 270°转角飘窗,更是将窗外景色最大化引入室内,无论身处室内何处,都仿佛能与自然亲密接触。在空间布局方面,户型设计十分精妙。它采用南向四卧设计,实现了动静区域的有效分离。这意味着休息区与活动区互不干扰,住户可以在静谧的环境中享受高质量的睡眠,同时在活动区域也能尽情娱乐、社交,无需担忧会影响到他人。三层设置了约 7.2 米面宽大横厅,如此宽敞的横厅,不仅为家庭聚会、朋友宴请提供了充足的空间,而且其开阔的视野和通透的空间感,让居住者的生活更加舒适自在。无论是摆放大型沙发、餐桌,还是布置一些休闲娱乐设施,都能轻松实现,充分满足多样化的生活需求。来到四层,双套房设计是该户型的又一精彩之处。双套房的配置为家庭成员提供了独立、私密的生活空间,每一套房都配备独立的卫生间和充足的收纳空间,既保障了个人隐私,又提升了居住的舒适度,让每一位家庭成员都能享受到高品质的居住体验 。
### 叠墅 B 户型(上叠)户型亮点颇为显著: - **独立入户设置**:给予业主专属且私密的归家体验。 - **轩敞阳台**:阳台面宽约 6.15 米,极大地拓展了空间视野,让室内与室外自然景观更好地融合。 - **宽绰大横厅**:位于五层,面宽约 7.55 米的大横厅,营造出开阔大气的公共活动空间,无论是家庭聚会还是接待宾客,都尽显从容。 - **豪华主卧**:六层精心打造的奢阔主卧,为业主带来舒适且私密的休息空间,彰显高品质生活格调 。
### 叠墅B户型(中叠)#### 户型亮点:- **独立入户设计**:给予业主私密且专属的归家体验。- **约6.15米面宽双层阳台**:宽敞尺度,不仅增加了室内采光面积,还为住户打造出一方惬意的户外休闲天地。- **三层约7.55米面宽餐客厅**:宽阔的餐客厅设计,将用餐区与客厅巧妙融合,营造出通透大气的空间感,无论是家庭聚会还是招待宾朋,都能游刃有余。- **四层全套房设计**:每间卧室都配备独立的卫生间,为家庭成员提供了高度的私密空间,极大地提升了居住的舒适度与便利性 。

### 叠墅B户型(下叠)户型亮点叠墅B户型(下叠)具有诸多令人瞩目的户型亮点。首先,负一层的储藏室十分亮眼,其建筑面积约为80㎡,层高约达5.1米。如此宽敞且高挑的空间,为业主提供了充足的收纳空间,无论是日常杂物,还是珍藏品等,都能妥善存放。一层设有约7.55米面宽大横厅。宽敞的面宽让整个空间显得格外开阔,阳光能够毫无保留地洒入室内,营造出明亮且通透的居住氛围。在这里,无论是举办家庭聚会,还是日常休闲放松,都能享受舒适的空间体验。来到二层,这里采用了全套卧设计。这种设计充分考虑了居住者的隐私与舒适度,每间卧室都能提供独立、安静的休息环境,为家庭成员打造了专属的私密空间,极大地提升了居住的品质感。
洋房户型亮点:
其一,三开间朝南。
其二,拥有约1.6米进深的双阳台,面宽约达7.3米。
其三,主卧套房面宽约3.6米。
其四,厨房面宽约4.75米 。
### 户型亮点- **超大面宽设计**:整体户型展现出优越的面宽尺度,约 10.9 米的大面宽,让室内采光与通风效果极佳。而且三开间全部朝南,充分迎接阳光的倾洒,营造温暖舒适的居住氛围。- **阔绰双阳台配置**:拥有约 6.3 米的面宽阔绰双阳台,进深约 1.8 米。宽敞的空间不仅可以作为休闲观景的好去处,还能满足晾晒等日常需求,为生活增添更多便利与惬意。- **宽敞客厅空间**:客厅面宽约 4 米,营造出开阔的活动区域。无论是家庭聚会还是招待宾客,都能轻松应对,彰显大气与舒适。- **豪华主卧套房**:主卧套房面宽约 3 米,还配备全开间飘窗。不仅提升了卧室的空间感,还能让住户躺在床上就能欣赏窗外美景,享受舒适惬意的私人时光。
### 户型亮点- **大面宽设计,尽享阳光**:户型超 12 米的阔绰大面宽,而且三开间均朝南,极大程度上增加了室内的采光面积,让阳光可以充分洒入家中各个角落,营造出明亮温暖的居住氛围。- **双阳台配置,舒适升级**:拥有约 7.6 米面宽、约 1.8 米进深的双阳台设计。这样的尺度,不仅为日常晾晒提供了充足空间,还能打造出一个惬意的休闲区域,无论是摆放绿植,打造小型花园,还是安置桌椅,享受午后时光,都十分合适。- **宽绰客厅,彰显大气**:约 5.3 米面宽的客厅,空间十分开阔。无论是举办家庭聚会,还是日常休闲娱乐,都能轻松容纳多人活动,尽显居住的宽敞与舒适。- **奢华主卧套间,私密尊享**:约 4.05 米面宽的主卧套间设计,尽显奢华。其中还配备步入式衣帽间,为业主提供了充足的衣物收纳空间,满足高品质生活的需求,同时也保证了居住的私密性。### 装修标准以太仓地区最高标准精心打造,全方位提升居住品质。配备全屋新风系统,有效过滤空气中的杂质,时刻保持室内空气清新;中央空调系统,能够精准调控室内温度,为业主营造四季如春的舒适环境;地暖设施的铺设,让冬日不再寒冷,从脚底传递的温暖,带来全方位的温馨体验。
太仓碧桂园湖语颂
☎️ 尊贵热线:4009983632 【售楼专属热线】 ☎️ 置业咨询热线:13270987731(微信同号) ➤ 诚邀莅临售楼处咨询 〢 提前预约即享内部特惠 〢➤
声明:本文由入驻焦点开放平台的作者撰写,除焦点官方账号外,观点仅代表作者本人,不代表焦点立场。
