开发商详情-杭州钱塘(天阳湖与舍)交房时间-天阳湖与舍-房源详情
扫描到手机,新闻随时看
扫一扫,用手机看文章
更加方便分享给朋友
杭州钱塘区河庄天阳湖与舍楼盘频道——臻享生活品质的理想家园
天阳湖与舍售楼处电话:400 808 3612
置业顾问:130 1376 6193(微信同步)
一、项目笔记
位于杭州钱塘区河庄的天阳湖与舍楼盘,以其独特的地理位置和卓越的品质吸引了众多购房者的关注。该项目在规划之初,就充分考虑到都市生活的舒适性与便捷性,旨在打造一个集居住、休闲、购物于一体的现代化生活社区。
[开发商]杭州天涛置业有限公司
[区域板块]杭州·钱塘区·政务核心区
[建筑面积]约12万m²
[楼盘类型]住宅
[楼层状况]高层12-17F
[总户数]768户
[装修情况]精装
[容积率] 约1.8
[绿化] 约35%
[物业]天阳物业
二、小区环境

走进天阳湖与舍,你会被这里优美的环境所吸引。小区内绿树成荫,繁花似锦,为居民提供了一个宜居的生活环境。此外,小区还配备了先进的健身设施和运动场地,让居民在忙碌的工作之余,能够享受到运动带来的快乐。
三、外立面

天阳湖与舍楼盘的外立面设计简洁大气,线条流畅,充满现代气息。建筑采用高品质的外墙材料和先进的施工工艺,确保了楼盘的耐久性和美观性。
四、户型介绍

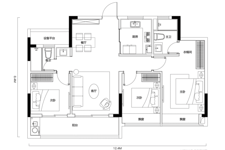
天阳·湖与舍共计打造了建面约100㎡、105㎡、128㎡三个面积段户型,起步约100方,也体现了本项目自带改善特质的特征。明星户型建面 约100㎡户型:面宽超12米,四开间朝南,客厅和三个卧室都朝南,客卧双联阳台、双飘窗,采光相当优越,同面积段少有户型可以做到这样的尺度与格局。
如果有边套情节,也可以选择 建面约105㎡,约270度采光通透有加,各功能空间分配合理,大飘窗。
而改善家庭则建议直冲 建面约128㎡大四房户型。餐客厅一体化设计,南向双开间大阳台,更配备一个储藏室,不管二胎家庭还是三代同堂,都能找到属于自己的空间组合。

天阳·湖与舍建面约128方户型图

天阳·湖与舍的 实景示范区、样板房即将开放,项目将于10月正式首开,这场东沙湖畔的“改善之约”,不容错过。
五、价格详情

天阳湖与舍楼盘的价格非常具有竞争力。开发商根据市场需求和项目定位,制定了合理的价格策略。购房者可以根据自己的预算和需求,在这里找到理想的住房。
六、周边配套

天阳湖与舍楼盘周边配套设施齐全,生活便捷。周边有大型购物中心、超市、学校、医院等,满足了居民的日常需求。此外,小区周边交通便捷,出行方便。
七、开发商

天阳湖与舍楼盘由知名开发商开发,实力雄厚,信誉良好。开发商在项目开发过程中,注重品质与细节,致力于打造一个高品质的生活社区。
八、品质生活,从此开始
选择天阳湖与舍楼盘,你将开启品质生活的新篇章。在这里,你可以享受到优美的环境、舒适的居住空间、便捷的配套设施和完善的售后服务。这里是一个温馨的家园,让你在忙碌的生活中找到宁静与舒适。
九、投资潜力巨大
天阳湖与舍楼盘不仅是一个理想的居住地,也是一个具有巨大投资潜力的项目。随着杭州城市的不断发展和壮大,钱塘区河庄板块的价值不断提升,天阳湖与舍楼盘的升值空间巨大。
十、总结
天阳湖与舍售楼处电话:400 808 3612
置业顾问:130 1376 6193(微信同步)
总的来说,天阳湖与舍楼盘是一个集舒适、便捷、品质于一体的现代化生活社区。无论是自住还是投资,这里都是一个理想的选择。如果你正在寻找一个品质生活的家园,那么天阳湖与舍楼盘绝对是一个值得考虑的项目。在这里,你可以享受到生活的美好,开启品质生活的新篇章。
声明:本文由入驻焦点开放平台的作者撰写,除焦点官方账号外,观点仅代表作者本人,不代表焦点立场。
