红豆香江华府|住宅丨2025无锡江阴红豆香江华府售楼处丨最新房价丨详情丨交通丨户型丨配套 | 小区环境
扫描到手机,新闻随时看
扫一扫,用手机看文章
更加方便分享给朋友
无锡江阴红豆香江华府
☎️售楼专线:4009983632 ☎️
☎️置业热线:13270987731(同微信)☎️
➤售楼处〢欢迎咨询〢提前预约可享内部优惠〢➤

红豆香江华府基本信息
高层面积:87、113、127㎡
小高层面积:129㎡
洋房面积:122、130、140㎡
参考价格:
高层:8000元/㎡
小高层:9000元/㎡
洋房:10500元/㎡
楼盘概况总价:72万元/套起
装修状况:带装修
开发 商:江阴红豆置业有限公司
楼盘地址:申港街道东至申浦路、南至公园路、西至申港路、北至福星路
占地面积:69650㎡
建筑面积:206065.0㎡
容积率:2.3
绿化率:31.9%
楼栋总数:24栋
总户数:1176户
物业公司:无锡红豆物业有限公司江阴分公司
物业费:2.4元/㎡·月
停车位描述:车位比1:1
☎️售楼专线:4009983632 ☎️

整体概述
红豆香江华府楼盘位于无锡申港街道东至申浦路、南至公园路、西至申港路、北至福星路,由江阴红豆置业有限公司精心打造,项目正持续推售中,,通过对项目价格、项目户型、交通配套、教育配套、生活配套、小区规划等维度进行分析,红豆香江华府楼盘价值评分为8.9分。

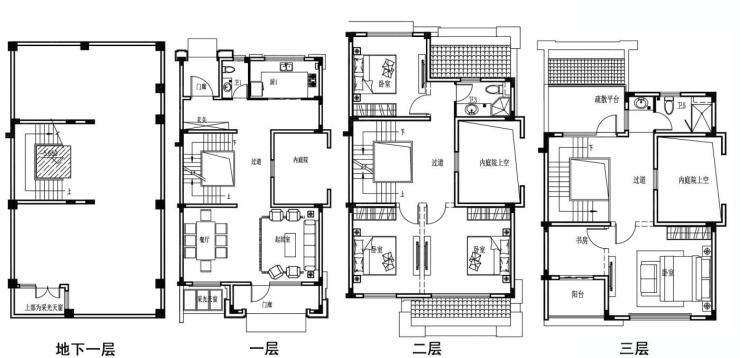
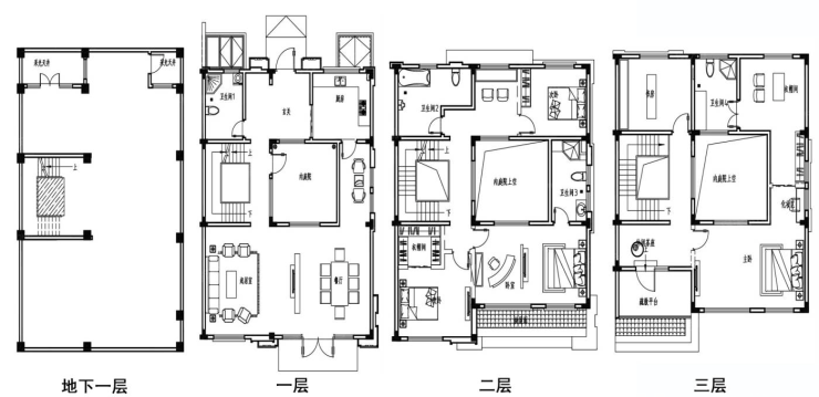
项目户型图

香江华府售楼处电话:400 998 3632
4室2厅1卫
红豆香江华府 平层户型·建面/137㎡
在售

香江华府售楼处电话:400 998 3632
4室2厅2卫
红豆香江华府 平层户型·建面/137㎡
在售

香江华府售楼处电话:400 998 3632
4室2厅2卫
红豆香江华府 平层户型·建面/140㎡
在售

香江华府售楼处电话:400 998 3632
4室2厅2卫
红豆香江华府 平层户型·建面/140㎡
在售

香江华府售楼处电话:400 998 3632
6室2厅3卫
红豆香江华府 平层户型·建面/200㎡
待售

香江华府售楼处电话:400 998 3632
6室2厅3卫
红豆香江华府 平层户型·建面/225㎡
待售

香江华府售楼处电话:400 998 3632
6室2厅4卫
红豆香江华府 平层户型·建面/313㎡
待售
交通配套
周边直线1km内有9个公交站周边公共交通较为便捷。

教育配套
直线3km范围内有7个幼儿园; 1个小学:江阴市申港实验小学;
5个中学:江苏省江阴高级中学、江阴高级中学高中部、江阴县中、江阴市中港中学、江阴市申港中学。
注:上述学校相关信息仅为参考,不作为入学依据。

生活配套
楼盘直线3km范围内有1个一级及以上医院。其中江阴临港医院距离楼盘752m,为医疗需求提供了保障。
楼盘周边3km范围内有4个商场,商业配套成熟,完全可以满足日常购物需求。
楼盘周边生态环境优越,周边3km范围内有11个公园,距离最近的仅644m,非常方便日常休闲使用。

无锡江阴红豆香江华府
☎️售楼专线:4009983632 ☎️
☎️置业热线:13270987731(同微信)☎️
➤售楼处〢欢迎咨询〢提前预约可享内部优惠〢➤
声明:本文由入驻焦点开放平台的作者撰写,除焦点官方账号外,观点仅代表作者本人,不代表焦点立场。
