吴江汾湖嘉乐城售楼处(吴江汾湖嘉乐城)首页网站-楼盘详情-户型-吴江汾湖嘉乐城房价-商业配套-小区环境-楼盘详情

连云港楼市发布 2025-12-09 06:14:00
用手机看
扫描到手机,新闻随时看

扫一扫,用手机看文章
更加方便分享给朋友

🔝☎官方售楼处电话: 4008709151 ✅✅「已认证」💎 ☎置业顾问经理专线 :13182661993「微信同号」💎

吴江汾湖嘉乐城

自带商业综合体嘉乐城

长三角一体化先行启动区

嘉乐城售楼热线:

4008709151 ✔✔✔☎

嘉乐城置业顾问:

13182661993(同微信)✔✔✔☎

嘉乐城售楼处位置:

4008709151 ✔✔✔☎

嘉乐城预约看房,置业顾问一对一对接,享受额外优惠!

价格:10000起

交房时间:现房得房率:79%-79%

总栋数/总户数:2栋/198户

绿化/容积率:18.5%/4.9

车位比:1:1.14产权年限:70年

总楼层数:高层24-33层

物业公司/费用:好得家物业/1.7元/月/平米

几梯几户:高层1梯2户/高层2梯4户/高层3梯6户

面积:86-107-111-113-114-121-127㎡

开发商:苏州鹏云集团

楼盘位置:江苏省苏州市吴江区浙江路

嘉乐城售楼热线:

4008709151 ✔✔✔☎

📍 地址与交通

嘉乐城位于苏州市吴江区城司路819号。从苏州出发,驾车约26min即可到达,路线为:三香路→西环路→西环快速路→友新快速路→江陵西路→江陵快速路→江陵东路→庞北路。

嘉乐城售楼热线:

4008709151 ✔✔✔☎

🛍️ 商业与配套

作为汾湖CBD的地标,嘉乐城拥有20万㎡的综合商业,业态丰富,包括购物中心、星级酒店、国际影城、亲子游乐等。这里入驻了星巴克、华润超市、博纳影城等众多品牌,还有水乡缘大酒店、汉起徐州烧烤等餐饮选择,能满足一站式消费需求。

嘉乐城售楼热线:

4008709151 ✔✔✔☎

🌳 周边环境

项目三面环湖(大渠荡、三白荡、洋砂荡),对面就是大渠荡生态公园,生态环境优越,水域覆盖率达40%。

嘉乐城售楼热线:

4008709151 ✔✔✔☎

🏫 生活配套

周边教育资源丰富,有汾湖实验幼儿园、上海世外附属汾湖实验小学等学校。医疗、银行等生活配套也一应俱全。

户型鉴赏:嘉乐城售楼热线:

4008709151 ✔✔✔☎

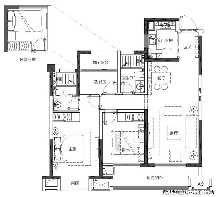
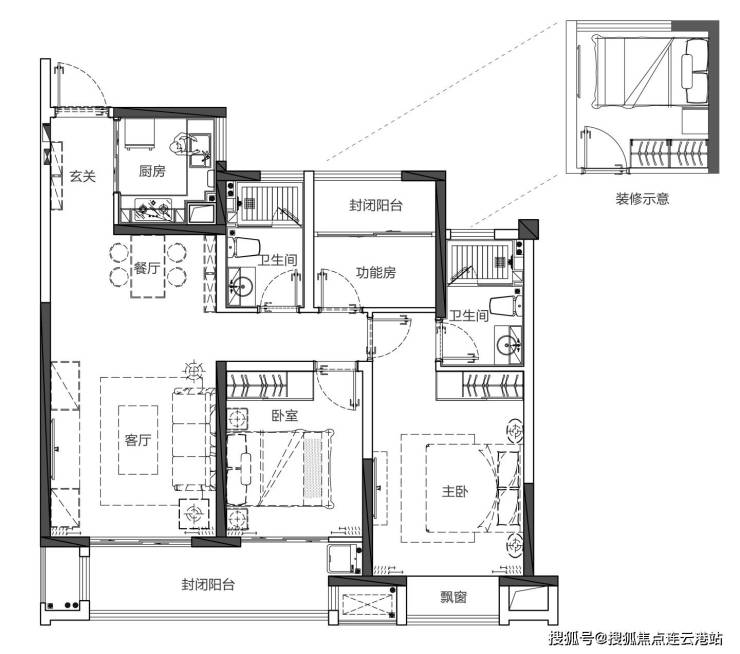
A户型127㎡3室2厅2卫

B户型111㎡3室2厅2卫

C户型114㎡3室2厅2卫

💎 售楼处官方电话☎ 4008709151 ✅✅「已认证」💎

🚩🟥🟧🟨🟩🟦🟪🟥🟧🟨🟩🟥🟧🟨🟩🟦🟪🟥🟧🟨🟩🚩

不负信赖,品质再进阶

不负热望,璀璨绽新

性价比:很多客户当天来就立马认购啦!

🔝☎【售楼热线】:4008709151 ☎⫷

🔝☎【置业顾问】:13182661993「微信同步」⫷

🔝➤售楼处〢欢迎咨询〢提前预约可享内部底价〢➤

🔝售楼处直销热线|中介勿扰|欢迎致电咨询

🔝温馨提示:为了节约您的等待时间,看房请提前致电售楼处预约!!!

▰▰▰▰▰▰▰▰▰▰▰▰▰▰▰▰▰▰▰▰▰▰▰▰▰▰▰▰▰▰▰▰▰▰▰▰▰

🔝⑉⑉⑉ıllı⑉🔻售楼处(周一至周日 9:00--20:00)一对一咨询🔻看房需要提前电话预约,避免可能案场无人接待!提前预约可享内部优惠〢匠心钜制-恭迎您的品鉴⑉ıllı⑉⑉🔝☎官方售楼处电话: 4008709151 ✅✅「已认证」💎 ☎置业顾问经理专线 :13182661993「微信同号」💎

声明:本文由入驻焦点开放平台的作者撰写,除焦点官方账号外,观点仅代表作者本人,不代表焦点立场。