桃园新著(营销中心)官方网站-销售中心(售楼处)欢迎您-地址价格-户型-小区环境-楼盘详情-交房时间-周边配套-桃园新著售楼处电话

连云港楼市发布 2025-10-14 01:11:00
用手机看
扫描到手机,新闻随时看

扫一扫,用手机看文章
更加方便分享给朋友

教育配套幼儿园:实验幼儿园、县府街幼儿园;中小学:弇山小学、市一中、实验中学、华顿外国语学校、西郊利物浦附属实验学校;大学:西交利物浦大学、西北工业大学;桃园新著售楼处电话:4009983631✔✔桃园新著营…

太仓桃园新著

售楼处电话:

400 998 3631✔✔

桃园新著营销中心电话

4009983631 ✔✔

桃园新著售楼处位置

400-998-3631✔✔

桃园新著置业顾问:

131 6013 6853【营销中心】

项目名称:城发·桃园新著

项目地址:弇山东路与太平北路交汇处

开发商:太仓城发集团

总占地面积:80.31亩

建筑面积:12.4万方

容积率:1.6

绿地率:37%

总幢数:18幢

总套数:759套(其中叠加66户,8~11层洋房693户)

车位配比:1.5

产品类型:102平洋房、134、143平叠加别墅

交付标准:精装+毛坯

桃园新著

售楼处电话:

400 998 3631✔✔

桃园新著营销中心电话

4009983631 ✔✔

主城稀缺低密住区

容积率仅1.6,绿地率37%,18栋住宅含693户8-11层洋房+66户叠加别墅

1:1.5车位配比,国企太仓城发集团开发,品质有保障

2. 全能生活配套

交通:毗邻弇山东路/太平北路,2个红绿灯直达人民路,沪通高铁太仓站/太仓南站双轨环绕

商业:三公里内南洋广场、万达广场等五大商圈覆盖

教育:实验幼儿园/弇山小学/市一中全龄名校环伺

生态:弇山园+净水公园+湿地公园三大城市绿肺步行可达

户型与交付

桃园新著

售楼处电话:

400 998 3631✔✔

桃园新著营销中心电话

4009983631 ✔✔

十字景观轴线无缝对接湿地公园,打造全龄儿童乐园/宠物乐园等六大主题场景

镜面幕墙+仿铜铝板外立面,重塑老城美学标杆

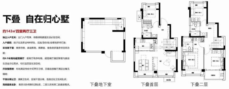
143㎡下叠加户型赏析

143㎡中叠加户型赏析

143㎡上叠加户型赏析

桃园新著

售楼处电话:

400 998 3631✔✔

桃园新著营销中心电话

4009983631 ✔✔

楼盘区位 太仓作为上海下一站,沪太同城化正全线加速,太仓优势逐渐明显,太仓作为临沪城市,依托长三角一体化时代机遇,正在全面飞速发展,城市潜力无限!

自古以来素有“锦绣江南金太仓”、“上海后花园”的美誉,江南鱼米之乡,人杰地灵,是一座历史悠久、文化繁荣、教育发达的教育名城。主城区历史发展积淀深、配套醇熟、生活便利度高、极具生活气息;同时也是政府着力打造的高端生态宜居区。这里土地资源稀缺,住宅用地寸土寸金。我们精心选址于老城区核心位置,闹中取静,打造主城目前首位低密度高端品质住区。

李嘉诚说过“决定房子价值的第一要萦是地段,第二还是地段,第三还是地段”,因为好地段必然带来优质配套,下面,我给您具体介绍我们项目的几大优质配套;

桃园新著

售楼处电话:

400 998 3631✔✔

桃园新著营销中心电话

4009983631 ✔✔

项目黄金路段 项目位于 (老城区板块)核心板块,交通四通八达,项目辐射周边多条主干道,过两个红路灯即可到达人民路,既享一步繁华,西侧沪宜公路往南无缝对接上海,直达沪通高铁“太仓南站”,往北直达沪宜高速公路双凤收费站,畅想江苏省内各大城市北侧苏州中路可便捷直达浏河昆山等地,往东直达沪通高铁“太仓站”,项目门口为太平路,往南可到达五羊广场和海运提,太平路往南2个红路灯即可到达郑和路,郑和路也是贯穿整个太仓,往东可到达浏河往西可到达昆山苏州等地。

目前,太仓的铁路建设已初步汇聚成网:

沪苏通一期正处于常态化运营;

沪宁沿江高速铁路苏州段全线正在联调联试,等待9月具备开通运营条件;

北沿江高铁、沪苏通铁路二期正在加快推进大临工程建设;

苏锡常城际铁路太仓先导段太仓站已完成工程基坑支护体系和土方施工作业,正在开展车站主体结构施工,计划年内完工,全线正在加快推进前期工作。

桃园新著

售楼处电话:

400 998 3631✔✔

桃园新著营销中心电话

4009983631 ✔✔

随着轨交嘉闵线北延伸(规划中)的建设铺开娄江新城融沪深度再升级,与沪通铁路一/二期 南沿 江高铁、北沿江铁路(规划)、苏锡常城际铁路,构成“5+1”轨道交通网络格局。

商业配套 三公里范围包含商业配套:南洋广场,万达广场,五洋广场,大润发超市,项目附近桃园菜场,中心菜场,兴业菜场,完全满足业主集娱乐休闲购物为一体的各类生活需求;

桃园新著

售楼处电话:

400 998 3631✔✔

桃园新著营销中心电话

4009983631 ✔✔

教育配套幼儿园:实验幼儿园、县府街幼儿园;

中小学:弇山小学、市一中、实验中学、华顿外国语学校、西郊利物浦附属实验学校;

大学:西交利物浦大学、西北工业大学;

桃园新著售楼处电话:400 998 3631✔✔桃园新著营销中心电话4009983631 ✔✔

桃园新著

售楼处电话:

400 998 3631✔✔

桃园新著营销中心电话

4009983631 ✔✔

优质医疗配套 双医院配套,太仓人民医院,太仓市中医,人民医院是太仓医疗水平最高的一所三级甲等综合医院,中医院是一家二甲级医院,科室全覆盖,10分钟内均可到达。距离意味着时间,时间意味着生命。完善的医疗为您保驾护航。上海瑞金医院正在建设中,让我们不出太仓即可享受上海的医疗服务。

桃园新著

售楼处电话:

400 998 3631✔✔

桃园新著营销中心电话

4009983631 ✔✔

环境配套 项目周边弇山园、净水公园和太仓湿地公园(长4.5公里,占地3.6公顷),三大公园环绕犹如天然氧吧城市绿肺,业主步行均可达到。太仓弇山园为国家3A级景区,著名旅游景点,集休闲、度假、娱乐于一体的综合性公园。引领圈层品质宜生活。

桃园新著售楼处电话:400 998 3631✔✔桃园新著营销中心电话4009983631 ✔✔

十字景观双主轴,无界外景湿地公园 分区多情景社区氛围打造:全龄儿童乐园、宠物乐园、星光草街剧场、放空谷、科普花园、互动水乐园等;

十字景观轴线设计,无缝对接外景公园自然绿意;

日常散步社区内外,真正享受四季常青一步一景;

桃园新著

售楼处电话:

400 998 3631✔✔

桃园新著营销中心电话

4009983631 ✔✔

开发商背景

国企背景:太仓城市发展集团有限公司成立于2009年,系太仓市国有资产监督管理委员会所属国有一级公司,先后获得苏州市文明单位、太仓市城市建设管理工作先进集体等40余项荣誉。聚焦城市建设、城市运营、房地产综合开发三大主业;国企开发商兼具更雄厚的资金实力、更强的产品营造能力,更精细的管理能力,夯实品质基础,呵护每一份放心。

集团深耕城市建设、城市运营、房地产综合开发三大主业,打造了娄城大厦、规划展示馆等系列地标建筑。2023太仓城发集团六盘齐发,于城市热土迭新高端人居新标杆。

项目效果图

镜面幕墙、仿铜铝板、现 代新奢的前沿设计 是居住新美学 更是老城颜值新代言 现代质感的玻璃幕墙,完美契合极简美学时代;

桃园新著售楼处电话:400 998 3631✔✔桃园新著营销中心电话4009983631 ✔✔

桃园新著

售楼处电话:

400 998 3631✔✔

桃园新著营销中心电话

4009983631 ✔✔

桃园新著

售楼处电话:

400 998 3631✔✔

桃园新著营销中心电话

4009983631 ✔✔

太仓桃园新著

售楼处电话:

400 998 3631✔✔

桃园新著营销中心电话

4009983631 ✔✔

桃园新著售楼处位置

400-998-3631✔✔

桃园新著置业顾问:

131 6013 6853【营销中心】

太仓桃园新著售楼处热线

☎:400-998-3631(预约看房热线√√)

桃园新著售楼处电话/地址☎:400-998-3631【售楼中心已认√√】

➨����售楼处电话:400-998-3631√√【电话预约☎】售楼处营销中心:400-998-3631(开发商热线)售楼中心电话/地址☎:4009983631【售楼处已认证√√√】★来电可了解楼盘最新动态,项目全面介绍(包含最新发布:在线预约看房丨在售房价优惠丨户型面积房源丨交房时间丨交通地铁丨商业配套丨教育资源丨小高层洋房丨独栋别墅丨联排合院丨商业别墅丨得房率丨容积率丨小区环境丨优缺点分析丨楼盘测评丨在售户型图样板间丨项目介绍丨最新房源丨周边配套丨详细解答丨一对一热情讲解〢区域板块等信息!★郑重承诺:由开发商旗下销售团队全程营销策划,房源信息真实有效!如果您想了解更多楼盘详情,欢迎提前预约拨打售楼处电话400 998 3631√√√(已认证)

声明:本文由入驻焦点开放平台的作者撰写,除焦点官方账号外,观点仅代表作者本人,不代表焦点立场。