苏州科技城太湖大道 2025 号建发和萃澜庭,其售楼中心网站首页,为您呈现实时报价、绝美园林景观、多样户型区间、深度房型解析及丰富商圈配套 。
扫描到手机,新闻随时看
扫一扫,用手机看文章
更加方便分享给朋友
建发和萃澜庭
售楼热线:400 870 9151 ✔✔✔☎
置业顾问:131 8266 1993(同微信)✔✔✔☎
售楼处位置:400 870 9151 ✔✔✔☎
预约看房,置业顾问一对一对接,享受额外优惠!
价格:均价20000起6#洋房限时加推123㎡245万起
容 积 率: 1.80
占地面积:67474.7㎡平方米
建筑面积:121454平方米
交房时间:2024.12.30
产权年限:70年
总 户 数:1074户
绿 化 率:37.00%
物业公司:金地智慧服务
得房率:80%-88%
在售楼栋:20幢 16幢 25幢 12幢 8幢 19幢等
梯户比:小高层2梯4户/花园洋房0梯0户/花园洋房1梯2户
开 发 商:武汉城建 金地集团 建发集团
装修情况: (精装交付,中央空调、地暖、新风三大件齐全)
楼盘地址:苏州科技城太湖大道与福东路交汇处
【户型介绍】
101㎡ 三室两厅两卫,经典的小三房,胜在两卫设计,功能性很齐全,但面积注定了空间尺寸,餐厅会稍显拥挤。
112㎡ 三室两厅两卫,这个户型很棒,面积放大之后,各空间的尺度也上去了,开间5米的竖厅不用再摆餐桌,市面上同等面积做5.6-6米的横厅,这个竖厅会更舒服,而且还是边户。
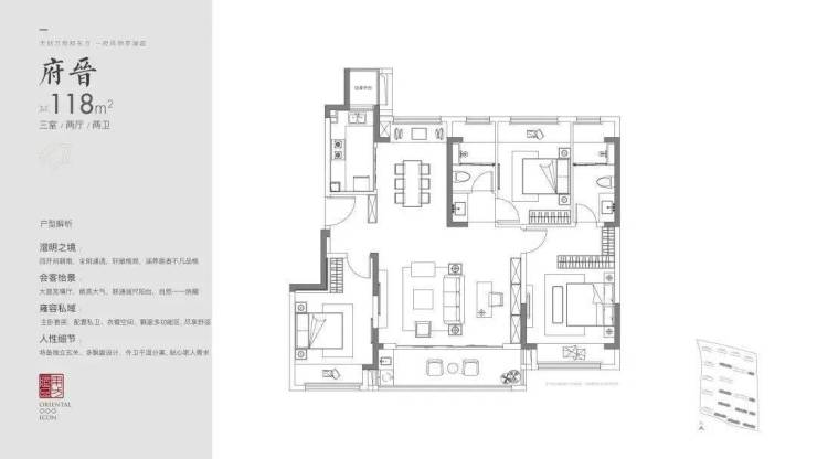
118㎡ 三室两厅两卫,你敢相信这是118㎡的户型?不计飘窗和半个阳台的赠送,这个户型的得房率至少在85%左右,标准的南北通、大横厅、大阳台、主卧的空间也不小,外卫还是干湿分离!100分,很优秀!这也是和萃澜庭的主力户型,都在10-11层的小高层,买不到。
建筑面积约118㎡样板间效果展示图,具体以实际交付为准
四开间朝南,全明通透,尺度感、舒适感直接拉满!约5.7米奢阔大横厅,连接景观阳台,非同一般的“尺度”,一进门便是扑面而来的大气感和充足的采光,享IMAX观景视野。
独立餐厅设计,北向观景,与厨房隔而不离,让宴客空间更显尊崇,盛载阖家团圆场景;全屋6个高附赠飘窗,空间利用率极高,可以说放在整个苏州市场都很能打!
建发和萃澜庭
售楼热线:400 870 9151 ✔✔✔☎
置业顾问:131 8266 1993(同微信)✔✔✔☎
售楼处位置:400 870 9151 ✔✔✔☎
预约看房,置业顾问一对一对接,享受额外优惠!
声明:本文由入驻焦点开放平台的作者撰写,除焦点官方账号外,观点仅代表作者本人,不代表焦点立场。
