苏州园区星樾湖滨官方售楼中心-苏州苏州园区星樾湖滨楼盘详情 (2026房价+户型图) 苏州园区星樾湖滨-楼盘鉴赏

连云港楼市发布 2025-11-09 11:10:00
用手机看
扫描到手机,新闻随时看

扫一扫,用手机看文章
更加方便分享给朋友

➨🚩🚩售楼处电话:400-870-9151√√售楼处营销中心:400-870-9151(开发商热线)

中铁建星樾湖滨

双轨交汇、准现房央企品质|洋房高得房率

中铁建星樾湖滨售楼热线:

4008709151 ✔✔✔☎

中铁建星樾湖滨置业顾问:

13182661993(同微信)✔✔✔☎

中铁建星樾湖滨售楼处位置:

4008709151 ✔✔✔☎

中铁建星樾湖滨预约看房,置业顾问一对一对接,享受额外优惠!

楼盘价格:均价25000起

产权住宅:70年

绿化率:35%

车位数:1082个

物业管理费:3.5元/m²/月

4栋26F高层与10栋6-10F洋房

套数:共747户,其中洋房323户

面积112㎡-118㎡-129㎡-143㎡

建筑面积约129平和143平,高层户型为113平和118平

区域位置:工业园区- 车坊

装标:精装交付,三大件齐全(新风系统、纳米电地暖、中央空调)

开发商:苏州京发房地产开发有限公司

物业公司:中国铁建房地产集团有限公司北京物业管理中心

楼盘地址:苏州·园区·独墅湖·朝前路与蔺谊路交汇处

中铁建星樾湖滨售楼热线:

4008709151 ✔✔✔☎

项目概况

位置:苏州工业园区朝前路与蔺谊路交汇处,属车坊板块

产品类型:含10栋6-10层洋房(129-143㎡)和4栋26层高层(112-118㎡),容积率2.0,绿化率35%。

交付标准:精装交付(含地暖、中央空调、新风系统),物业费3.5元/㎡/月。

中铁建星樾湖滨售楼热线:

4008709151 ✔✔✔☎

周边配套

交通:距地铁8号线车坊站约900米,紧邻星湖街、中环东线等主干道

商业:步行可达文荟邻里中心(在建),周边有普惠商业广场、独墅湖邻里中心等成熟商圈

教育:星湾教育集团朝前路实验学校、星湖幼儿园淞江分园等均在500米范围内

医疗:苏大附属独墅湖医院(三甲)位于板块内

中铁建星樾湖滨售楼热线:

4008709151 ✔✔✔☎

项目优势

央企开发,交付有保障;现房销售,即买即住

户型设计合理,如143㎡洋房四开间朝南,LDKB一体化横厅

板块属“吴淞湾未来城”,产业规划潜力大。

户型鉴赏:中铁建星樾湖滨售楼热线:

4008709151 ✔✔✔☎

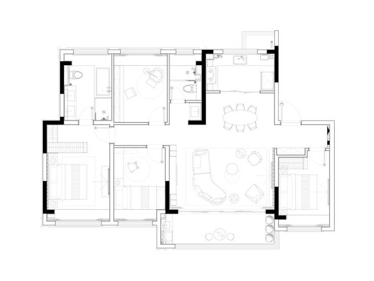
112m2户型3室2厅2卫

118户型3室2厅2卫

129户型4室2厅2卫

143户型4室2厅2卫

中铁建星樾湖滨

双轨交汇、准现房央企品质|洋房高得房率

中铁建星樾湖滨售楼热线:

4008709151 ✔✔✔☎

中铁建星樾湖滨置业顾问:

13182661993(同微信)✔✔✔☎

中铁建星樾湖滨售楼处位置:

4008709151 ✔✔✔☎

中铁建星樾湖滨预约看房,置业顾问一对一对接,享受额外优惠!

🚩🚩售楼处电话:400-870-9151√√售楼处营销中心:400-870-9151(开发商热线)售楼中心电话/地址☎:4008709151【售楼处已认证√√√】★来电可了解楼盘最新动态,项目全面介绍(包含最新发布:在线预约看房丨在售房价优惠丨户型面积房源丨交房时间丨交通地铁丨商业配套丨教育资源丨小高层洋房丨独栋别墅丨联排合院丨商业别墅丨得房率丨容积率丨小区环境丨优缺点分析丨楼盘测评丨在售户型图丨项目介绍丨最新房源丨周边配套丨详细解答丨一对一热情讲解〢区域板块等信息!★郑重承诺:由开发商旗下销售团队全程营销策划,房源信息真实有效!如果您想了解更多楼盘详情,欢迎提前预约拨打售楼处电话400 870 9151√√√(已认证)

声明:本文由入驻焦点开放平台的作者撰写,除焦点官方账号外,观点仅代表作者本人,不代表焦点立场。