苏州吴中区孙武路 - 2025全新剖析 - 朗诗太湖朗郡网站首页 - 楼盘最新价格、面积区间、得房率及小区环境、周边配套详情
扫描到手机,新闻随时看
扫一扫,用手机看文章
更加方便分享给朋友
板块唯一朗诗精装科技住宅 恒温恒湿恒氧 不用空调 咫尺地铁
售楼热线:400 870 9151 ✔✔✔☎
置业顾问:131 8266 1993(同微信)✔✔✔☎
售楼处位置:400 870 9151 ✔✔✔☎
预约看房,置业顾问一对一对接,享受额外优惠!
价格:16000起
容积率:2.0
绿化率:37%
规划户数:1371
车位配比:1:1.43
交房时间:2025年12月31日
社区规划:17F小高层+10F洋房
交付标准:精装+朗诗科技住宅系统
面积:小高层95、117、139,洋房117、148平
楼盘地址:苏州市吴中区孙武路与钟马路交汇处
一、交通配套
轨道交通:距离地铁5号线太湖香山站约2公里,可快速连接子胥快速路及绕城高速
快速路网:出发可上子胥快速路,4公里接驳绕城高速入口,一刻钟直达木渎商圈,半小时内可达狮山商圈
公交覆盖:多条公交线路交汇,便于日常通勤及出行
二、商业配套
综合商业体:太和广场、太湖中心MALL(已开业)、舟山邻里中心等提供一站式购物、餐饮及娱乐服务
社区商业:花样年街商、新力街商、蔚蓝四季街商等小型商业体分布周边,满足日常需求
三、教育配套
全龄教育资源:覆盖蒯祥幼儿园、度假区幼儿园、度假区第三小学、香山实验小学、舟山实验小学及香山中学
四、医疗配套
度假区人民医院:提供便捷医疗服务,保障业主健康需求
五、生态环境
自然景观:北靠穹窿山(5A级景区),南临太湖,坐拥太湖国家旅游度假区生态资源
宜居环境:区域内空气质量优,绿化覆盖率高,适合生态居住
真正的科技住宅搭载的“三恒”系统,完全有别于传统的空调和地暖,能真正意义上做到让室内全年24小时保持在人体适宜的状态。
示意图
恒温:采用地源热泵、顶棚辐射等系统,保持室内温度,夏季不高于 26℃,冬季不低于 18℃,相比于传统空调对流方式,无吹风感,体感更好更舒适。

示意图
恒湿:室内相对湿度恒定控制在30%-70%,解决了江南地区黄梅季,潮湿天气的困扰。同时也能有效降低冬季流感等病毒活性,让居住环境更健康。
恒氧:24小时置换新风系统,高效换气无死角,大幅降低室内污染物浓度。无论室外空气如何,室内环境永远健康。

示意图
低噪、适光:同层排水系统和外遮阳卷帘、加厚外墙等,在保温隔热的同时,也阻隔了室外的噪音和刺眼的阳光。

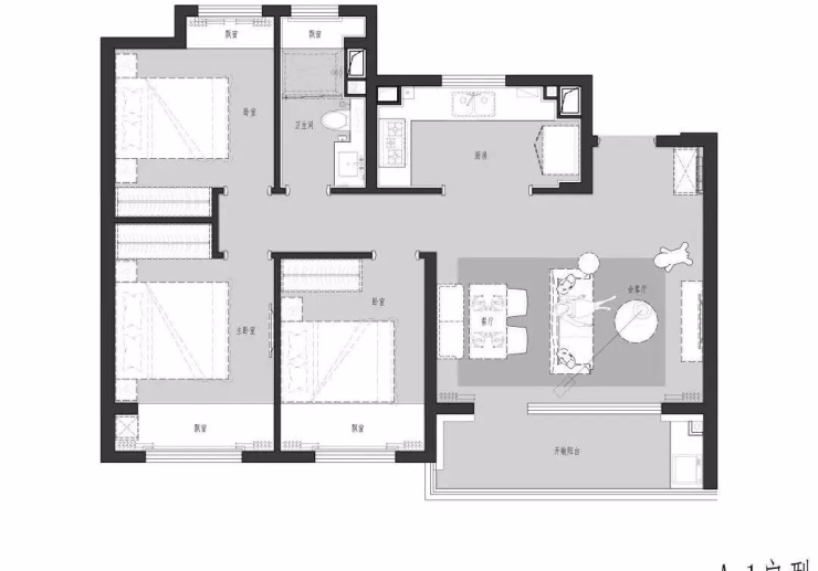
95平A2户型(3-2-1)
117平B1户型(3+1-2-2)

117平B2户型(3+1-2-2)


洋房117平C户型(3+1-2-2)
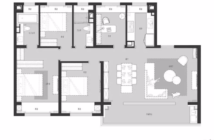
139平D户型(4-2-2)

洋房148平E户型(4-2-3)


板块唯一朗诗精装科技住宅 恒温恒湿恒氧 不用空调 咫尺地铁
售楼热线:400 870 9151 ✔✔✔☎
置业顾问:131 8266 1993(同微信)✔✔✔☎
售楼处位置:400 870 9151 ✔✔✔☎
预约看房,置业顾问一对一对接,享受额外优惠!
声明:本文由入驻焦点开放平台的作者撰写,除焦点官方账号外,观点仅代表作者本人,不代表焦点立场。
