杭州西湖翠苑荟——翠苑文教板块的精装修公寓宝藏
售楼处热线:4008378831(预约专线)

在杭州这座充满活力的城市中,有一个地方,它的名字代表着一种深邃的绿意,一种文化教育的氛围,那就是翠苑文教板块。如今,这里迎来了一个闪耀的明星项目——翠苑荟。翠苑荟售楼热线:4008378831(预约专线),它不仅代表着翠苑文教板块的居住理念,更是一次品质生活的完美呈现。
翠苑荟,由杭州和高置业有限公司开发,位于杭州市西湖区文一路,这里交通便利,生活配套完善。周边有2号线学院路站和10号线翠柏路站,四横三纵路网,让出行变得异常便捷。

翠苑荟区位图
翠苑荟售楼热线:4008378831(预约专线)项目总占地面积约8270平方米,建筑面积约4.8万平方米,容积率2.99,由商业和公寓两部分组成。公寓部分,主力户型为40-87平方米,商铺部分则有30-500平方米不等。项目的产权性质为40年,均价为48000元/平方米,总价只需170万起,而且精装修交付,这样的性价比,在杭州市场上极为少见。

翠苑荟鸟瞰图
翠苑荟,它的设计理念源于豪宅凤起钱潮,因此在细节上,我们可以看到许多豪宅的设计元素。比如,公寓的入户大堂,就采用了高级别的门禁系统,人脸识别和梯控系统,保障了业主的安全。电梯刷卡到达专属楼层,避免了人流混杂的问题。
翠苑荟售楼热线:4008378831(预约专线)的公寓产品,每层只有4梯20户,这样的设计,让整个项目拥有了同类产品中少有的低密居住体验。而且,所有的房源都是向阳房源,南向约4.2米的开间尺度,保证了日常的采光,也确保了阳光能洒在客厅,落在床头。


翠苑荟效果图
在精装修方面,翠苑荟更是不遗余力。所有的户型都采用了层高约4.77米的精装LOFT设计,空间感十足。以建面约51平方米的户型为例,这套由室内设计奥斯卡奖得主——香港郑仕樑团队精细打造的实景样板,无论是在设计还是装修上,都体现了精致与品味。

翠苑荟实景图
翠苑荟,它的地理位置优越,周边配套完善。不仅有汇和城、大象城等大型商业购物中心,还有翠苑幼儿园、翠苑一小、行知小学等名校邻立。省立同德医院、新华医院等医疗设施,也都在项目的2公里范围内。

翠苑荟实景
区别于其他动辄每层三十、四十多户的普通公寓项目,翠苑荟的公寓产品为每层4梯20户的设计,拥有了在同类产品中少有的低密居住体验,私密性更好。

翠苑荟实景
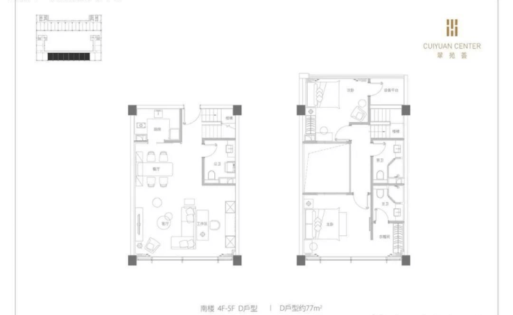
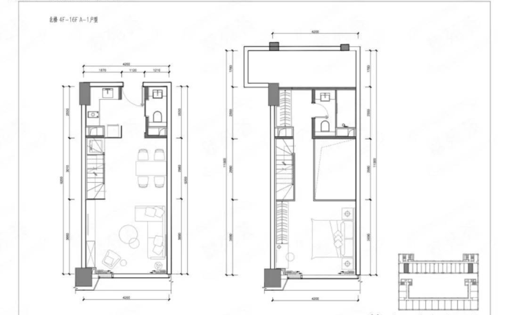
翠苑荟公寓产品户型建筑面积约40-87方,全部是层高约4.77米的精装LOFT,而4.77米的阔绰层高意味着将大大增加空间感,打破传统LOFT的压抑感。
以建面约51平方米的户型房来看,这套全新升级的精工实景样板由室内设计奥斯卡奖得主——香港郑仕樑团队精细打造。


翠苑荟建面约51㎡样板房
由于翠苑荟公寓采用单廊道设计,保证所有房源都是向阳房源,也因此南向约4.2米的开间尺度,不仅能保证日常采光,更能确保阳光洒在客厅,落在床头。
一楼为客餐厅及厨房等公共区域,一体化设计,尤其是餐厅部分为挑高设计,整个内部的空间更从容。
售楼热线:4008378831(预约专线)

翠苑荟建面约51㎡样板房
二楼则设置了两个卧室,尤其值得一提的是北向卧室,由于巧妙的空间利用,实现了南北通透,相比市面上常见的公寓,翠苑荟的居住尺度感也大大增加。

翠苑荟建面约51㎡样板房
精装细节设计也是翠苑荟的一大亮点,比如通高木饰面搭配金属线条以及夹丝玻璃,处处彰显业主的精致品味。
客厅和主卧的精致背景墙也是交付标准,厨电及卫浴也都采用方太、科勒等一线大牌,再加上随处可见的收纳空间,既保证了居住品质,又贴近实际生活需求。


翠苑荟建面约51㎡样板房
更何况,受限酒令的影响,目前杭州在售的基本都是300方以上的大平层,小面积公寓将会越来越少,
尤其是像翠苑荟这样地段优、品质好的小户型公寓,不仅卖一套少一套,今后也将更加稀缺。
售楼热线:4008378831(预约专线)

户型鉴赏






在这里,我们诚邀您,来翠苑荟,体验一种不同的生活,一种更深入杭州的生活方式。翠苑荟,等待着您的到来。
售楼处热线:4008378831(预约专线)
提前预约销售人员,专业一对一热情服务,让您用专业眼光去买房!