苏州科技城精装现房-和萃澜庭 -2025-楼盘深度解析-最新价格-户型面积-商业配套-和萃澜庭 -小区环境-项目速览

连云港楼市发布 2025-06-19 13:14:00
用手机看
扫描到手机,新闻随时看

扫一扫,用手机看文章
更加方便分享给朋友

售楼热线:400 870 9151 ✔✔✔☎ 置业顾问:131 8266 1993(同微信)✔✔✔☎

和萃澜庭

主城最低均价建发王府洋房 精装现房

售楼热线:400 870 9151 ✔✔✔☎

置业顾问:131 8266 1993(同微信)✔✔✔☎

售楼处位置:400 870 9151 ✔✔✔☎

预约看房,置业顾问一对一对接,享受额外优惠!

价格:19000起总价123平235万起

容 积 率: 1.80

占地面积:67474.7㎡平方米

建筑面积:121454平方米

交房时间:2024.12.30

产权年限:70年

总 户 数:1074户

绿 化 率:37.00%

面积段:101-112-118-140

物业公司:金地智慧服务

开 发 商:武汉城建 金地集团 建发集团

装修情况: (精装交付,中央空调、地暖、新风三大件齐全)

楼盘地址:苏州科技城太湖大道与福东路交汇处

项目卖点

科技城之上,惟此新中式。建发王府系低密洋房社区,于高楼林立的科技城更显稀缺难寻。 1、3大国资背景开发商倾力打造,品质有保障! 2、板块价值绝对高地:科技城黄金中轴之上! 3、板块唯一新中式豪宅巨作:建发顶级“王府中式”产品系! 4、高配三大件,改善至选 臻选一线国际家居品牌,高配日立中央空调、史密斯地暖、科林贝思新风三大件

一、交通配套

轨道交通:临近有轨电车1号线(龙康路站、嘉陵江路站)、2号线(龙康路站),步行距离约600-700米

。规划中的地铁9、10、11、13号线将经过该区域

公交线路:周边设有多条公交线路,包括下许桥站(63路、441路、852路等)、下许站(3001路)等多站点,覆盖日常出行需求

自驾路网:紧邻太湖大道与福东路交汇处,可快速接驳中环北线西延线,通达市区及周边区域

二、教育配套

幼儿园:西渚实验幼儿园(约400米)、彭山实验幼儿园(约700米)、龙惠幼儿园等

中小学:

科技城实验小学(西渚校区、彭山校区)、东渚实验小学分校3

新区第三中学、新区实验初级中学(青城山路校区)

国际学校:科技城外国语学校、伊顿外籍人员子女学校

三、商业配套

社区级商业:生活新空间龙惠店(约50米)、时尚水岸商业广场(约1.1公里)、丰茂里商业街等

大型商圈:梦之城购物中心、星悦荟、新都会时尚水岸、新区文体中心等,满足购物、休闲需求

四、医疗资源

科技城医院(三甲,约600米)、南京大学医学院附属苏州医院(约600米)、苏州科技城社区卫生服务中心等提供全面医疗保障

五、生态休闲

公园景区:大阳山国家森林公园、苏州乐园、太湖国家湿地公园等环绕周边

社区园林:项目内部打造新中式园林景观,含滨水半岛及全龄活动空间

六、其他配套

银行/邮政:中国邮政储蓄银行(东渚支行)、建设银行、农业银行等网点分布周边

社区服务:小区内设康养花园、健身设施及休闲广场

户型鉴赏:售楼热线:400 870 9151 ✔✔✔☎

101㎡ 三室两厅两卫,经典的小三房,胜在两卫设计,功能性很齐全,但面积注定了空间尺寸,餐厅会稍显拥挤。

112㎡ 三室两厅两卫,这个户型很棒,面积放大之后,各空间的尺度也上去了,开间5米的竖厅不用再摆餐桌,市面上同等面积做5.6-6米的横厅,这个竖厅会更舒服,而且还是边户。

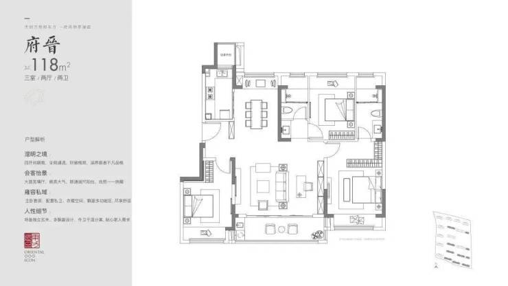
118㎡ 三室两厅两卫,你敢相信这是118㎡的户型?不计飘窗和半个阳台的赠送,这个户型的得房率至少在85%左右,标准的南北通、大横厅、大阳台、主卧的空间也不小,外卫还是干湿分离!100分,很优秀!这也是和萃澜庭的主力户型,都在10-11层的小高层,买不到。

建筑面积约118㎡样板间效果展示图,具体以实际交付为准

四开间朝南,全明通透,尺度感、舒适感直接拉满!约5.7米奢阔大横厅,连接景观阳台,非同一般的“尺度”,一进门便是扑面而来的大气感和充足的采光,享IMAX观景视野。

独立餐厅设计,北向观景,与厨房隔而不离,让宴客空间更显尊崇,盛载阖家团圆场景;全屋6个高附赠飘窗,空间利用率极高,可以说放在整个苏州市场都很能打!

和萃澜庭

主城最低均价建发王府洋房 精装现房

售楼热线:400 870 9151 ✔✔✔☎

置业顾问:131 8266 1993(同微信)✔✔✔☎

售楼处位置:400 870 9151 ✔✔✔☎

预约看房,置业顾问一对一对接,享受额外优惠!

声明:本文由入驻焦点开放平台的作者撰写,除焦点官方账号外,观点仅代表作者本人,不代表焦点立场。