姑苏沧浪街道-热盘聚焦@中海·姑苏第@售楼处电话-首页网站-最新价格-容积率-中海·姑苏第售楼处-楼盘评测
扫描到手机,新闻随时看
扫一扫,用手机看文章
更加方便分享给朋友
中海姑苏第
双轨天街旁约130-183㎡大平层
中海姑苏第售楼处电话:400 870 9151 ✔✔✔☎
中海姑苏第置业顾问:131 8266 1993(同微信)✔✔✔☎
中海姑苏第售楼处位置:400 870 9151 ✔✔✔☎
中海姑苏第预约看房,置业顾问一对一对接,享受额外优惠!
价格:3.8-4.7w
155平(4房2厅2卫)183平(4房2厅3卫)
总占地面积:约1.6万方
总户数:186套容积率:约1.8
绿 化 率:30.00%
产品类型:拟建2栋14F小高层,4栋17F小高层
配置户型:约130㎡、约155㎡、约183㎡
开 发 商:中海地产物业公司:中海物业
装修标准:精装修交付装标不低于3000元/㎡
地址:姑苏区沧浪街道劳动路南彩虹路西
基础信息:中海姑苏第售楼处电话:400 870 9151 ✔✔✔☎
开发商:苏州海嘉房地产有限公司(中海地产旗下),物业为中海物业(国家一级资质)
容积率:1.8,绿化率30%-33%,车位配比1:1.96
交付时间:预计2026年4月精装交付,装标≥3000元/㎡(含博世地暖、格力中央空调等)
户型与价格(2025年6月数据):
130㎡三居:总价550-635万元
155㎡四居:总价660-780万元
183㎡四居:总价860-975万元(部分房源赠送独立家政间)

核心亮点:中海姑苏第售楼处电话:400 870 9151 ✔✔✔☎
交通优势:
双地铁(2号线直达苏州站、山塘街;5号线连接金鸡湖、太湖风景区)
桐泾北延快速路直连西环/南环高架,2公里内接驳主干道
商业配套:
紧邻胥江龙湖天街(300+品牌),4-5公里可达石路、观前街商圈
生态与教育:
零距离劳动公园,步行至桐泾公园(20万㎡)
周边有胥江实验中学(施教区待定)
户型鉴赏:中海姑苏第售楼处电话:400 870 9151 ✔✔✔☎
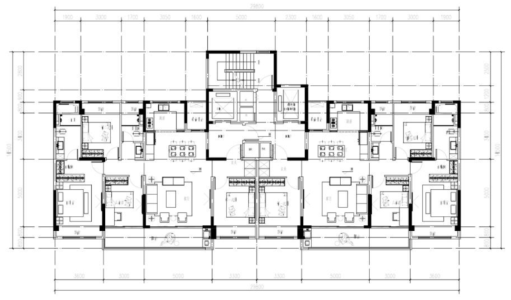
155㎡户型标准层平面图
155户型也是2梯2户设计,做了4房2厅2卫。户型格局与183户型差别不大,相当于是缩小版。南向面宽14.9米,客厅开间5米,阳台宽8米。

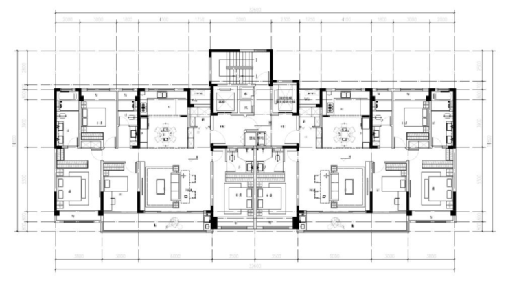
183㎡户型标准层平面图
183户型为2梯2户设计,做了4房2厅3卫,含2个套房。户型方正,没有空间浪费;四开间朝南,南向面宽达16.3米,客厅开间6米,阳台宽9米;入户有玄关,预留了家政间空间;餐厨区南北向连,与客厅保持恰当的距离;主卧套房面积约32.6㎡,卫生间含双台盆、淋浴和浴缸;次卧套房面积也不小,但是为暗卫。

➨🚩🚩售楼处电话:400-870-9151√√售楼处营销中心:400-870-9151(开发商热线)售楼中心电话/地址☎:4008709151【售楼处已认证√√√】★来电可了解楼盘最新动态,项目全面介绍(包含最新发布:在线预约看房丨在售房价优惠丨户型面积房源丨交房时间丨交通地铁丨商业配套丨教育资源丨小高层洋房丨独栋别墅丨联排合院丨商业别墅丨得房率丨容积率丨小区环境丨优缺点分析丨楼盘测评丨在售户型图丨项目介绍丨最新房源丨周边配套丨详细解答丨一对一热情讲解〢区域板块等信息!★郑重承诺:由开发商旗下销售团队全程营销策划,房源信息真实有效!如果您想了解更多楼盘详情,欢迎提前预约拨打售楼处电话400 870 9151√√√(已认证)
声明:本文由入驻焦点开放平台的作者撰写,除焦点官方账号外,观点仅代表作者本人,不代表焦点立场。
