苏州吴江汾湖嘉乐城自带商业综合体,周边汾湖汽车客运站、出租车停靠点,近邻 G318 国道、芦莘大道,公共交通便利,商业覆盖出行生活

连云港楼市发布 2025-07-15 10:02:00
用手机看
扫描到手机,新闻随时看

扫一扫,用手机看文章
更加方便分享给朋友

售楼热线:400 870 9151 ✔✔✔☎ 置业顾问:131 8266 1993(同微信)✔✔✔☎

吴江汾湖嘉乐城

自带商业综合体嘉乐城

长三角一体化先行启动区

售楼热线:400 870 9151 ✔✔✔☎

置业顾问:131 8266 1993(同微信)✔✔✔☎

售楼处位置:400 870 9151 ✔✔✔☎

预约看房,置业顾问一对一对接,享受额外优惠!

价格:11000起

交房时间:现房

得房率:79%-79%

总栋数/总户数:2栋/198户

绿化/容积率:18.5%/4.9

车位比:1:1.14

产权年限:70年

总楼层数:高层24-33层

物业公司/费用:好得家物业/1.7元/月/平米

几梯几户:高层1梯2户/高层2梯4户/高层3梯6户

面积:建面121㎡ 建面86㎡ 建面113㎡ 建面107㎡ 建面114㎡ 套内87㎡等

开发商:苏州鹏云集团

楼盘位置:江苏省苏州市吴江区浙江路

项目概况

嘉乐城是由苏州鹏云集团开发的大型城市综合体,位于吴江区汾湖高新区城司路与洋砂路交汇处,总建筑面积约48万㎡,涵盖20万㎡住宅、20万㎡商业及8万㎡地下车库。项目集购物、餐饮、酒店、办公、居住等功能于一体,是汾湖CBD核心地标。

核心优势

区位价值

长三角一体化核心区:毗邻上海、浙江,属长三角生态绿色一体化发展示范区先行启动区,未来潜力显著。

交通枢纽:

距在建苏州南站约7公里,沪苏湖高铁、通苏嘉甬城际铁路在此交汇,通车后可直达上海虹桥枢纽。

规划上海地铁17号线延伸至汾湖,苏州轨交10号线拟在文化中心设站(距项目151米)。

商业配套

自持20万㎡综合体:含开放式街区、购物中心、星级酒店、国际院线、亲子乐园等业态,富泰超市(64米)、社区集智慧超市(172米)步行可达。

周边辐射华润万家、沪宁时代广场(1.8公里)等商圈。

生态环境

三面环湖(大渠荡、三白荡、洋砂荡),直面大渠荡生态公园,水域覆盖率40%,绿化率42%,形成“城市核心蓝绿带”

洋砂荡公园(1公里)、湘几漾湿地公园等环绕,休闲资源丰富

生活配套

教育

1.6公里内覆盖全龄段学校:蓝蝶幼儿园(902米)、上海世外附属汾湖实验小学(1.3公里)、汾湖高新区实验初中等。

医疗

吴江区第五人民医院(直线3公里),规划三级甲等综合医院。

休闲

运动圈:绅度台球(57米)、毅恒跆拳道馆(69米)、禅武搏击俱乐部(163米)

️ 五、项目短板

商住混合:住宅与商业楼栋交错布局,A5地块为开放式小区,沿街底商可能影响居住静谧性。

学区未定:未划定专属学区,需依赖周边公立学校(如汾湖实验小学)。

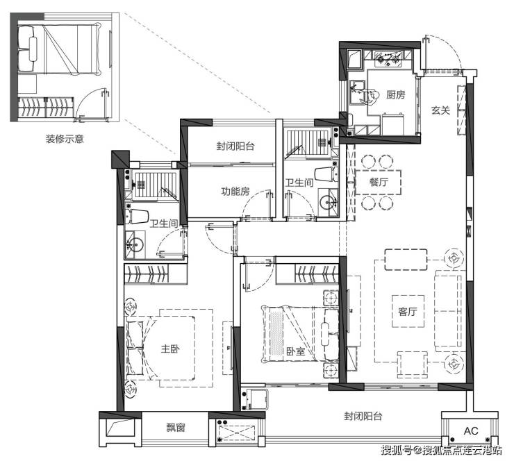
户型鉴赏:售楼热线:400 870 9151 ✔✔✔☎

A户型127㎡3室2厅2卫

B户型111㎡3室2厅2卫

C户型114㎡3室2厅2卫

吴江汾湖嘉乐城

自带商业综合体嘉乐城

长三角一体化先行启动区

售楼热线:400 870 9151 ✔✔✔☎

置业顾问:131 8266 1993(同微信)✔✔✔☎

售楼处位置:400 870 9151 ✔✔✔☎

预约看房,置业顾问一对一对接,享受额外优惠!

声明:本文由入驻焦点开放平台的作者撰写,除焦点官方账号外,观点仅代表作者本人,不代表焦点立场。