吴中雁云庭2026官方网站-吴中雁云庭-楼盘详情-吴中雁云庭-柏全方位解读-楼盘详情-最新房价+户型图+交通

连云港楼市发布 2025-10-06 22:20:00
用手机看
扫描到手机,新闻随时看

扫一扫,用手机看文章
更加方便分享给朋友

➨🚩🚩售楼处电话:400-870-9151√√售楼处营销中心:400-870-9151(开发商热线)

雁云庭

吴中甪直首个四代宅

打造8栋4F叠墅+5栋高层四代宅

带空中花园,高赠送

雁云庭售楼热线:4008709151 ✔✔✔☎

雁云庭置业顾问:131 8266 1993(同微信)✔✔✔☎

雁云庭售楼处位置:售楼热线:400-8709-151 ✔✔✔☎

雁云庭预约看房,置业顾问一对一对接,享受额外优惠!

价格:待定

总楼栋:8幢4F叠墅+5幢24-25F四代高层产品

容积率:1.8

占地面积:37740.2平

总建筑面积:102549.31平

开发商:斜港置业、吴城置业和甪直房地产开发公司联合

地址:吴中区甪直镇鸣市路南侧、经三路东侧

雁云庭售楼热线:4008709151 ✔✔✔☎

项目位于甪直镇鸣市路南侧、经三路东侧,容积率1.8,占地面积约3.8万㎡,2023年12月被斜港置业&吴城置业&甪直房地产开发竞得,成交总价约6.8亿,成交楼面地价10000元/㎡,未来房价或许会有惊喜。

产品亮点:雁云庭售楼热线:4008709151 ✔✔✔☎

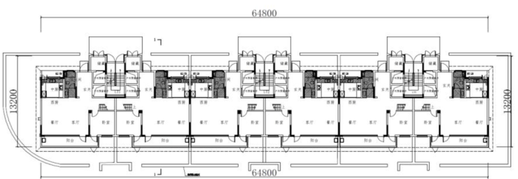
第四代住宅设计

高层采用奇偶错层布局,奇数层南向、偶数层北向设置空中庭院,实现垂直绿化;户型为4房2厅3卫,客餐厅一体化设计,装标≥2000元/㎡

低密叠墅组合

下叠:附赠独立院子,挑空客厅设计,南向卧室连通阳台

上叠:顶层设星空阁楼与超大露台,打造私人空中花园

配套与区位:雁云庭售楼热线:4008709151 ✔✔✔☎

交通:依赖自驾,北接甪直大道(连通金鸡湖大道),南靠东方大道(通往独墅湖高教区)

教育:北侧星泽实验学校(星海教育集团)已投用

商业:规划1座邻里中心、2条商业水街,现有南山维乐城等配套

市场动态:雁云庭售楼热线:4008709151 ✔✔✔☎

项目周边新房高层均价约2.2万+/㎡,叠墅2.8-3万/㎡,雁云庭售价待定

作为板块首个四代宅,其低密叠墅与空中庭院设计有望提升区域房价天花板

雁云庭售楼热线:4008709151 ✔✔✔☎

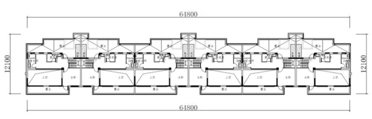
规划户型出炉

雁云庭此前公示了4#、9#的户型标准层示意图。

4#,4F叠墅

9#,25F高层,2梯2户

4房2厅3卫

奇数层

4房2厅3卫

偶数层

➨🚩🚩售楼处电话:400-870-9151√√售楼处营销中心:400-870-9151(开发商热线)售楼中心电话/地址☎:4008709151【售楼处已认证√√√】★来电可了解楼盘最新动态,项目全面介绍(包含最新发布:在线预约看房丨在售房价优惠丨户型面积房源丨交房时间丨交通地铁丨商业配套丨教育资源丨小高层洋房丨独栋别墅丨联排合院丨商业别墅丨得房率丨容积率丨小区环境丨优缺点分析丨楼盘测评丨在售户型图丨项目介绍丨最新房源丨周边配套丨详细解答丨一对一热情讲解〢区域板块等信息!★郑重承诺:由开发商旗下销售团队全程营销策划,房源信息真实有效!如果您想了解更多楼盘详情,欢迎提前预约拨打售楼处电话400 870 9151√√√(已认证)

声明:本文由入驻焦点开放平台的作者撰写,除焦点官方账号外,观点仅代表作者本人,不代表焦点立场。