2025 深度解析钱塘区天阳湖与舍楼盘:全面探究房价户型、容积率以及小区环境,附楼盘首页最新房价、户型图、交通情况等

连云港楼市发布 2025-04-02 23:05:08
用手机看
扫描到手机,新闻随时看

扫一扫,用手机看文章
更加方便分享给朋友

位于杭州钱塘区的天阳湖与舍,建筑面积约达12万平方米,为70年产权住宅项目,具有精装修交付。小区规划指标良好,容积率1.8,绿化率35%,营造出清新宜人的居住环境。天阳物业提供贵宾专线,方便购房者参观。

**杭州钱塘区河庄天阳湖与舍**项目相关信息如下:面积区间为100平、105平以及128平。单价为21000元。总价200万起,且为精装修交付。**热线电话**:VIPline:4009983632【售楼热线】置业热线:17132883311(同微信)**温馨提示**:售楼处诚挚欢迎您前来咨询。若您提前预约,可享受内部优惠。

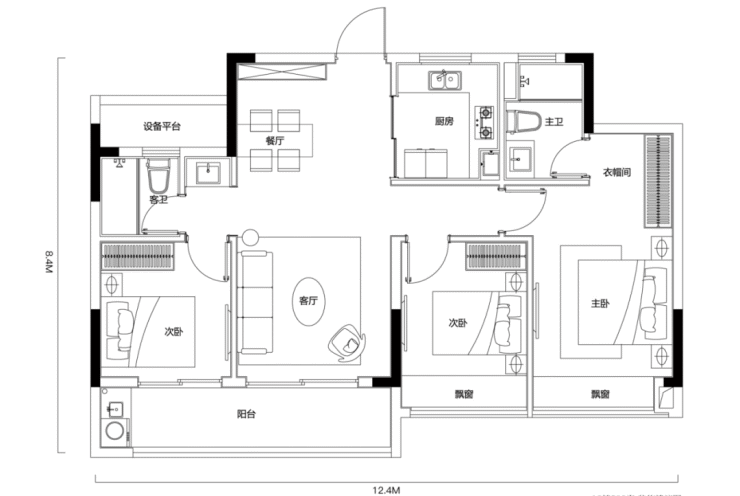
**天阳湖与舍**位于杭州钱塘区的天阳湖与舍,备受关注。其开发商为杭州天涛置业有限公司,所处区域板块是杭州钱塘区的政务核心区。该楼盘的建筑面积约达 12 万平方米,属于 70 年产权的住宅项目。建筑外观采用多面铝板搭配大面玻璃的设计,不仅美观,更具现代感。在园区打造上,有着多重体验空间,并且全首层进行了架空处理,巧妙植入多主题泛会所,极大提升了居住品质。楼盘类型明确为住宅,楼层状况为高层 12 - 17 层。户型方面,提供建面约 100 平方米、105 平方米以及 128 平方米的多种选择,可满足不同家庭的居住需求。总户数为 768 户,房屋装修情况为精装修,为业主省去不少装修烦恼。在小区规划指标上,容积率约 1.8,这意味着居住空间更为宽敞舒适;绿化率约 35%,营造出清新宜人的居住环境。

[物业管理公司]天阳物业

☎️ 贵宾专线:4009983632【楼盘销售热线】☎️

实际上,天阳·湖与舍 『湖岸生活馆』内有一处颇具品位格调的咖啡吧。值得一提的是,它的出现,标志着天阳·湖与舍项目正式开启接待客户参观的新篇章。

在近期各地调控政策不断放宽的大背景下,不难发现,市场上呈现出一片热闹景象。众多一直对居住品质有着较高要求,却因各种因素而迟迟未出手的购房者,终于按捺不住,纷纷行动起来。而天阳·湖与舍项目的推出,无疑为这些眼光“挑剔”的客户提供了一个绝佳的选择。天阳·湖与舍占据着得天独厚的优势。它坐落于大江东的核心区域,紧挨着区政府,从一开始便自带改善型楼盘的特质。该楼盘与7号线地铁口的距离不到百米,交通十分便捷。搭乘地铁,一站就能直达龙湖天街,还能轻松抵达吴山广场,并且换乘8号线和19号线也毫无压力。不仅如此,项目的容积率仅为1.8 ,这在如今的楼盘中并不多见。更为难得的是,它在地段和自然景观资源方面都十分出色,直接面向东沙湖,能让住户享受到优美的湖景风光。☎️VIPline:4009983632【售楼热线】☎️

杭州萧山天阳•湖与舍

杭州萧山天阳•湖与舍

想要打造出令人瞩目的楼盘,仅有常规的规划远远不够,产品配置必须足够硬核才行。我们能真切感受到本土房企天阳地产的满满诚意。天阳地产为天阳•湖与舍带来了与豪宅天阳·武林邸同等高品质的四面大面铝板 ,设置了全架空层空间。其景观设计灵感源自曼谷四季酒店,此外,楼盘还配备精装且带有地暖。实在令人意想不到,在限价22240元/㎡的情况下,竟能拥有如此多超出预期的配置。先来说说湖与舍的建筑立面设计。建筑设计师秉持高技派建筑理念来到东沙湖,以铝板和玻璃作为主要材质,运用竖向线条构建立面。这种设计不仅有效提升了户与户之间的隐私性,还让建筑群显得格外突出,与东沙湖的秀丽水景相得益彰。☎️VIPline:4009983632【售楼热线】☎️

杭州萧山天阳•湖与舍

从鸟瞰视角望去,令人惊喜地发现,天阳•湖与舍东侧存在一条水系,其潺潺流淌,最终汇入东沙湖。如此一来,整个地块宛如一座静谧的浮岛,在自然的怀抱中独显风姿 。

杭州萧山天阳•湖与舍,凭借其得天独厚的水系自然资源,在内部景观设计上独具匠心。于社区人行入口、中轴景观处以及核心节点区域,均精心打造了多重水景。设计师巧妙运用多种植物与树种,营造出极为丰沛的园林体验。这种内外呼应的设计,仿佛将一幅绝美的自然画卷徐徐展开 。

与部分小区“架空层全然闲置”的情况不同,在湖与舍,我们欣喜地发现,这里的架空层与业主的实际居住需求高度契合。湖与舍精心打造了六个主题空间,它们能够承载丰富多样的生活场景。这六个主题空间分别是创新工场、学习胶囊、第二客厅、迷你聚场、童梦星球以及活力氧吧。未来,这些空间将化身为小区里的一座座“社交岛屿”,为业主们提供独特且充满活力的社交体验。

杭州萧山天阳•湖与舍,充分考量不同人群的生活需求。年轻人结束一天的工作后,能在此尽情运动健身,释放活力;老年人则可在舒适宜人的环境中悠然休闲养生。不仅如此,项目还在架空层为孩子们精心打造了举办小型生日会的空间。对于那些在家需要临时处理工作的业主,更是贴心地打造了灵活空间,让业主既能避免打扰家人,又能高效处理工作事务。天阳•湖与舍的所有建筑、景观以及架空层,均围绕人的需求展开布局。这里的各个空间就像一个个充满惊喜的神奇抽屉,每一次打开,呈现的都是令人向往的烟火生活画卷。在购置房产时,地铁盘往往是众多购房者的首要考量因素,随后才会进一步审视其他外部配套设施、建筑外观颜值以及社区功能空间等关键要素。然而,真正对生活质量起着决定性作用的,其实是户型设计。在户型设计领域,天阳堪称“行家”。在杭州房地产市场,若要探讨哪家公司户型设计出色,天阳必然是绕不开的存在。作为业内广泛认可的“户型专家”,天阳始终致力于户型设计的突破与升级,持续为居住者带来全新的惊喜体验。若您对此感兴趣,可点击《首入钱塘区——本土房企天阳地产带来全新产品 》深入了解。售楼热线:400-998-3632(预约专线)

天阳·湖与舍打造的户型涵盖建面约100㎡、105㎡、128㎡这三个面积段。项目起步户型约100方,这一设计充分展现了项目自带的改善特质。其中,建面约100㎡的户型堪称明星户型。该户型面宽超过12米,四开间均朝南布局,客厅以及三个卧室全部朝南。而且,客卧采用双联阳台与双飘窗设计,采光条件极为优越,在同面积段的户型中,鲜少有能达到如此尺度与格局的。对于那些有边套情结的购房者而言,建面约105㎡的户型是不错的选择。此户型拥有约270度的采光面,室内采光通透度极佳,并且各个功能空间布局合理,还配备大飘窗,居住体验感良好 。

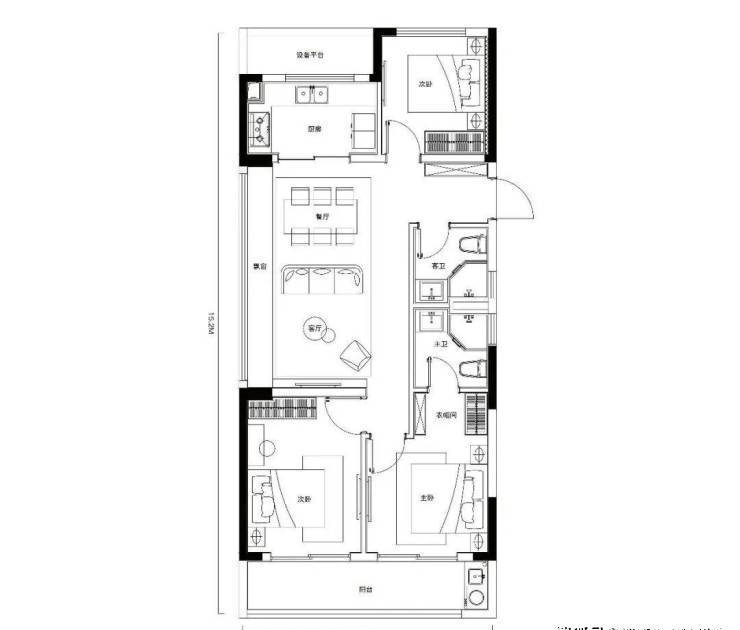
对于改善型家庭而言,建议直接考虑建面约128㎡的大四房户型。该户型采用餐客厅一体化设计,搭配南向双开间大阳台,还设有一个储藏室。无论是迎来二胎的家庭,还是三代同堂的大家庭,都能够依据自身需求,灵活组合空间,找到最适合自己的居住模式 。

天阳·湖与舍建筑面积约128平方米户型图

杭州钱塘区河庄天阳湖与舍

☎️ 咨询热线:4009983632【售楼热线】 ☎️ 置业专属热线:17132883311(同微信) 温馨提示:前往售楼处咨询,请提前预约,这样您能够享受到专属内部优惠哦。

声明:本文由入驻焦点开放平台的作者撰写,除焦点官方账号外,观点仅代表作者本人,不代表焦点立场。