最新发布-平江观梅雅园售楼处电话(平江观梅雅园置业专线)苏州姑苏主城核心新房平江观梅雅园售楼部地址丨楼盘位置丨详情丨项目动态
扫描到手机,新闻随时看
扫一扫,用手机看文章
更加方便分享给朋友
苏州平江观梅雅园-苏州城区纯墅+低密阔绰于奢华
🔻🔻🔻🔥🔥🔥🔥🔥🔥🔥平江观梅雅园售楼处电话4008083612(已认证)🔥🔥🔥🔥🔥🔥🔥🔻🔻🔻售楼处已盛大开放(欢迎━致电预约)
最新消息
平江新城首个联排案名公示
平江观梅雅园
容积率仅有1.05
规划9幢3F联排+2幢8F洋房
南向面宽近10米,侧边大露台
沿河而建 自带商业配套
妥妥的出入皆繁华静谧
根据规划公示显示,该项目将打造11幢住宅,其中9幢3F联排,2幢8F洋房,比较纯粹的低密改善住宅。
平江观梅雅园由苏州城投开发,定位为姑苏核心区罕见的低密改善型住宅,项目规划9幢3层联排别墅 + 2幢8层洋房,总计约855户,容积率仅1.05,绿化率高达39.36%,是当前苏州主城区内难得一见的“类别墅”产品。项目摒弃了高密度高层模式,以“少而精”的产品逻辑,打造纯粹的圈层居住体验。
其建筑外立面采用深灰色屋檐 + 大面积落地玻璃窗 + 金属线条勾勒的新中式风格,既呼应了平江路一带的古城肌理,又注入了现代简约的审美语言,形成“古韵今风”的视觉张力。项目沿河而建,部分楼栋享有水岸景观,营造出“观水听风”的诗意生活意境。
交付标准 :全屋精装修交付,三大件(空调、地暖、新风)标配,主卧配备独立衣帽间与卫浴,厨房采用中西双厨设计,预留电梯位,满足多代同堂的居住升级需求。

🔻🔻🔻🔥🔥🔥🔥🔥🔥🔥平江观梅雅园售楼处电话4008083612(已认证)🔥🔥🔥🔥🔥🔥🔥🔻🔻🔻售楼处已盛大开放(欢迎━致电预约)
分布上,联排别墅沿河排开,洋房沿分布,圈层更加纯粹。小区东侧为主出入口,北侧为次出入口,出入口均设计了汽车坡道,是姑苏核心区罕见的地下停车位。

💎平江观梅雅园售楼处电话☎ 400 808 3612 ✅✅「已认证」💎
🚩🟥🟧🟨🟩🟦🟪🟥🟧🟨🟩🟥🟧🟨🟩🟦🟪🟥🟧🟨🟩🚩

项目的外立面让人惊艳,大面积落地玻璃窗+深灰色屋檐+金属线条勾勒,既有现代感又不失姑苏古城古韵底色。

🔻🔻🔻🔥🔥🔥🔥🔥🔥🔥平江观梅雅园售楼处电话4008083612(已认证)🔥🔥🔥🔥🔥🔥🔥🔻🔻🔻售楼处已盛大开放(欢迎━致电预约)
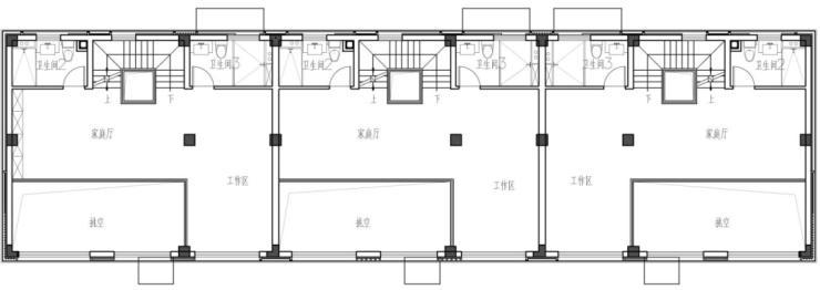
项目户型也同步公示,3F联排南北接口入户,南向面宽近10米。
1F为活动区,餐客厅一体化,中西双厨,干湿分离客卫,预留电梯位,南向卧室,可作为老人房。

2F生活区,餐客厅上空挑空,两个独立的卫生间,可根据自己的需求,设计成两个套房。

💎平江观梅雅园售楼处电话☎ 400 808 3612 ✅✅「已认证」💎
🚩🟥🟧🟨🟩🟦🟪🟥🟧🟨🟩🟥🟧🟨🟩🟦🟪🟥🟧🟨🟩🚩

3F为生活区,边户主卧大套房+侧边L型大露台,中间户主卧大套房+北侧露台。让生活充满更多可能。

🔻🔻🔻🔥🔥🔥🔥🔥🔥🔥平江观梅雅园售楼处电话4008083612(已认证)🔥🔥🔥🔥🔥🔥🔥🔻🔻🔻售楼处已盛大开放(欢迎━致电预约)
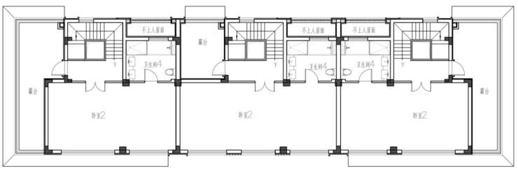
8F洋房户型,4房2厅2卫设计,全屋飘窗,南向面宽约10.2米,四开间朝南,其中3卧室均朝南,并且南向双套房。
南北双阳台,南向双联阳台,保证采光和通风的充足,入户家政间,保证收纳空间。

土拍回顾——
该地块成交于今年1月中旬,由苏州荣和工程建设拿下,成交楼面价18022元/㎡,地块容积率约1.05!

💎平江观梅雅园售楼处电话☎ 400 808 3612 ✅✅「已认证」💎
🚩🟥🟧🟨🟩🟦🟪🟥🟧🟨🟩🟥🟧🟨🟩🟦🟪🟥🟧🟨🟩🚩

苏地2024-WG-Z46号地块,紧邻护城河,地块占地约1.18万㎡,非常迷你。

该地块也是一宗商住混合用地,容积率约1.05,根据出让要求,建筑高度≤40米。
根据拿地要求,该项目建筑立面要与周边区域整体风貌协调,强化建筑“第五立面”设计,立面材质以铝板、石材为主,采用透视围墙。

🔻🔻🔻🔥🔥🔥🔥🔥🔥🔥平江观梅雅园售楼处电话4008083612(已认证)🔥🔥🔥🔥🔥🔥🔥🔻🔻🔻售楼处已盛大开放(欢迎━致电预约)

💎平江观梅雅园售楼处电话☎ 400 808 3612 ✅✅「已认证」💎
🚩🟥🟧🟨🟩🟦🟪🟥🟧🟨🟩🟥🟧🟨🟩🟦🟪🟥🟧🟨🟩🚩

🔻🔻🔻🔥🔥🔥🔥🔥🔥🔥平江观梅雅园售楼处电话4008083612(已认证)🔥🔥🔥🔥🔥🔥🔥🔻🔻🔻售楼处已盛大开放(欢迎━致电预约)
该地块还自带一个建面约不小于700㎡的商业。未来业主下楼即可满足日常生活所需,生活方便。

苏州平江观梅雅园-苏州城区纯墅+低密阔绰于奢华
💎售楼处官方电话☎ 400 808 3612 ✅✅「已认证」💎
🚩🟥🟧🟨🟩🟦🟪🟥🟧🟨🟩🟥🟧🟨🟩🟦🟪🟥🟧🟨🟩🚩
💎网上营销官方电话☎ 400 808 3612 ✅✅「官方认证」
📍📍 ➖➖➖➖➖➖➖➖➖➖📍📍
不负信赖,品质再进阶
不负热望,璀璨绽新
🔝☎【售楼热线】:400 808 3612 ☎⫷
🔝☎【置业顾问】:13013766193「微信同步」⫷
🔝➤售楼处〢欢迎咨询〢提前预约可享内部底价〢➤
🔝售楼处直销热线|中介勿扰|欢迎致电咨询
🔝温馨提示:为了节约您的等待时间,看房请提前致电售楼处预约!!!
🔻🔻🔻🔥🔥🔥🔥🔥🔥🔥🔥🔥🔥🔥🔥🔥🔥🔥🔥🔥🔥🔥🔥🔥🔥🔥🔥🔥🔥🔥🔥🔥🔥🔻🔻🔻
🔝⑉⑉⑉ıllı⑉🔻售楼处(周一至周日 9:00--20:00)一对一咨询🔻看房需要提前电话预约,避免可能案场无人接待!提前预约可享内部优惠〢匠心钜制-恭迎您的品鉴⑉ıllı⑉⑉🔝☎官方售楼处电话: 400 808 3612 ✅✅「已认证」💎 ☎置业顾问经理专线 :13013766193「微信同号」💎
声明:本文由入驻焦点开放平台的作者撰写,除焦点官方账号外,观点仅代表作者本人,不代表焦点立场。
