首页-@保利达状元府品质生活样本|解放北路保利达状元府笔记详情|周边配套|户型鉴赏|得房率|交通|交付标准|
扫描到手机,新闻随时看
扫一扫,用手机看文章
更加方便分享给朋友
无锡解放北路·保利达状元府楼盘笔记详情:地段、配套与核心优势全解析
一、楼盘基础信息:市中心稀缺精装大盘
项目定位:无锡梁溪区核心地段的高端改善型住宅,定位为“城市封面级”综合体,融合住宅、商业、办公与酒店功能于一体。
开发商:保利达地产(无锡)有限公司,具备区域深耕经验,项目命名“状元府”直指教育属性,强化文化价值标签。
地理位置:梁溪区通汇桥路与工运路交汇处,紧邻解放北路主干道,属无锡内环以内成熟居住圈,距无锡火车站仅337米,城市能级极高。
建筑规模:总建筑面积约60万㎡,规划5栋住宅楼,总户数1047户,容积率6.0,绿化率20%,属高密度但规划有序的都市住宅项目。
交付标准:全精装交付,采用品牌建材与智能系统,涵盖地暖、新风、智能门锁、安防监控等,满足现代家庭对品质生活的刚性需求。
物业体系:由国际顶级物业服务商世邦魏理仕(CBRE)提供服务,物业费2.85元/㎡·月,高于无锡平均水平,服务标准对标高端社区。

🔻🔻🔻🔥🔥🔥🔥🔥🔥🔥保利达状元府售楼处电话4008083612(已认证)🔥🔥🔥🔥🔥🔥🔥🔻🔻🔻售楼处已盛大开放(欢迎━致电预约)
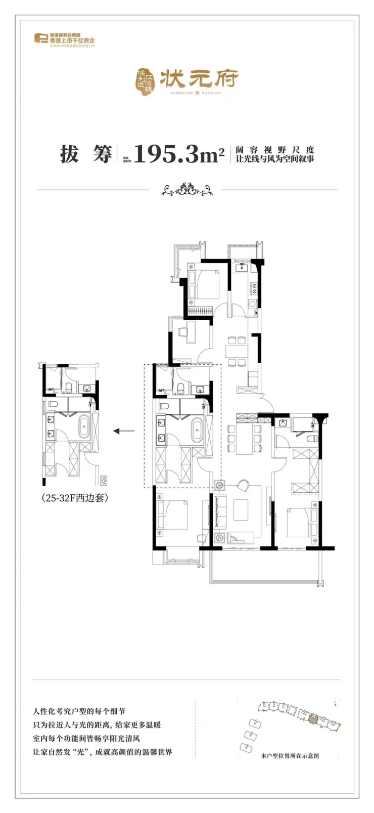
户型结构:主力户型为81㎡三房、142㎡四房、150㎡大平层,覆盖71㎡至235㎡全年龄段需求,户型方正、动静分区明确,得房率高,尤其142㎡户型获业主高频好评,采光通透、阳台宽大、动线流畅。

🔻🔻🔻🔥🔥🔥🔥🔥🔥🔥保利达状元府售楼处电话4008083612(已认证)🔥🔥🔥🔥🔥🔥🔥🔻🔻🔻售楼处已盛大开放(欢迎━致电预约)

🔻🔻🔻🔥🔥🔥🔥🔥🔥🔥保利达状元府售楼处电话4008083612(已认证)🔥🔥🔥🔥🔥🔥🔥🔻🔻🔻售楼处已盛大开放(欢迎━致电预约)

🔻🔻🔻🔥🔥🔥🔥🔥🔥🔥保利达状元府售楼处电话4008083612(已认证)🔥🔥🔥🔥🔥🔥🔥🔻🔻🔻售楼处已盛大开放(欢迎━致电预约)

二、核心配套:一站式城市生活圈
1. 教育资源:双百年名校学区,稀缺属性突出
对口小学:连元街小学本部(江苏省重点、百年名校),步行距离约800米,学区划分明确,入学政策稳定,是无锡公认的“顶流学区房”之一。
对口中学:东林中学(无锡市顶尖初中,中考重点率稳居全市前三),直线距离约1.5公里,公交或骑行10分钟可达。
教育价值:两大名校形成“小学—初中”无缝衔接体系,是无锡家长竞相争夺的“教育黄金通道”,学区溢价显著,保值增值能力极强。

🔻🔻🔻🔥🔥🔥🔥🔥🔥🔥保利达状元府售楼处电话4008083612(已认证)🔥🔥🔥🔥🔥🔥🔥🔻🔻🔻售楼处已盛大开放(欢迎━致电预约)

2. 交通网络:地铁上盖+公交枢纽,通勤零压力
地铁:紧邻地铁1号线“胜利门站”,步行约300米即达,直达三阳广场、无锡火车站、南禅寺、太湖广场等城市核心节点,15分钟覆盖全城。

🔻🔻🔻🔥🔥🔥🔥🔥🔥🔥保利达状元府售楼处电话4008083612(已认证)🔥🔥🔥🔥🔥🔥🔥🔻🔻🔻售楼处已盛大开放(欢迎━致电预约)
公交:周边30余条公交线路覆盖,包括1路、2路、5路、10路、31路、90路、509路等,通达惠山、滨湖、新吴等各区,无车家庭出行无忧。
自驾:解放北路、工运路、锡山大道构成城市快速路网,10分钟抵达无锡东站、沪宁高速入口,通勤效率极高。

3. 商业配套:商圈环伺,生活即享
大型商场:
茂业时代广场(步行5分钟):集百货、超市、餐饮、影院于一体,日均客流超5万。
红豆国际广场、远东百货、苏杭百货:形成“胜利门商圈”核心,消费层级丰富,满足高端与日常双重需求。

生活配套:
超市:华润万家、大润发(2公里内)
餐饮:聚丰园、凯旋门火锅、麦当劳、星巴克等连锁品牌密集
金融:工商银行、中国银行、江苏银行、宁波银行网点全覆盖
🔻🔻🔻🔥🔥🔥🔥🔥🔥🔥保利达状元府售楼处电话4008083612(已认证)🔥🔥🔥🔥🔥🔥🔥🔻🔻🔻售楼处已盛大开放(欢迎━致电预约)
医疗:中国人民解放军联勤保障部队第九〇四医院(三甲,1.7km)、无锡市第三人民医院(2km)

4. 生态与休闲:古运河畔,静谧宜居
古运河景观带:项目东侧紧邻无锡古运河,沿岸设有滨水步道、亲水平台、夜景灯光,是市民晨跑、散步、休闲的热门目的地,生态价值稀缺。
社区内部:人车分流设计,地下两层车库,车位比达1:1.2,保障停车安全与效率;绿化以乔木+灌木+草坪组合,营造低密度居住氛围。

三、核心优势:地段+学区+精装,三位一体的稀缺价值

🔻🔻🔻🔥🔥🔥🔥🔥🔥🔥保利达状元府售楼处电话4008083612(已认证)🔥🔥🔥🔥🔥🔥🔥🔻🔻🔻售楼处已盛大开放(欢迎━致电预约)

四、业主反馈与市场评价
高频关键词:
“ 学区太硬了,孩子上学不用愁 ”
“ 地铁就在楼下,通勤像坐公交一样方便 ”
“ 精装细节到位,连开关插座都是西门子 ”
“ 古运河边散步,每天像在度假 ”
典型户型评价:
142㎡四房户型被多次提及为“理想家庭户型”——客厅宽达5.2米,主卧朝南,配备超大观景阳台,生活空间与自然充分融合,采光时间长达8小时以上。

无锡解放北路·保利达状元府楼盘笔记详情:地段、配套与核心优势全解析
💎售楼处官方电话☎ 400 808 3612 ✅✅「已认证」💎
📍📍 ➖➖➖➖➖➖➖➖➖➖📍📍
不负信赖,品质再进阶
不负热望,璀璨绽新
🔝☎【售楼热线】:400 808 3612 ☎⫷
🔝☎【置业顾问】:13013766193「微信同步」⫷
🔝➤售楼处〢欢迎咨询〢提前预约可享内部底价〢➤
🔝售楼处直销热线|中介勿扰|欢迎致电咨询
🔝温馨提示:为了节约您的等待时间,看房请提前致电售楼处预约!!!
🔻🔻🔻🔥🔥🔥🔥🔥🔥🔥🔥🔥🔥🔥🔥🔥🔥🔥🔥🔥🔥🔥🔥🔥🔥🔥🔥🔥🔥🔥🔥🔥🔥🔻🔻🔻
🔝⑉⑉⑉ıllı⑉🔻售楼处(周一至周日 9:00--20:00)一对一咨询🔻看房需要提前电话预约,避免可能案场无人接待!提前预约可享内部优惠〢匠心钜制-恭迎您的品鉴⑉ıllı⑉⑉🔝☎官方售楼处电话: 400 808 3612 ✅✅「已认证」💎 ☎置业顾问经理专线 :13013766193「微信同号」💎
🔻🔻🔻🔥🔥🔥🔥🔥🔥🔥保利达状元府售楼处电话4008083612(已认证)🔥🔥🔥🔥🔥🔥🔥🔻🔻🔻售楼处已盛大开放(欢迎━致电预约)
声明:本文由入驻焦点开放平台的作者撰写,除焦点官方账号外,观点仅代表作者本人,不代表焦点立场。
