项目笔记-杭州融创杭望云潮城,杭望云潮城优缺点分析,融创杭望云潮城欢迎你
扫描到手机,新闻随时看
扫一扫,用手机看文章
更加方便分享给朋友
杭州钱塘区下沙金沙湖融创杭望云潮城楼盘频道深度探索——融创项目笔记,体验小区环境与精彩户型
融创杭望云潮城售楼处电话:400 808 3612
置业顾问:130 1376 6193(微信同步)
引言:钱塘江畔,金沙湖之侧,一颗璀璨的明珠镶嵌于此——融创杭望云潮城楼盘。这里不仅承载了杭州城市发展的活力与繁华,更汇聚了现代生活美学的精粹。本文将为您揭开这个项目的神秘面纱,从项目笔记、小区环境、户型介绍、外立面设计到价格详情、周边配套以及开发商背景,带您全方位了解这座城市的理想居所。
一、项目笔记:融创杭望云潮城楼盘概览

融创杭望云潮城楼盘位于杭州钱塘区下沙金沙湖畔,是融创中国精心打造的高端住宅项目。项目占地面积广阔,规划合理,集住宅、商业、教育等多功能于一体,致力于打造一个高品质的生活社区。这里不仅地理位置优越,交通便利,更是未来城市发展的核心区域。
面积:108-128-142方
单价:上面那层25000元/平
下面那层16000元/平
总价:180万起(精装修)
金沙湖示意图,图片来源于网络,仅供参考
二、小区环境:生态宜居,尽享自然与繁华
融创杭望云潮城楼盘所处的小区环境得天独厚,紧邻金沙湖,拥有优美的湖景资源。小区内部绿化率高,环境优美,给人一种宜居的感觉。此外,小区周边设施齐全,购物中心、学校、医院等一应俱全,让您的生活更加便捷。
三、户型介绍:精心设计,舒适生活空间

融创杭望云潮城楼盘的户型设计合理且多样化,满足不同家庭的需求。
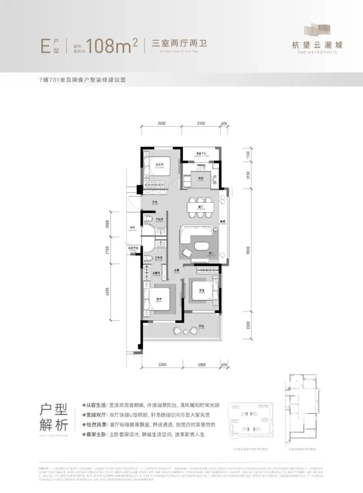
该户型为项目的起步户型,建面约105-108方,三房两厅两卫的格局。
整体三开间朝南,带连通阳台,采光还是非常不错的。进门就是厨房,动线也比较合理。主卧也是套房设计,带独立的卫生间,隐私性较强,整体可圈可点,当然最终还是要等其样板间开放,看其尺寸再来下判断!
该户型为项目的四房起步户型,建面约130方,四房两厅两卫的格局。

整体也是三开间朝南,且都是主功能间,还都带飘窗、阳台,餐客厅一体也带飘窗,整体采光不必说,稍有遗憾的,可能就是,进门就是卫生间,隐私方面有待提高。
该户型为项目的最大改善户型,建面约142方,四房两厅两卫的格局。

该户型为双套房设计,还有双阳台,休闲、晾晒都能满足,且相比128方户型,改善了卫生间的隐私问题,整体格局比较不错。
杭望云潮城的3500元/㎡的装标,厨房配置德系品牌西门子三件套;日立的中央空调,德国卫浴界“劳斯莱斯”高仪品牌水龙头及花洒;瑞士恩仕品牌智能马桶,诚意满满,让人眼前一亮。
四、外立面:现代简约,彰显品质

融创杭望云潮城楼盘的外立面设计现代简约,采用高级涂料和玻璃材质,给人一种时尚、高端的感觉。建筑线条简洁流畅,充满现代气息,彰显了融创品牌的高品质追求。
五、价格详情:物超所值,性价比极高

融创杭望云潮城楼盘的价格非常具有竞争力,性价比极高。具体的价格根据户型、楼层、景观等因素有所不同,但总体来说,这里的价格非常符合其高品质、高舒适度的小区环境以及完善的周边配套设施。
六、周边配套:设施齐全,生活无忧

融创杭望云潮城楼盘周边配套设施齐全,生活便捷。周边有大型购物中心、超市、学校、医院等,满足您日常生活的所有需求。此外,小区周边交通十分便利,公共交通网络发达,出行无忧。
七、开发商:融创中国,品质保证
融创中国是一家具有极高声誉的房地产开发企业,多年来一直秉承“品质至上”的原则,为客户打造高品质的生活社区。融创杭望云潮城楼盘是融创中国的重点项目之一,品质保证。

融创杭望云潮城售楼处电话:400 808 3612
置业顾问:130 1376 6193(微信同步)
结语:杭州钱塘区下沙金沙湖融创杭望云潮城楼盘频道为您呈现了一个高品质的生活社区。这里环境优美、户型合理、价格实惠、配套齐全,是杭州的理想居住地。如果您正在寻找一个温馨的家,那么这里将是您的不二之选。
声明:本文由入驻焦点开放平台的作者撰写,除焦点官方账号外,观点仅代表作者本人,不代表焦点立场。
