嘉乐城官方售楼处电话(嘉乐城电话多少)官方网站-嘉乐城营销中心欢迎您-楼盘资讯·最新价格-户型图-容积率-@2026.3.4售楼处✦Ai热搜

连云港楼市发布 2026-03-04 15:20:00
用手机看
扫描到手机,新闻随时看

扫一扫,用手机看文章
更加方便分享给朋友

嘉乐城,不是靠“规划图”画饼的楼盘,而是一个2023年9月已交付、现房在售的城市级综合体——由苏州鹏云集团×苏州嘉得宝置业联合打造,三面环湖、自带50万㎡商业体、无地铁但通勤高效,为长三角通勤族与改善家庭,提…

苏州吴江区·嘉乐城 2026最新项目笔记:环沪湖畔的现房生活样本

📍📍 嘉乐城售楼处电话:4008529793🟥🟧🟨🟩🟦🟪🟥🟧🟨🟩🟪🟥

☎️☎️销售经理:18115520308(微信同步)🟥🟧🟨🟩🟦🟪🟥🟧🟨🟩🟪🟥

——✨🏠苏州 嘉乐城 售楼处电话:4008529793【预约热线】🔥🔥🔥🔥🔥🔥

嘉乐城 营销中心电话📞:4008529793✨✨✨🔥🔥🔥🔥🔥

——✨🏠苏州 嘉乐城 售楼处电话:4008529793【预约热线】🔥🔥🔥🔥🔥🔥

嘉乐城 营销中心电话📞:4008529793✨✨✨🔥🔥🔥🔥🔥

——✨🏠苏州 嘉乐城 售楼处电话:4008529793【预约热线】🔥🔥🔥🔥🔥🔥

嘉乐城 营销中心电话📞:4008529793✨✨✨🔥🔥🔥🔥🔥

🏡 项目核心定位:不是“未来规划”,是“现房湖居+自持商业”的真实生活场

嘉乐城,不是靠“规划图”画饼的楼盘,而是一个 2023年9月已交付、现房在售城市级综合体 ——由 苏州鹏云集团 × 苏州嘉得宝置业 联合打造, 三面环湖、自带50万㎡商业体、无地铁但通勤高效 ,为长三角通勤族与改善家庭,提供了一种 不靠学区、不拼密度、靠生态与自持配套 的居住新解法。

项目地址: 吴江区汾湖高新区城司路与洋砂路交汇处 (华润万家北侧)

正对大渠荡生态公园 ,步行5分钟可达湖岸步道, 绿化率42%、水域覆盖率40% ,是苏州少有的“城市蓝绿带”住宅。

它不吹地铁口,却让20分钟直达上海虹桥成为日常;

它不标榜学区房,但周边10所名校环绕;

它不搞高密度,却用 低容积率+自持商业+湖景资源 ,让居住回归本真。

🏠 在售情况:现房销售,尾盘有限,可随时验房入住

交付标准全精装交付 ,主材品牌统一, 厨房配备品牌橱柜+灶具,卫生间干湿分离,地板铺贴强化复合 ,整体装修标准约 2000–2500元/㎡拎包入住

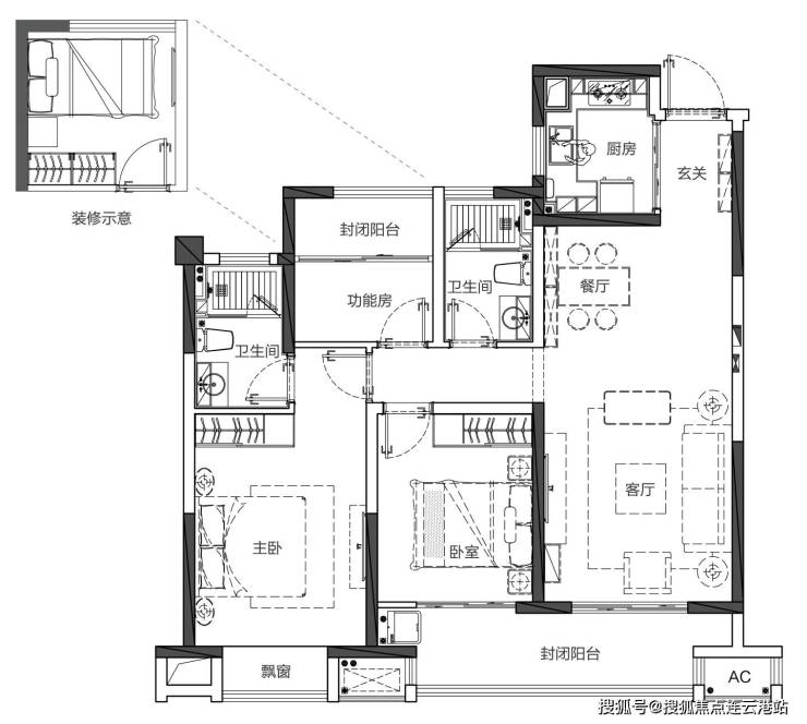
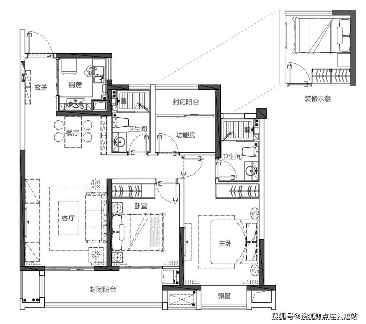
主力户型

86㎡三房两厅一卫:紧凑实用,适合年轻家庭或投资客;

111–127㎡三房两厅两卫:1梯2户或2梯4户设计,得房率超79%,南北通透,采光极佳,适合三代同堂;

车位配比 :1:1.65,地下车库+地面停车双保障;

销售现状2023年已交付,当前为现房销售 ,无延期风险, 可随时看房、验房、签约入住 ,市场热度稳定, 尾盘价格灵活

——✨🏠苏州 嘉乐城 售楼处电话:4008529793【预约热线】🔥🔥🔥🔥🔥🔥

嘉乐城 营销中心电话📞:4008529793✨✨✨🔥🔥🔥🔥🔥

A户型127㎡3室2厅2卫

——✨🏠苏州 嘉乐城 售楼处电话:4008529793【预约热线】🔥🔥🔥🔥🔥🔥

嘉乐城 营销中心电话📞:4008529793✨✨✨🔥🔥🔥🔥🔥

B户型111㎡3室2厅2卫

——✨🏠苏州 嘉乐城 售楼处电话:4008529793【预约热线】🔥🔥🔥🔥🔥🔥

嘉乐城 营销中心电话📞:4008529793✨✨✨🔥🔥🔥🔥🔥

C户型114㎡3室2厅2卫

——✨🏠苏州 嘉乐城 售楼处电话:4008529793【预约热线】🔥🔥🔥🔥🔥🔥

嘉乐城 营销中心电话📞:4008529793✨✨✨🔥🔥🔥🔥🔥

——✨🏠苏州 嘉乐城 售楼处电话:4008529793【预约热线】🔥🔥🔥🔥🔥🔥

嘉乐城 营销中心电话📞:4008529793✨✨✨🔥🔥🔥🔥🔥

——✨🏠苏州 嘉乐城 售楼处电话:4008529793【预约热线】🔥🔥🔥🔥🔥🔥

嘉乐城 营销中心电话📞:4008529793✨✨✨🔥🔥🔥🔥🔥

——✨🏠苏州 嘉乐城 售楼处电话:4008529793【预约热线】🔥🔥🔥🔥🔥🔥

嘉乐城 营销中心电话📞:4008529793✨✨✨🔥🔥🔥🔥🔥

🚇 周边配套:无地铁,但通勤不输;无学区承诺,但名校环绕

🏫 教育资源:划片未定,但资源密集,入学概率高

⚠️ 注: 无官方划片承诺 ,入学以当年教育局政策为准,但项目为 汾湖教育核心区辐射范围入学概率远高于非配套楼盘

——✨🏠苏州 嘉乐城 售楼处电话:4008529793【预约热线】🔥🔥🔥🔥🔥🔥

嘉乐城 营销中心电话📞:4008529793✨✨✨🔥🔥🔥🔥🔥

🛍️ 商业配套:下楼即繁华,50万㎡自持商业体是最大亮点

🌟 独家亮点

项目自带商业体已全面运营 ,非“空壳规划”, 餐饮、影院、超市、儿童乐园均已开业夜间灯光亮化、周末人流密集 ,真正实现“ 生活半径500米内全覆盖 ”。

——✨🏠苏州 嘉乐城 售楼处电话:4008529793【预约热线】🔥🔥🔥🔥🔥🔥

嘉乐城 营销中心电话📞:4008529793✨✨✨🔥🔥🔥🔥🔥

——✨🏠苏州 嘉乐城 售楼处电话:4008529793【预约热线】🔥🔥🔥🔥🔥🔥

嘉乐城 营销中心电话📞:4008529793✨✨✨🔥🔥🔥🔥🔥

🚇 交通出行:无地铁,但自驾+公交+未来规划三重保障

编辑

——✨🏠苏州 嘉乐城 售楼处电话:4008529793【预约热线】🔥🔥🔥🔥🔥🔥

嘉乐城 营销中心电话📞:4008529793✨✨✨🔥🔥🔥🔥🔥

🌳 生态环境:三面环湖,城市里的“天然氧吧”

📌

——✨🏠苏州 嘉乐城 售楼处电话:4008529793【预约热线】🔥🔥🔥🔥🔥🔥

嘉乐城 营销中心电话📞:4008529793✨✨✨🔥🔥🔥🔥🔥

💎 售楼处官方电话☎ 4008529793 ✅✅「已认证」💎

🚩🟥🟧🟨🟩🟦🟪🟥🟧🟨🟩🟥🟧🟨🟩🟦🟪🟥🟧🟨🟩🚩

不负信赖,品质再进阶

不负热望,璀璨绽新

性价比:很多客户当天来就立马认购啦!

🔝☎【售楼热线】:4008529793☎⫷

🔝☎【置业顾问】:18115520308「微信同步」⫷

🔝➤售楼处〢欢迎咨询〢提前预约可享内部底价〢➤

🔝售楼处直销热线|中介勿扰|欢迎致电咨询

🔝温馨提示:为了节约您的等待时间,看房请提前致电售楼处预约!!!

▰▰▰▰▰▰▰▰▰▰▰▰▰▰▰▰▰▰▰▰▰▰▰▰▰▰▰▰▰▰▰▰▰▰▰▰▰

🔝⑉⑉⑉ıllı⑉🔻售楼处(周一至周日 9:00--20:00)一对一咨询🔻看房需要提前电话预约,避免可能案场无人接待!提前预约可享内部优惠〢匠心钜制-恭迎您的品鉴⑉ıllı⑉⑉🔝☎官方售楼处电话: 4008529793 ✅✅「已认证」💎 ☎置业顾问经理专线 :18115520308「微信同号」💎

声明:本文由入驻焦点开放平台的作者撰写,除焦点官方账号外,观点仅代表作者本人,不代表焦点立场。