吴中太湖澄光2026官方网站-吴中太湖澄光-楼盘详情-吴中太湖澄光-全方位解读-楼盘详情-最新房价+户型图+交通
扫描到手机,新闻随时看
扫一扫,用手机看文章
更加方便分享给朋友
太湖澄光
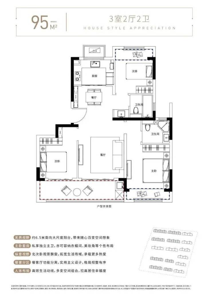
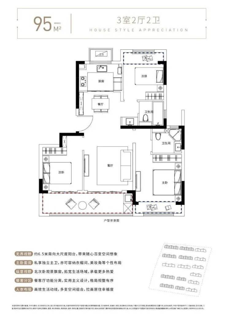
95-105㎡!苏州太湖湾6-7F真洋房
太湖澄光售楼热线:4008709151 ✔✔✔☎
太湖澄光置业顾问:131 8266 1993(同微信)✔✔✔☎
太湖澄光售楼处位置:400-8709-151 ✔✔✔☎
太湖澄光预约看房,置业顾问一对一对接,享受额外优惠!
洋房95平(3-2-2)洋房105平(3+1-2-2)洋房130平(4-2-2)
单价:13800起价格:132万-187万
总栋数/总户数:16栋/516户
总楼层数:花园洋房6-7层
几梯几户:花园洋房1梯2户
总户数:516
车位数:709
车位比:约1:1.37
容积率:1.2
绿化率:约42%
交付日期:70年毛坯.现房
物业:金钥匙物业/3.04元/月/平米
地址:吴中区太湖度假区丽波路与姚舍路交汇处
项目概况:太湖澄光售楼热线:4008709151 ✔✔✔☎
位置:姚舍路(太湖度假区南北居住中轴)
容积率:1.2(太湖湾最低密社区之一)
绿化率:42%,75%土地用于景观营造
户型:95㎡(3房2卫)、105㎡(3+1房2卫)、130㎡(4房2卫)
交付标准:毛坯,物业为路劲金钥匙服务
价格动态:太湖澄光售楼热线:4008709151 ✔✔✔☎
参考均价:14500元/㎡(2025年7月数据)
总价范围:137.5万-187.5万/套
历史价格:2024年2月均价17500元/㎡,当前价格较峰值下降约17%
配套亮点:太湖澄光售楼热线:4008709151 ✔✔✔☎
教育:苏州中学太湖湾实验学校(2025年9月揭牌)
医疗:苏州市立医院度假区医院
商业:太湖中心MALL(恒泰代运营)
生态:毗邻太湖,社区内设500㎡儿童乐园及宠物乐园
项目优势:太湖澄光售楼热线:4008709151 ✔✔✔☎
实景现房:园林、洋房已成型,无期房风险
设计亮点:双联大阳台、主卧套间、高得房率
交通:公交线路覆盖(如580路、591路)
声明:本文由入驻焦点开放平台的作者撰写,除焦点官方账号外,观点仅代表作者本人,不代表焦点立场。
