●洋房户型-臻雅建筑面积约128㎡4室2厅3卫约6.6米大宽厅,百变空间;一体化中西厨,烟火仪式感;全光影飘窗,风景入眼约6.9米大宽厅,百变空间;一体化中西厨,烟火仪式感;全光影飘窗,风景入眼●叠加户型-揽…
汾湖·亨通·浦江雅院
长三角一体化示范区先行启动区——汾湖核芯
沪苏嘉三地轨交贯通,双高铁十字交汇!

【项目概述】
【开发商】亨通地产
【占地面积】约60382.9㎡
【总建筑面积】约116167.94㎡
【总户数】468套(洋房220套,叠加248套)
【装修配置】洋房精装交付、叠加毛坯交付
【容积率】约1.1
【全球实力 深耕吴越】
亨通集团中国企业500强:业务覆盖130多个国家。全国10省设立产业研发基地,全球光纤通信行业前3强。
作为亨通集团旗下子公司,亨通地产多年砥砺深耕吴越地区:致力于地方人居环境的改善和提升。
【上海西 一体化示范区先行启动区】
● 约660平方公里烫金版图,势启2035


● 上海西浦江之源,离世界更近一步
【高铁】沪苏湖高铁(计划2024年通车)、通苏嘉甬高铁(计划2024年苏州段通车)、沪苏嘉城际铁路(计划2028年通车)
【轨交】17号线西延线水乡客厅站(规划中),距项目直线距离约1.5公里,苏州地铁10号线(规划中)、嘉兴地铁3号线(规划中),将在水乡客厅站(规划中)交汇。
【高架】距分湖收费站直线距离1km,通过G50沈海高速、申嘉湖高速、常嘉高速、沪昆高速等,约40分钟直达苏州主城区和上海虹桥。
【湖海】西接烟波浩渺的东太湖,东连碧波粼粼的黄浦江,际遇世界长三角的湖海正芯,孕育海纳百川的上海精神。

【汾湖芯上 醇熟流金版图】
● 全龄教育 阅见未来
汾湖实验幼儿园、汾湖实验小学、汾湖实验中学、中加枫华国际学校等名校林立。

● 繁华畅享 举步即达
一路之隔即华润万家、温德姆酒店、沪宁时代购物中心等优渥品牌商业。
●关爱身心 三甲医疗
至2035年,示范区内至少布局5所三级甲等综合医院,时刻护航您与家人的身心健康。


【江南名镇 天赋风景蓝本】
●千年江南文脉 6大古镇浓荫
汾湖黎里古镇与上海朱家角古镇、浙江西塘古镇、昆山锦溪古镇、周庄古镇、吴江同里古镇等深蕴千年江南的文脉风采。
●4A级国家风景毗邻 生态水系绝佳
元荡、大渠荡、三白荡、淀山湖等多湖水系公园,形成独特的生态谧境。

【湖滨新作 致敬城市封面】
●低密湖滨美宅 滨水风情泊岸
社区容积率仅为1.1:超500米全市最大跨自然水面公园风情泊岸,为居者提供焕醒身心的谧境。以社区滨水会客厅为核心主轴,将集会广场、四点半学堂、蔚蓝码头、趣味宅间、邻里会客厅、健康跑道、长者空间融入缤纷景观当中,形成浦江畔的超级滨水聚场,收藏时光里的高阶藏品生活。


●水岸叠加 天地墅区境界
亨通以私密尺度和滨水风情赋值:142-188m² 叠加的慢生活主张,从终端使用者的功能需求出发为业主模拟使用场景,以引领一体化核心风尚的慢生活主张,为全龄家庭每个成员带来归心于更多风景的高定生活方式。
●自在洋房 精装匠心品质
亨通以匠心品质和用心细节:为112-128m² 洋房精心选材,以人性化功能适用、高定细节精研、健康节能环保、个性化高定成品四大精装工艺,为客户提供高定成品宅的生活日常,让居者一步到位的享受宅度假式酒店的居家空间。

【户型鉴赏】
产品:建面约112-128㎡精装三大件洋房,建面约142-188㎡湖岸院墅
⭕精装三大件洋房:
建面约112㎡,3室2厅3卫
建面约128㎡,4室2厅3卫
湖岸院墅:
上叠
建面约142㎡,4室2厅4卫
建面约182㎡,4室2厅5卫
下叠
建面约148㎡,4室2厅4卫
建面约188㎡,4室4厅5卫
●洋房户型-悦雅建筑面积约112㎡ 3室2厅3卫
✅亨通浦江雅院售楼处电话:400-998-3632✅

【私享入户】独立玄关,入户前厅,尊崇归家仪式
【朗阔舒享】大三房明朗空间,超高得房率,多重收纳体系
【全明风景】四开间朝南,卧室全飘窗设置,低密湖滨风光
【U型明厨】中西厨设置,洗切炒流畅动线,烹饪暖心美味
【横置宽厅】约5.3米开间大横厅,一体化餐客共享,融入烟火诗意
【全屋套房】全能套房设计,理想生活样本
【典雅卫浴】主卫三件套,主客分开,兼顾私密性与干湿分离
●洋房户型-臻雅建筑面积约128㎡ 4室2厅3卫

【私享入户】独立玄关,入户前厅,尊崇归家仪式
【奢阔臻享】舒适尺度,大四房奢享空间,多重收纳体系
【四季光影】四开间朝南,阳台约2米进深,典藏四季风景
【U型明厨】开阔空间,洗切炒流畅动线,烹饪暖心美味
【横置宽厅】约6.6米开间大宽厅,一体化餐客共享,融入滨湖烟火
【全屋套房】全能套房设计,理想生活样本
【典雅卫浴】主卫三件套,主客分开,兼顾私密性与干湿分离
●叠加户型-悦湖墅建面积约142㎡ 上叠4室2厅4卫

【四季光影地下室】
独立采光井,光影挥洒;地库车位入户,便捷出入;功能储藏,多重收纳
【百变宽厅三层】
约6.6米大宽厅,百变空间;一体化中西厨,烟火仪式感;全光影飘窗,风景入眼
【高定风景四层】
主卧套房化,高定空间;次卧风景露台,轻奢入心;共享公区,酒店日常
【亲子成长阁楼】
亲子空间,自由成长天地
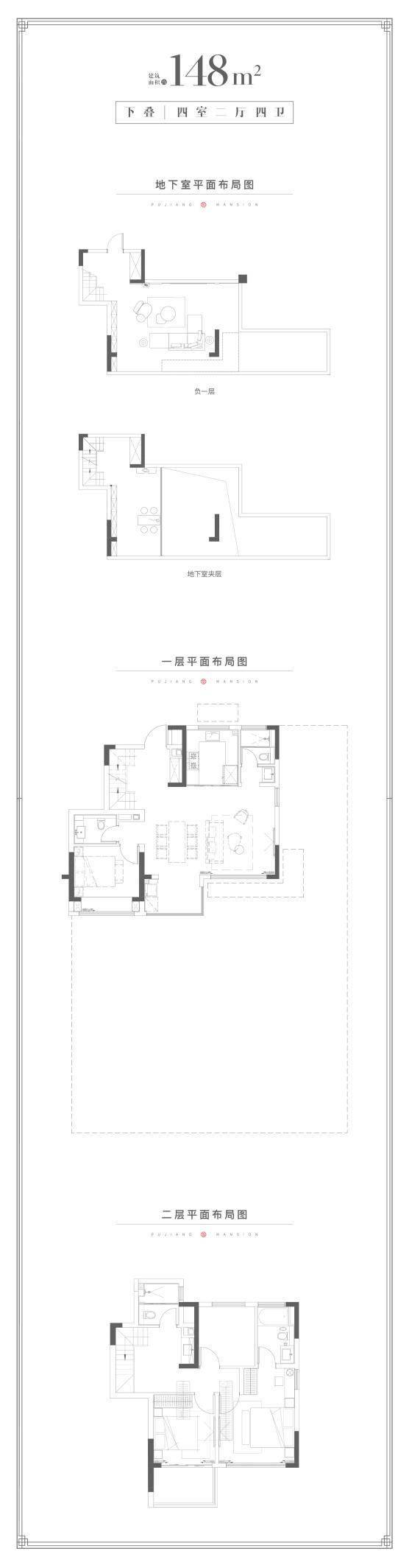
●叠加户型-滨湖墅面积约148㎡ 下叠4室2厅4卫
✅亨通浦江雅院售楼处电话:400-998-3632✅

【光影会客地下室】
独立采光井,光影挥洒;约6.6米超大会客厅,社交沙龙;功能储藏,多重收纳
【滨湖院落一层】
6.6米大宽厅,百变空间;一体化中西厨,烟火仪式感;约270°IMAX滨湖院落,尽收天地
【高定风景二层】
主卧套房化,高定空间;次卧风景露台,轻奢入心;共享公区,美好合集
●叠加户型-星湖院建面积约182㎡ 上叠4室2厅5卫

【光影挑高地下室】
独立采光井,光影挥洒;挑高夹层,健身娱乐;功能储藏区,多重收纳
【高定风景三层】
主卧套房化,独享阳台;次卧风景飘窗,湖境入心;共享公区,丰盛时光
【百变会客四层】
约6.9米大宽厅,百变空间;一体化中西厨,烟火仪式感;全光影飘窗,风景入眼
【星月屋顶花园】
屋顶花园,收藏四季星月
●叠加户型-揽湖院 建面约188㎡ 下叠4室4厅5卫

【光影挑高地下室】
独立采光井,光影挥洒;挑高夹层,健身娱乐;会客沙龙,品茗盛筵;
亲子天地,自由成长;功能储藏,多重收纳
【揽湖院落一层】
约6.9米大宽厅,百变空间;一体化中西厨,烟火仪式感;南向院落,揽湖入境
【高定风景二层】
主卧套房化,风景飘窗;次卧独享阳台,湖境入心;共享公区,理想样本

汾湖亨通·浦江雅院
✔亨通·浦江雅院售楼热线:☎4009983632(已认证)✔
✔亨通·浦江雅院营销热线:☎400-998-3632(已认证)✔
✔亨通·浦江雅院置业经理:☎13270987731(可指定)✔
✔亨通·浦江雅院售楼处〢预约看房热线,提前预约可享更多折扣〢✔