建发和萃澜庭(建发和萃澜庭)楼盘详情-房价-户型-环境-建发和萃澜庭欢迎
扫描到手机,新闻随时看
扫一扫,用手机看文章
更加方便分享给朋友
建发和萃澜庭售楼处电话:400 998 3631✔✔
营销中心电话4009983631 ✔✔
和萃澜庭售楼处位置400-998-3631✔✔
和萃澜庭置业顾问:131 6013 6853【营销中心】
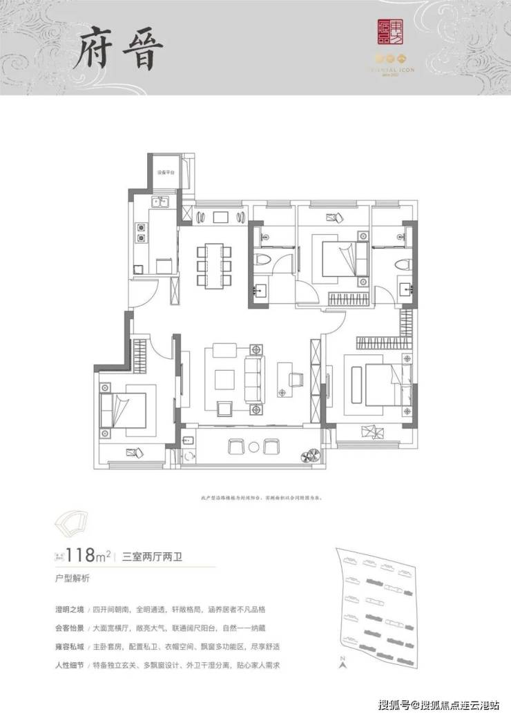
户型面积: 101-140平方米
价格:2万
装修配置: 精装修交付,配备中央空调、地暖、新风系统等高端设施。
交付时间: 2024年7月至12月
绿化率: 约37%
容积: 1.8开发商: 武汉城市建设集团、金地集团、建发集团联袂打造。
物业服务: 金地智慧物业管理。
车位配比: 1:1.43,确保停车便利。销售中心地址: 位于苏州高新区科技城太湖大道与福东路交汇处。
和萃澜庭,位于苏州高新区科技城核心,深受建发“王府中式”的影响
科技城作为“一核四城”的重要组成部分,太湖大道贯穿板块发展脉络,目前向东、向西已无土地可供开发。和萃澜庭正处于科技城3.0时代的第一站。
繁华精粹处,步行生活圈
自驾交通丨太湖大道、中环北线西延
公共交通丨有轨电车2号线、规划地铁9、10、 11、 13号线(规划中)
商业资源丨高新区文体中心、生活新空间(龙惠店)、时尚水岸、丰茂里商业街
教育资源丨科技城实验小学西渚小学、新区实验中学、科技城外国语学校
医疗资源丨科技城医院(三甲)
生态资源丨大阳山国家森林公园、苏州乐园、苏州太湖国家湿地公园
园林是连接“城郭闹市”与“山水林泉”的桥梁,更是主人精神世界的物化载体。和萃澜庭这座科技城芯的新中式洋房住区,将千年苏式生活美学融入建筑肌理,以 “咫尺乾坤” 的营造法则,让居住空间流淌着东方韵味。
门第丨稀缺王府 东方园居
遵循“天圆地方”的造宅理念,和萃澜庭户型设计暗藏东方哲学智慧。建筑面积约140㎡户型南向奢适面宽,恰合“向阳而生”的居住智慧;南北通透设计,复刻了拙政园“与谁同坐轩”的通风妙法。
建面约140㎡ 样板间效果展示图,以实际交付为准
触摸青瓦飞檐的温度,感受清晨被鸟鸣唤醒,傍晚看夕阳为黛瓦镀上金边的美景,让苏式美学真正成为生活的日常。
实景图
从园林到归家仪式,从建筑到户型设计,和萃澜庭以实景准现房的姿态,将苏州千年人居智慧娓娓道来。建筑面积约118-140㎡新中式洋房,热势争藏!
和萃澜庭采用德国科林贝思新风系统,宛如为家量身定制的“呼吸系统”高效运转模式,在无需开窗的前提下持续引入新鲜空气,同步完成PM2.5高效过滤,将室内湿度精准控制在人体舒适区间;其全热交换黑科技更能在除湿过程中智能保留室内温度,较传统开窗通风更显舒适宜人。
和萃澜庭户型凭借合理布局与科学设计,自带强大“防潮buff”:南向开间搭配阳台的黄金组合,让自然风全天候畅通无阻,加速室内潮气排出的同时,比空调除湿更显节能环保;尺度舒阔的横厅设计,阳光肆意倾泻至每个角落,从根源上杜绝霉菌滋生环境,让梅雨季的居家生活亦能保持干爽舒适。
·户型鉴赏·
建发和萃澜庭售楼处电话:400 998 3631✔✔
营销中心电话4009983631 ✔✔
和萃澜庭售楼处位置400-998-3631✔✔
和萃澜庭置业顾问:131 6013 6853【营销中心】
声明:本文由入驻焦点开放平台的作者撰写,除焦点官方账号外,观点仅代表作者本人,不代表焦点立场。
