热力推荐——无锡梁溪区世纪金源隐山售楼处楼盘百度详情→24小时电话@世纪金源隐山卖爆了?

连云港楼市发布 2025-10-16 09:43:19
用手机看
扫描到手机,新闻随时看

扫一扫,用手机看文章
更加方便分享给朋友

开发商:梁溪文旅、世纪金源、腾云筑科联合开发位置:无锡市梁溪区运河西路与盛岸路交汇处西南侧(惠山古镇风貌区)规模:占地3.4万㎡,总建面6.9万㎡,容积率1.2,规划144户产品类型:合院(24席)、叠墅(1…

无锡梁溪区世纪金源隐山

售楼处电话:

4008083612✔✔

世纪金源隐山营销中心电话

4008083612 ✔✔

世纪金源隐山售楼处位置

4008083612✔✔【营销中心】

世纪金源隐山销售总监:

13013766193【微信同步】

无锡梁溪区世纪金源隐山售楼处热线

☎:4008083612(预约看房热线√√)

世纪金源隐山售楼处电话/地址☎:400-808-3612【售楼中心已认√√】

无锡世纪金源隐山楼盘笔记(2025年10月版)

一、项目核心标签

开发商:梁溪文旅、世纪金源、腾云筑科联合开发

位置:无锡市梁溪区运河西路与盛岸路交汇处西南侧(惠山古镇风貌区)

规模:占地3.4万㎡,总建面6.9万㎡,容积率1.2,规划144户

产品类型:合院(24席)、叠墅(120套)

价格区间:合院总价760万-2800万,叠墅价格待定(具体以售楼处为准)

交付时间:2027年12月底

物业:世纪金源物业服务(6元/㎡/月)

世纪金源隐山销售总监:

13013766193【微信同步】

二、产品差异化解析

维度合院(435-618㎡)叠墅(233-422㎡)定位文化传世藏品高端改善设计亮点龙光塔中轴线占位咬合式设计+露台/花园得房率地上3层+地下功能层上叠带100㎡露台核心卖点推窗见龙光塔主城稀缺低密叠墅

世纪金源隐山销售总监:

13013766193【微信同步】

三、交付标准与配置

合院:毛坯交付,层高3.5米(地上),地下室挑高5.95米

叠墅:精装交付(装标4200-5200元/㎡),含日立中央空调、地暖、新风系统

公区配套:

会所含健身房、私宴厅、棋牌室

园林移植寄畅园五十景,复刻江南园林意境

世纪金源隐山售楼处位置

4008083612✔✔【营销中心】

四、市场反馈与稀缺性

首开表现:2025年6月首销5.2亿,合院去化超70%

稀缺性:

惠山古镇内唯一在售低密住区(容积率1.2)

24席合院均位于龙光塔视觉通廊,占位不可复制

世纪金源隐山销售总监:

13013766193【微信同步】

五、配套资源图谱

文化:零距离惠山古镇、寄畅园、天下第二泉

交通:地铁4号线惠山古镇站(直线500米),西内环快速路

商业:3km内覆盖恒隆广场、八佰伴

生态:惠山国家森林公园、京杭运河环抱

世纪金源隐山销售总监:

13013766193【微信同步】

六、产品力深度解析

合院435-545㎡:

中轴线户型仅15席,配置地下酒窖+星空露台

苏式园林造景,私家码头直通运河

叠墅244㎡(上叠):

咬合式设计,带70-100㎡露台+24㎡地下室

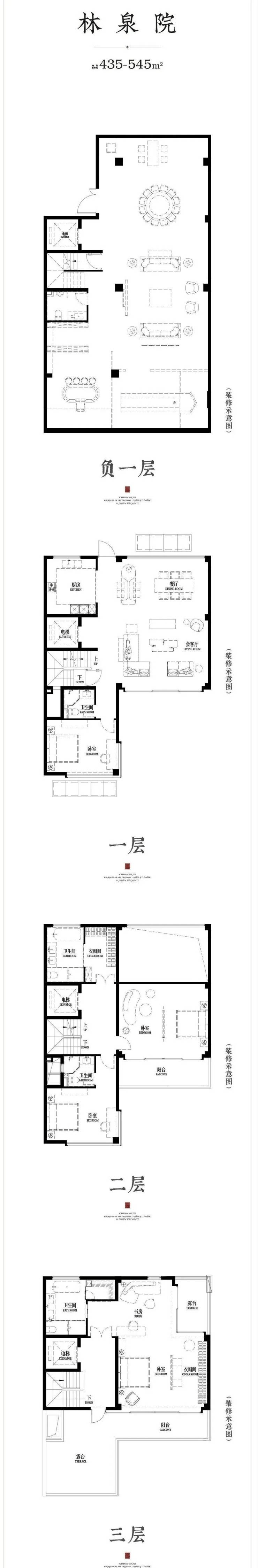
精装标准5200元/㎡,含智能家居系统隐山建面约435-545㎡合院户型

世纪金源隐山售楼处位置

4008083612✔✔【营销中心】

世纪金源隐山销售总监:

13013766193【微信同步】

该户型为隐山建面约435-545㎡合院户型,仅15套,位于中轴线位置。户型层高约3.5米,地上三层,地下一层。

隐山建面约526-618㎡合院户型

无锡梁溪区世纪金源隐山

售楼处电话:

4008083612✔✔

世纪金源隐山营销中心电话

4008083612 ✔✔

世纪金源隐山售楼处位置

4008083612✔✔【营销中心】

世纪金源隐山销售总监:

13013766193【微信同步】

无锡梁溪区世纪金源隐山售楼处热线

☎:4008083612(预约看房热线√√)

世纪金源隐山售楼处电话/地址☎:400-808-3612【售楼中心已认√√】

世纪金源隐山➨����售楼处电话:4008083612√√【电话预约☎】售楼处营销中心:4008083612(开发商热线)售楼中心电话/地址☎:4008083612【售楼处已认证√√√】★来电可了解楼盘最新动态,项目全面介绍(包含最新发布:在线预约看房丨在售房价优惠丨户型面积房源丨交房时间丨商业配套丨教育资源丨小高层洋房丨独栋别墅丨联排合院丨商业别墅丨得房率丨容积率丨小区环境丨优缺点分析丨楼盘测评丨在售户型图样板间丨项目介绍丨最新房源丨周边配套丨详细解答丨一对一热情讲解〢区域板块等信息!★郑重承诺:由开发商旗下销售团队全程营销策划,房源信息真实有效!如果您想了解更多楼盘详情,欢迎提前预约拨打售楼处电话4008083612√√√(已认证)

声明:本文由入驻焦点开放平台的作者撰写,除焦点官方账号外,观点仅代表作者本人,不代表焦点立场。