象屿时光青澄-2025苏州园区青剑湖该楼盘房价户型容积率及小区环境全解析
扫描到手机,新闻随时看
扫一扫,用手机看文章
更加方便分享给朋友
园区独有的小户洋房
全新楼盘 惊艳苏城
☎️VIP热线:4009983632【售楼专线】☎️
☎️购房热线:13270987731(微信同号)☎️
苏州园区售楼处〢诚邀垂询〢提前预约尊享内部特惠〢➤
象屿·时光青澄
开发商:象屿地产、苏州恒泰 (双国企联袂)
占地面积:约 3.6万平方米
总建筑面积:约 8.5万平方米
绿地率:不低于 35%
容积率:不高于 1.5
规划户数:约 496 户人家
机动车车位数:约 681 个
产品类型:13 栋 8 - 11 层纯洋房住区
户型面积:建筑面积约 91㎡、112㎡、128㎡(洋房户型)
交付规格:精装修交付
楼户配比:2 梯 4 户
8 层:1 号楼
10 楼:2、3、5、7、8、9、11、12、14、15 号
11 楼:13、16 号
物业公司:江苏象屿物业管理有限责任公司
项目地点:苏州园区·青剑湖·夷浜路与科成路交汇处
☎️ VIP 专线:4009983632【售楼热线】☎️

【品牌·青澄】苏州新核再绽光芒
苏州恒泰:园区的开拓先锋与运营行家
作为中新合作苏州工业园区直属的大型国企,苏州恒泰累计开发各类物业载体面积近760万平方米,像苏州中心、苏州自贸商务中心等都是其代表之作。如今,它已在园区的商业地产、产业地产以及租赁住房领域,成为举足轻重的载体持有方与运营者。

象屿地产:国匠精工的卓越践行者
象屿集团作为厦门市属国有企业,在《财富》世界 500 强中排名第 142 位。历经 31 年发展的象屿地产,是象屿集团旗下的全资子公司。其深入扎根长三角核心都市圈,是在华东区域颇具声誉的精品住宅开发企业,多年来持续荣获“中国房地产开发稳健十强”以及“中国华东房地产品牌价值 TOP10”等殊荣。
在 2024 年上半年销售业绩方面,象屿地产全国销售金额(操盘)排名第 30 位,在上海市场销售金额(操盘)位列第 17 位,于苏州市场销售金额更是荣登榜首。☎️VIP 热线:4009983632【售楼热线】☎️

【土地·青澄】十字正核的盛景
工业园区 | 长三角佼佼者 苏州新标识
苏州工业园区身为“中国改革开放的关键窗口”以及“国际合作的典范之作”,2023年地区生产总值高达3686亿元,在全市生产总值中位居榜首。
国家级经开区综合考评连续八年荣登榜首、国家高新区综合评价在全国位列第四
中新携手合作 - 约101家世界五百强企业在此投资并落地174个项目,堪称国际合作的成功典范

青剑湖板块 | 阳澄南岸创新城 近享湖东CBD繁华
阳澄南岸创新城,作为城市的重要名片,被定位为环阳澄湖一体化发展的引领区域、长三角总部经济协同联动区域、园区产城融合升级的示范区域,在推动区域能级提升方面发挥着关键作用。并且这里生态资源丰富,无疑是园区最适宜居住的高品质板块。

一、占据核心,交通畅达
恒泰象屿·时光青澄坐落于园区核心地段,交通出行十分便利。该项目靠近园区高铁站,相距大约5公里,搭乘高铁能够迅速抵达全国各地,不管是商务出行还是探望亲友,皆可从容应对。而且,地铁3号线(距离约2公里)与规划中的地铁16号线在此交汇,地铁线路将苏州市的各大商圈紧密相连,助您自在穿梭全城。

二、多元商圈云集,畅享缤纷生活
项目周边环绕着龙湖天街商圈、湖东CBD圆融商圈以及永旺商圈。这些商圈汇聚大量知名品牌,涵盖丰富多样的餐饮选择与娱乐设施,全方位满足您日常购物、休闲与娱乐的各类需求。不管是周末惬意的逛街时光,还是与朋友欢聚一堂的欢乐时刻,此地都能为您营造满满的幸福感。

三、教育资源充沛,畅享一站式教育体验
恒泰象屿·时光青澄周边汇聚了公办九年一贯制的星澄学校、伊顿双语伟才厚永幼儿园等诸多优质教育资源,全力打造一站式教育服务。于此,您能安心把孩子的教育事宜交给专业教育机构,让孩子于优质教育环境里蓬勃成长。

四、完备医疗设施,贴心守护健康
项目周边医疗资源丰富,距离约4公里(直线距离)处有星湖医院,约9公里(直线距离)的九龙医院(三甲)时刻为您的健康守护。在此,您能够畅享高品质医疗服务,生活更添安心保障。

五、生态景致迷人,饱览自然馈赠
恒泰象屿·时光青澄周边被阳澄湖、青剑湖、翡翠湖这三大湖泊环绕,生态环境十分迷人。像阳澄湖湖滨生态体育公园、翡翠湖生态公园这类休闲场所,能让您在空闲之时,充分领略大自然的馈赠。踱步于湖畔,畅快呼吸着清新的空气,深切感受大自然的美妙,让您的生活更具闲适之感。

六、邂逅品质生活,从恒泰象屿·时光青澄启程
恒泰象屿·时光青澄,一处融合便捷交通、繁华商圈、优质教育、完备医疗与优美生态的品质生活典范。于此,您能领略都市生活的便利与惬意,感受品质生活的迷人魅力。

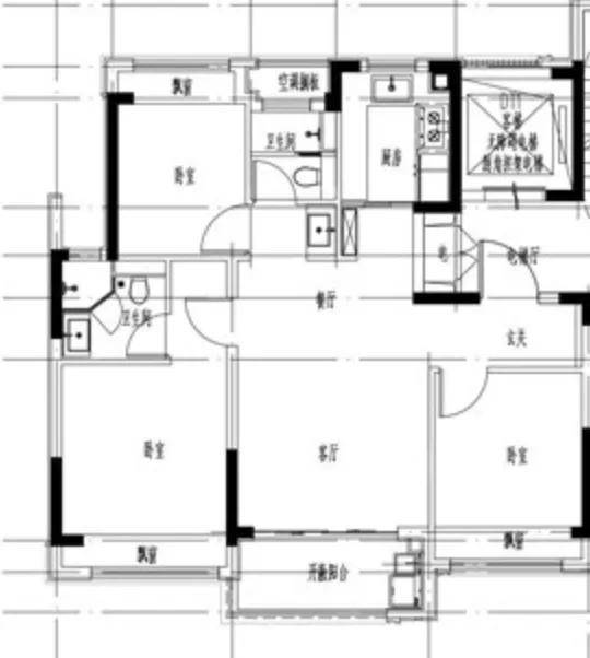
户型赏析:涵盖三个面积区间,约90㎡、112㎡以及128㎡,均为一梯两户设计,且配备精装三大件交付!
即便是最小的约90㎡户型,也打造出了3房2卫的格局,三开间朝南、全屋赠送3个大飘窗、设置开敞阳台,客卫实现干湿分离、厨房采用U型设计…称得上是满分入门户型!
10F洋房,建筑面积约90㎡
3房2卫,2梯4户布局
堪称神来之笔的户型,依旧是约 112㎡,竟打造出了 4 房 2 卫的格局!
三个大开间皆朝南向,全屋足足有 4 个飘窗免费赠送,独立入户玄关设计、套房式主卧……实用性拉满!三代同堂还有二胎的家庭也能轻松容纳!
并且,不出意外的话,在当下园区的新房里,这大概率是总价最低的 4 房户型。
8 层洋房,建筑面积约 112㎡
4 房 2 卫,2 梯 4 户配置
建面约 128㎡的空间更显舒适,户型为大三房搭配双联阳台,客厅采用大宽厅设计……预算较为充裕的改善型家庭不妨考虑这个户型。
10 层洋房,建筑面积约 128㎡
4 室 2 卫,2 梯 4 户布局

☎️VIP专线:4009983632 【楼盘销售热线】☎️
☎️购房热线:13270987731(微信同号)☎️
苏州园区售楼处〢诚邀垂询〢提前预约能享专属优惠〢➤
声明:本文由入驻焦点开放平台的作者撰写,除焦点官方账号外,观点仅代表作者本人,不代表焦点立场。
