2025 深度剖析太仓碧桂园湖语颂楼盘,含最新价格、户型与位置评测
扫描到手机,新闻随时看
扫一扫,用手机看文章
更加方便分享给朋友
太仓碧桂园湖语颂
建面约105-140㎡装修洋房
建面约155-185㎡法式叠墅
洋房23000元/㎡ 叠墅25000元/㎡
特惠洋房21000元/㎡ 叠墅24000元/㎡
☎️VIPline:4009983632【售楼热线】☎️
☎️置业热线:13270987731(同微信)☎️
➤售楼处〢欢迎咨询〢提前预约可享内部优惠〢➤
【基础信息】
所属区位:太仓市·科教新城·天镜湖
楼盘地址:太仓市科教新城天镜湖东桴亭路文渊路
开发商:碧桂园&龙光&金地
物业类型:8层洋房 + 6层叠墅
产权年限:70年
总建筑面积:约16.6万㎡
容积率:1.6
绿化率:超37%
建筑密度:<35%
总户数:1102
车位比:约1:1.8
物业费:商业3元、住宅1.74元、能耗0.5元
装修配置:精装洋房+低密叠墅
产品信息:建面约105-140㎡装修八层洋房
建面约155-185㎡法式低密叠墅
洋房23000元/㎡ 叠墅25000元/㎡
太仓湖语颂:400 998 3632
项目配套
【交通】沪苏通铁路太仓站、太仓南站、G15沈海高速
【学校】南郊幼儿园、科教新城实验小学、良铺中学、太仓高中
【商业】南洋广场、华旭广场、万达广场、华发商城、天镜湖商业街、海运堤风情商业街
【公园】天镜湖公园
湖语颂,承袭莫奈花园法式优雅基因,景观与建筑巧妙结合,形成容积率约1.6法式景观境界。
产品规制上,限高8层24米,匠造33栋6层叠拼别墅、18栋8层精装洋房,三面环水,北高南低人性设计,呈现法式经典的对称布局。
户型打造上,建面约105-140㎡装修八层洋房,建面约155-185㎡阔绰人文叠墅,不同的产品形态匹配出城市人物的理想生活方式。
楼盘首开范围:30#、31#、32#、33#、35#、36#、39#、48#、49#。
二期范围:34#、37#、38#、41#、42#、51#、52#。
太仓湖语颂:400 998 3632





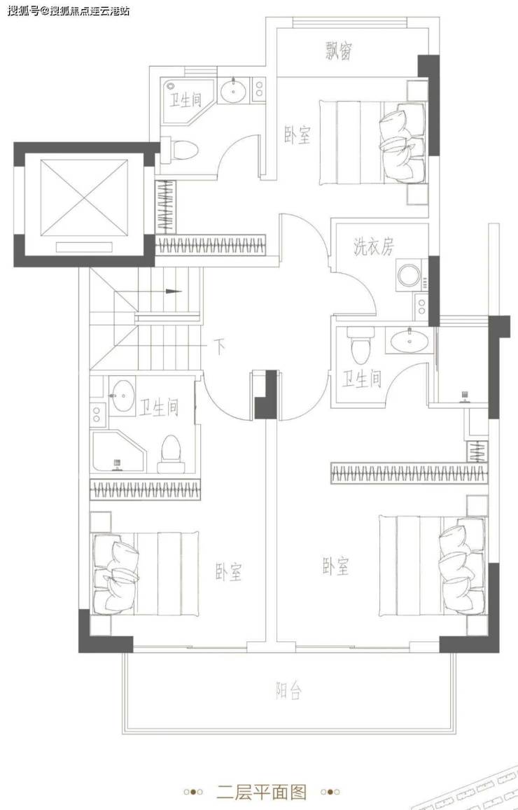
户型赏析(得房率:约82%~87%)
叠墅A户型(中叠)
户型亮点:
约6.55米面宽双层阳台,双层270°转角飘窗
南向四卧,动静分离
三层约7.2米面宽大横厅
四层双套房设计
叠墅B户型(上叠)
户型亮点:
独立入户设计
约6.15米面宽阳台
五层约7.55米面宽大横厅
六层奢阔主卧设计
叠墅B户型(中叠)
户型亮点:
独立入户设计
约6.15米面宽双层阳台
三层约7.55米面宽餐客厅
四层全套房设计

叠墅B户型(下叠)
户型亮点:
负一层储藏室建面约80㎡,约5.1米层高
一层约7.55米面宽大横厅
二层全套卧设计
洋房户型:
户型亮点:
三开间朝南
约1.6米进深双阳台|约7.3米面宽
约3.6米面宽主卧套房
约4.75米面宽厨房
户型亮点:
约10.9米大面宽|三开间朝南
约6.3米面宽阔绰双阳台| 进深约1.8米
约4米大面宽客厅
约3米面宽主卧套房|全开间飘窗
户型亮点:
超12米大面宽|三开间朝南
约7.6米面宽| 约1.8米进深双阳台设计
约5.3米面宽阔绰客厅
约4.05米面宽奢华主卧套间| 步入式衣帽间
装修标准
太仓最高标准打造,配备全屋新风系统、中央空调、地暖等
太仓碧桂园湖语颂
☎️VIPline:4009983632【售楼热线】☎️
☎️置业热线:13270987731(同微信)☎️
➤售楼处〢欢迎咨询〢提前预约可享内部优惠〢➤
声明:本文由入驻焦点开放平台的作者撰写,除焦点官方账号外,观点仅代表作者本人,不代表焦点立场。
