海潮望月城首页网站-杭州上城区|海潮望月城欢迎您|海潮望月城楼盘详情/新价格/户型/地址丨海潮望月城_杭州上城区楼市最新发布
扫描到手机,新闻随时看
扫一扫,用手机看文章
更加方便分享给朋友
海潮望月城
☎【海潮望月城营销中心】:400-837-8831☎
☎【海潮望月城售楼处】:400-837-8831☎
☎【海潮望月城售楼电话】:159 6256 4266「微信同步」☎
【区域板块】:望江新城
【项目地址】:海潮路与东宝路交叉口
【项目信息】:298套,可售7幢(18/20/22层)
【销售信息】
一、东地块9、12号楼(主力面积约303、306方)
二、西地块3号楼(主力面积约301、410方)
【面 积】:约300㎡起
【物 业】:滨江物业
【占地面积】:西地块2.7万方;东地块约1.6万方
【总建面积】:约29.6万方
【交付时间】:2025年底前
【内部配套】:室内恒温泳池/健身房/瑜伽房
【层 高】:建筑层高约3.4米

【区域篇】
近西湖约2.5公里
鼓楼、河坊街、南宋御街约1.5公里
钱江新城核心区(来福士、万象城)约2.5公
k11艺术购物中心和瑰丽酒店仅一路之隔
【商业篇】
新世界k11艺术购物中心约100米
湖滨银泰约2.5公里
来福士和万象城约2.5公里
杭州大厦、国大广场、武林银泰约3公里
【医疗篇】
浙江大学附属第一医院、杭州市第三人民医院、浙江大学医学院附属妇产科医院等
小区实景图:
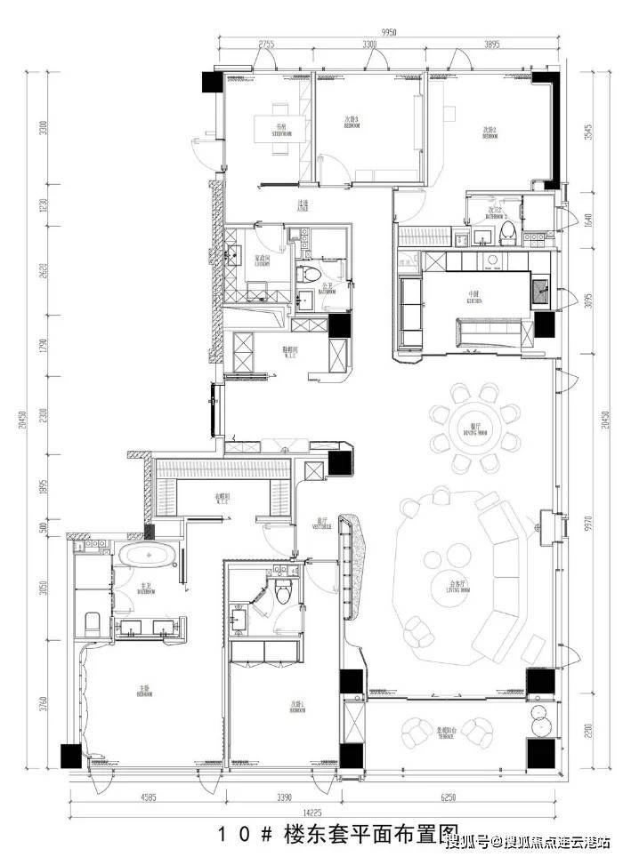
10# 306方 孟也-雅颂
5房:3套房+1客房+1书房
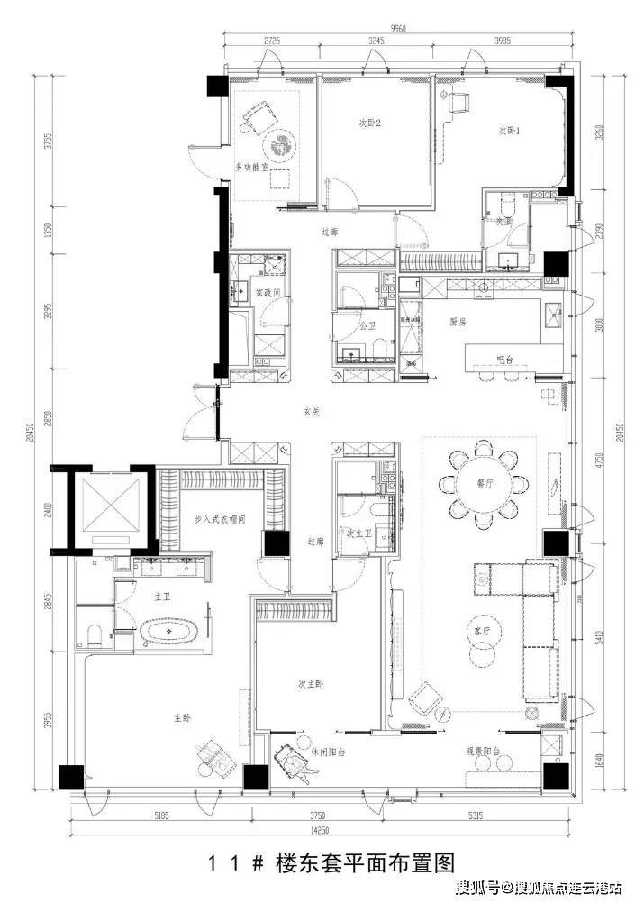
11# 306方 李益中 -拾光
5房-3套房+1客+1书
海潮望月城
☎【海潮望月城营销中心】:400-837-8831☎
☎【海潮望月城售楼处】:400-837-8831☎
☎【海潮望月城售楼电话】:159 6256 4266「微信同步」☎
声明:本文由入驻焦点开放平台的作者撰写,除焦点官方账号外,观点仅代表作者本人,不代表焦点立场。
