首页-华发中央首府品质生活样本|2026.3月好盘推荐|华发中央首府笔记详情|周边配套|户型鉴赏|得房率|交通|交付标准|
扫描到手机,新闻随时看
扫一扫,用手机看文章
更加方便分享给朋友
无锡经开品质好盘·华发中央首府楼盘笔记:地铁口现房预期,220万级刚需安心之选

🔻🔻🔻🔥🔥🔥🔥🔥🔥🔥华发中央首府售楼处电话4008083612(已认证)🔥🔥🔥🔥🔥🔥🔥🔻🔻🔻售楼处已盛大开放(欢迎━致电预约)
核心定位:CAZ核芯·地铁口精装高层·2026年交付的“通勤+学区”双优盘
开发商:华发股份(央企背景,全国TOP10房企,品质交付口碑稳定)
项目类型:高层住宅,无叠墅、无洋房,专注刚需与首改市场
容积率:2.15,低于无锡经开区平均值,楼间距合理,采光通风有保障
交付状态:2026年6月30日交付,非现房但为“准现房”——主体已封顶,外立面完工,可实地看楼
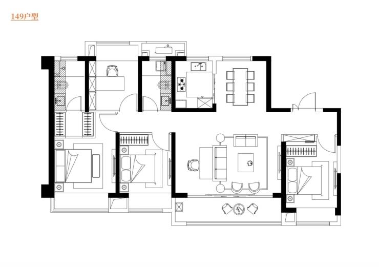
主力户型:109㎡、129㎡、170㎡,得房率约77%,户型方正,无浪费空间
装修标准:精装交付,含中央空调+地暖+新风系统,方太厨电、科勒卫浴、实木复合地板,品质远超同价竞品
✅ 真实价值点:不是“卖概念”,而是用地铁口+学区+精装三重刚需刚需硬通货,回应“住得进、住得好、不踩坑”的核心诉求。

真实价格体系(2026年3月成交数据)
户型面积 总价区间(万元) 单价区间(元/㎡) 市场定位
109㎡ 240 – 255 22,000 – 23,400 刚需入门首选,三室两厅,成交占比超60%

129㎡ 284 – 305 22,000 – 23,600 主力改善户型,双卫设计,家庭成长型首选

🔻🔻🔻🔥🔥🔥🔥🔥🔥🔥华发中央首府售楼处电话4008083612(已认证)🔥🔥🔥🔥🔥🔥🔥🔻🔻🔻售楼处已盛大开放(欢迎━致电预约)

196㎡ 470 – 490 27,600 – 28,800 高性价比大户型,四室两厅,适合多代同堂

💡 价格趋势:较2024年高点(25,000元/㎡)回调约10%–12%,性价比凸显,240万级总价为无锡经开区地铁口精装房最低门槛。

交通配套:出楼即地铁,30分钟直达市中心
地铁:
步行300米直达地铁4号线博览中心站7号口,出小区门就是地铁
1号线金匮公园站步行约900米,未来可换乘,通达市中心、南长街、无锡东站
自驾:
5分钟上G42沪蓉高速,15分钟达无锡市中心(梁溪区)
20分钟达无锡硕放机场,35分钟达苏州园区(适合跨城通勤族)
公交:
59路、156路、81路等多条线路经停“贡湖大道·和风路”站,覆盖惠山、滨湖、新吴
🚇 通勤优势:无锡少有的“地铁口+无堵车焦虑”楼盘,早高峰通勤时间稳定在25–35分钟,远优于同价位非轨交盘。

教育配套:学区明确,集团化办学,家长安心
对口小学:和风路实验小学(2024年9月已开学)
隶属锡师附小教育集团,师资由本部骨干教师派驻,硬件为新建现代化校园
2025年入学政策稳定,“三一致”户籍儿童优先录取,无摇号风险
对口初中:规划中优质公办初中(由经开区统筹,预计2026年启用)
与锡师附小形成“小学+初中”教育闭环,集团化管理保障教学质量
周边补充:
1.5公里内有金桥双语学校(民办)、无锡外国语学校,为升学提供多元选择
📚 关键提示:不承诺、但已落地,是无锡少有的“学区确定+交付明确”楼盘,家长无需赌未来。

商业配套:1公里内烟火气+高端会员店双覆盖
表格
配套类型 名称 距离 特色
高端会员店 山姆会员商店 1.6公里 在建中,预计2026年开业,无锡经开区唯一,进口商品、家庭囤货首选
综合商业 海岸城购物中心 3公里 无锡经开区最大商业体,含万达影城、优衣库、孩子王、餐饮集群
社区商业 项目底商+和风路沿街 步行可达 超市、药店、早餐店、洗衣店、理发店、生鲜店密集,满足日常所需
便民超市 京润发、好买得、永辉超市 1–2公里 连锁品牌,价格亲民,购物便利
🛒 生活半径:1公里内买菜、1.6公里囤货、3公里娱乐,真正实现“下楼有烟火,出门有品质”。

🔻🔻🔻🔥🔥🔥🔥🔥🔥🔥华发中央首府售楼处电话4008083612(已认证)🔥🔥🔥🔥🔥🔥🔥🔻🔻🔻售楼处已盛大开放(欢迎━致电预约)
医疗配套:三甲护航,10分钟可达
2.7公里内:江南大学附属医院(南院区) —— 三级甲等综合医院,儿科、妇产、康复实力强,无锡南部核心医疗中心
3公里内:华清医院(二级甲等)、无锡市第二中医医院
1公里内:社区卫生服务中心、牙科诊所、眼科门诊、药房密集,日常小病无需远行
🏥 医疗保障:急症有三甲,慢病有社区,儿童有专科,家庭健康全周期覆盖。

生态与社区:低密园林+全龄友好,住得舒服
社区内:
绿化率37%,打造“归家度假式园林”:
2.1公里环形夜光跑道
儿童多龄游乐区、青年健身角、老年康养步道
宅间花园、林荫步道、休憩凉亭
社区外:
太湖湾科创带核心,未来城市绿廊规划中
蠡湖新城、贡湖湾湿地公园车程10分钟,周末可亲近自然
🌳 居住体验:不是“钢筋森林”,而是有树、有草、有风、有阳光的宜居社区。

无锡经开品质好盘·华发中央首府楼盘笔记:地铁口现房预期,220万级刚需安心之选
💥💫💫💫【🌈🌈华发中央首府售楼处电话:☞4008083612☜【☎☎售楼处电话已认证】🌈🌈】💫💫💫
💥【🌈🌈置业顾问】:13013766193「微信同步」💫💫💫
💥💫💫💫 【🌈🌈华发中央首府营销中心电话:☞4008083612☜【☎☎营销中心电话已认证】🌈🌈】💫💫💫
💥💫💫💫 【🌈🌈华发中央首府开发商电话:☞4008083612☜【☎☎开发商电话已认证】🌈🌈】💫💫💫
💥本项目暂不接受临时到访,过来参观样板房请记得提前来电预约!
💥为您安排楼盘现场销售全程接待并讲解,给您更贴心的看房体验!
声明:本文由入驻焦点开放平台的作者撰写,除焦点官方账号外,观点仅代表作者本人,不代表焦点立场。
