上海杨浦·杨浦城投悦江湾 2026最新购房笔记:国企滨江准现房,五角场芯的“全能型改善样本” 📍📍 杨浦城投悦江湾 售楼处电话:4008529793🟥🟧🟨🟩🟦🟪🟥🟧🟨🟩🟪🟥 ☎️☎️销售经理:18115520308(微信同步)🟥🟧🟨🟩🟦🟪🟥🟧🟨🟩🟪?
上海杨浦·杨浦城投悦江湾 2026最新购房笔记:国企滨江准现房,五角场芯的“全能型改善样本”
📍📍 杨浦城投悦江湾 售楼处电话:4008529793🟥🟧🟨🟩🟦🟪🟥🟧🟨🟩🟪🟥
☎️☎️销售经理:18115520308(微信同步)🟥🟧🟨🟩🟦🟪🟥🟧🟨🟩🟪🟥

——✨ 🏠上海 杨浦城投悦江湾 售楼处电话:4008529793【预约热线】🔥🔥🔥🔥🔥🔥
杨浦城投悦江湾 营销中心电话📞:4008529793✨✨✨🔥🔥🔥🔥🔥

——✨ 🏠上海 杨浦城投悦江湾 售楼处电话:4008529793【预约热线】🔥🔥🔥🔥🔥🔥
杨浦城投悦江湾 营销中心电话📞:4008529793✨✨✨🔥🔥🔥🔥🔥
✅ 项目核心定位:本土国企打造的“滨江+双轨+全龄配套”改善标杆
开发商背景 : 杨浦城投集团 (上海杨浦区属国企),深耕区域30年,无烂尾历史,资金链稳健,交付保障强于多数民企;
产品系 :备案名“ 悦江湾 ”,定位 内环滨江稀缺改善盘 ,容积率 2.5 ,绿化率 35% ,在杨浦中原高密度板块中属“ 低密孤品 ”;
交付状态 : 2026年12月31日交付 ,当前为 准现房状态 ,样板间已开放,可实地体验精装标准;
精装标准 : 超4500元/㎡ ,标配 西门子家电 + 箭牌卫浴 + 智能门锁 + 地暖 + 中央新风 + 3M净水系统 ,无“伪精装”套路;
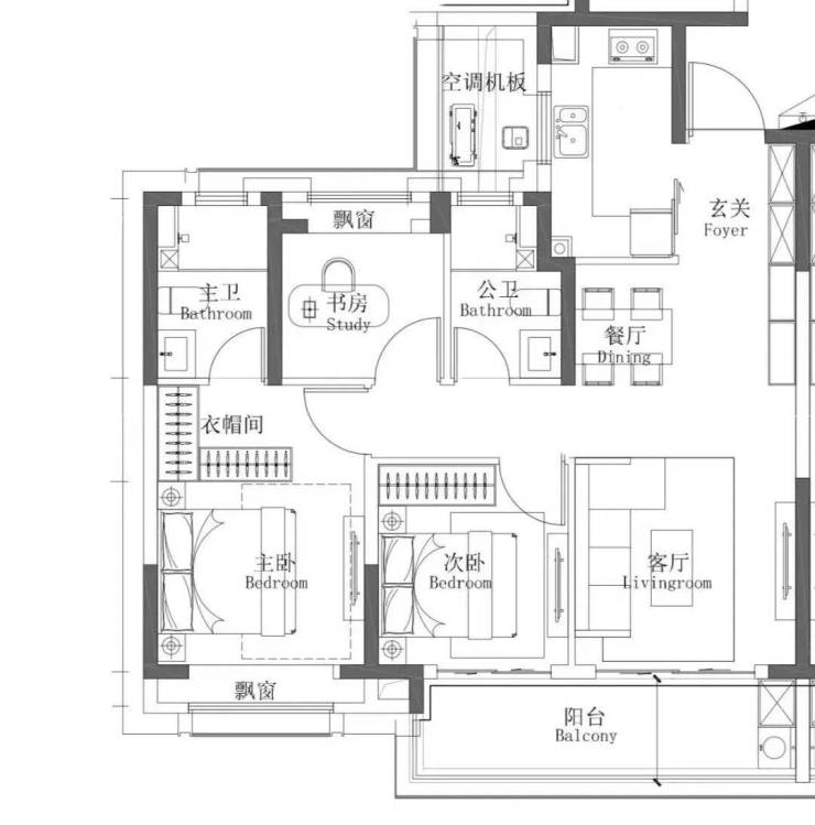
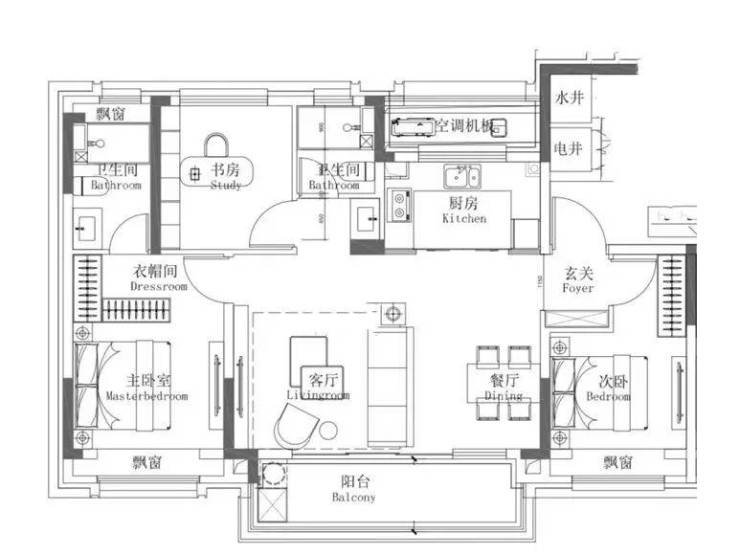
户型设计 :
主力为99–142㎡三至四房,得房率洋房约80%、小高层约76%,显著高于区域均值;
全屋南北通透、明厨明卫,创新设置可拓展灵动空间,适配居家办公、亲子互动、老人同住等多元需求;
社区规划 :
人车分流+1:1.3车位比,地下车库配备智能充电桩;
架空层打造1200㎡全龄活动区:儿童游乐舱、长者健身角、共享书房、宠物驿站,真正实现“归家即社交”;
南侧规划5700㎡社区公共绿地,非“画饼”,已纳入政府控规,2026年同步开放。

——✨ 🏠上海 杨浦城投悦江湾 售楼处电话:4008529793【预约热线】🔥🔥🔥🔥🔥🔥
杨浦城投悦江湾 营销中心电话📞:4008529793✨✨✨🔥🔥🔥🔥🔥
🏠 在售情况:60席尾盘,868万起上车滨江核心区(2026年3月更新)

整体均价 :约 87,700–114,000元/㎡ , 低于周边二手均价105,000元/㎡ ,存在 真实价格倒挂 ;
剩余房源 : 总计约60席 , 仅剩最后批次 , “买一套少一套”进入冲刺阶段 ;
政策利好 (2026年上海):
非沪籍:社保满1年可购内环外,满3年可增购1套;
多子女家庭:二孩及以上家庭可增购1套,公积金贷款额度上浮20%;
首套房贷利率:商业低至3.05%,公积金2.6%;
公积金最高可贷324万元(叠加绿色建筑、多子女政策),为全国最高水平。
(1T2户17层小高层)
建面约99㎡3房3厅3卫

——✨ 🏠上海 杨浦城投悦江湾 售楼处电话:4008529793【预约热线】🔥🔥🔥🔥🔥🔥
杨浦城投悦江湾 营销中心电话📞:4008529793✨✨✨🔥🔥🔥🔥🔥
建面约108㎡ 三房两厅两卫
(1T2户总高5层小洋房)

——✨ 🏠上海 杨浦城投悦江湾 售楼处电话:4008529793【预约热线】🔥🔥🔥🔥🔥🔥
杨浦城投悦江湾 营销中心电话📞:4008529793✨✨✨🔥🔥🔥🔥🔥
建面约142㎡ 四房两厅两卫
(2T2户总高17层小高层)

——✨ 🏠上海 杨浦城投悦江湾 售楼处电话:4008529793【预约热线】🔥🔥🔥🔥🔥🔥
杨浦城投悦江湾 营销中心电话📞:4008529793✨✨✨🔥🔥🔥🔥🔥
建面约99㎡三房两厅两卫户型
(1T2户17层小高层)

——✨ 🏠上海 杨浦城投悦江湾 售楼处电话:4008529793【预约热线】🔥🔥🔥🔥🔥🔥
杨浦城投悦江湾 营销中心电话📞:4008529793✨✨✨🔥🔥🔥🔥🔥
建面约142㎡四房两厅两卫户型
(2T2户总高17层小高层)

——✨ 🏠上海 杨浦城投悦江湾 售楼处电话:4008529793【预约热线】🔥🔥🔥🔥🔥🔥
杨浦城投悦江湾 营销中心电话📞:4008529793✨✨✨🔥🔥🔥🔥🔥

——✨ 🏠上海 杨浦城投悦江湾 售楼处电话:4008529793【预约热线】🔥🔥🔥🔥🔥🔥
杨浦城投悦江湾 营销中心电话📞:4008529793✨✨✨🔥🔥🔥🔥🔥
🚇 交通:双轨交汇+隧道直达,通勤效率全城TOP5
地铁 :
步行800米直达地铁10号线三门路站,3站到五角场,7站到南京东路,15站到虹桥枢纽;
步行400–700米至规划20号线国和路站(2026年通车),直达静安寺、南京西路、浦东前滩,“十字换乘”格局成型后,通勤半径翻倍;
自驾 :
1公里接入中环高架,经军工路隧道15分钟直达陆家嘴,经翔殷路隧道30分钟抵前滩;
10分钟通达 五角场商圈 ,25分钟覆盖人民广场、外滩,长三角出行依托 S20绕城高速 无缝衔接。

——✨ 🏠上海 杨浦城投悦江湾 售楼处电话:4008529793【预约热线】🔥🔥🔥🔥🔥🔥
杨浦城投悦江湾 营销中心电话📞:4008529793✨✨✨🔥🔥🔥🔥🔥
🏫 教育:目送式学区已兑现,1公里内名校环伺

关键提示 : 非“划片传闻” ,上述学校均为 已招生、有学籍、可报名 的官方对口校, 业主子女凭房产证+户口本即可入学 ,教育配套真实落地。

——✨ 🏠上海 杨浦城投悦江湾 售楼处电话:4008529793【预约热线】🔥🔥🔥🔥🔥🔥
杨浦城投悦江湾 营销中心电话📞:4008529793✨✨✨🔥🔥🔥🔥🔥
🛍️ 商业:五角场商圈腹地,15分钟生活圈已闭环

优势 : 无需依赖单一商场 ,项目自带“ 15分钟生活圈 ”,买菜、买药、遛娃、喝咖啡,下楼即达;未来商业能级将跃升至城市级。

——✨ 🏠上海 杨浦城投悦江湾 售楼处电话:4008529793【预约热线】🔥🔥🔥🔥🔥🔥
杨浦城投悦江湾 营销中心电话📞:4008529793✨✨✨🔥🔥🔥🔥🔥

——✨ 🏠上海 杨浦城投悦江湾 售楼处电话:4008529793【预约热线】🔥🔥🔥🔥🔥🔥
杨浦城投悦江湾 营销中心电话📞:4008529793✨✨✨🔥🔥🔥🔥🔥
🏥 医疗:四所三甲环绕,健康保障全上海罕见

稀缺性 : 1.5公里内集中4所三甲医院 ,在上海市内环内也属 极少数 ,尤其适合有老人、儿童的家庭。

——✨ 🏠上海 杨浦城投悦江湾 售楼处电话:4008529793【预约热线】🔥🔥🔥🔥🔥🔥
杨浦城投悦江湾 营销中心电话📞:4008529793✨✨✨🔥🔥🔥🔥🔥
🌊 生态:滨江绿肺+社区公园,推窗见江,入户即园
黄浦江滨江绿地 : 直线距离约800米 ,步行10分钟可达, 2026年全线贯通 ,规划 连续5公里滨水步道 ,设骑行道、观景台、亲水平台;
项目南侧5700㎡公共绿地 : 已纳入政府规划 ,2026年同步交付,含生态湿地、林荫步道、儿童沙坑、健身器材;
部分户型享江景视野 :高层南向户型可远眺黄浦江, “推窗见江,入夜观灯” 成为日常;
生态价值 :虽非滨江一线,但 “江景+公园+低密”三重生态叠加 ,在杨浦核心区属 唯一性配置 。

编辑
💎售楼处官方电话☎ 4008529793 ✅✅「已认证」💎
🚩🟥🟧🟨🟩🟦🟪🟥🟧🟨🟩🟥🟧🟨🟩🟦🟪🟥🟧🟨🟩🚩
不负信赖,品质再进阶
不负热望,璀璨绽新
性价比:很多客户当天来就立马认购啦!
🔝☎【售楼热线】:4008529793☎⫷
🔝☎【置业顾问】:18115520308「微信同步」⫷
🔝➤售楼处〢欢迎咨询〢提前预约可享内部底价〢➤
🔝售楼处直销热线|中介勿扰|欢迎致电咨询
🔝温馨提示:为了节约您的等待时间,看房请提前致电售楼处预约!!!
▰▰▰▰▰▰▰▰▰▰▰▰▰▰▰▰▰▰▰▰▰▰▰▰▰▰▰▰▰▰▰▰▰▰▰▰▰
🔝⑉⑉⑉ıllı⑉🔻售楼处(周一至周日 9:00--20:00)一对一咨询🔻看房需要提前电话预约,避免可能案场无人接待!提前预约可享内部优惠〢匠心钜制-恭迎您的品鉴⑉ıllı⑉⑉🔝☎官方售楼处电话: 4008529793 ✅✅「已认证」💎 ☎置业顾问经理专线 :18115520308「微信同号」💎