2025 聚焦钱塘区天阳湖与舍:楼盘详情、房价户型、容积率及小区环境
扫描到手机,新闻随时看
扫一扫,用手机看文章
更加方便分享给朋友
杭州钱塘区河庄天阳湖与舍
面积:100-105-128方
单价:21000
总价:200万起(精装修)
☎️VIPline:4009983632【售楼热线】☎️
☎️置业热线:17132883311(同微信)☎️
➤售楼处〢欢迎咨询〢提前预约可享内部优惠〢➤

天阳湖与舍
杭州·钱塘区
[开发商]杭州天涛置业有限公司
[区域板块]杭州·钱塘区·政务核心区
[建筑面积]约12万m²
70年产权住宅,多面铝板➕大面玻璃,多重园区体验,全首层架空,植入多主题泛会所
[楼盘类型]住宅
[楼层状况]高层12-17F
户型:建面约 100m²、105m²、128㎡
[总户数]768户
[装修情况]精装
[容积率] 约1.8
[绿化] 约35%
[物业]天阳物业
☎️VIPline:4009983632【售楼热线】☎️

实际上,这是天阳·湖与舍 『湖岸生活馆』内部一个有着品位格调的咖啡吧,
这也标志着天阳·湖与舍项目正式开始接待客户前来参观。

现场如此热闹非凡,显然是在近期各地调控政策频频放开的大环境下,大部分对于居住品质要求高又迟迟没有下手的购房者终于闻风而动了。 天阳·湖与舍的出现,给了这些『挑剔』的客户一个优选项。
湖与舍天资卓著,位处大江东核心,区政府旁,自带改善气质:距离 7号线地铁口不到百米,一站就到龙湖天街,也可直达吴山广场,还可方便换乘8号线和19号线, 容积率只有1.8。地段和自然景观资源双优,直面东沙湖。
☎️VIPline:4009983632【售楼热线】☎️


杭州萧山天阳•湖与舍

杭州萧山天阳•湖与舍
当然,只有这些远远不够,产品配置也必须够硬核。
所以,我们看到了作为本土房企天阳地产的诚意,它带来了跟豪宅天阳·武林邸一样昂贵的 四面大面铝板,带来了 全架空层,还有源自于曼谷四季酒店为设计灵感的景观,更有 精装带地暖……从没想到, 限价22240元/㎡,可以拥有如此多的超预期配置。
首先值得一提的是湖与舍的建筑立面设计,建筑设计师携 高技派建筑理念到东沙湖, 以铝板和玻璃材质为主,采用竖向线条来构筑立面,不仅提高户与户之间的隐私性,更使建筑群赫然突出,呼应东沙湖的优美水景。
☎️VIPline:4009983632【售楼热线】☎️

杭州萧山天阳•湖与舍
从鸟瞰图上可以发现湖与舍东侧也有一条水系汇入东沙湖,让地块仿佛就像一个浮岛。

杭州萧山天阳•湖与舍
正是因为得天独厚的水系自然资源,所以在湖与舍的内部景观设计方面,通过在社区人行入口、中轴景观处、核心节点区域,都设计了多重水景。设计师更通过多种植物与树种的运用,打造出丰沛的园林体验。这种内与外的呼应,就像是把一


区别于有些小区“架空层完全被架空”,在湖与舍,我们惊喜地看到一个与业主实际居住需求相匹配的架空层。
可以承载多种生活场景的 六个主题空间, 创新工场、学习胶囊、第二客厅、迷你聚场、童梦星球和活力氧吧,未来这里将成为小区的一个个“社交岛屿”。

杭州萧山天阳•湖与舍
年轻人下班后可以在此运动健身,老年人可以在舒适的环境里休闲养生,还可以在架空层里为孩子举办小型生日会。更贴心地为在家要临时处理工作的业主,精心打造了一个灵活空间,这样既不打扰家人,也能更高效的处理工作。
所有的建筑、景观、架空层都服务于人的需求,湖与舍让这些空间仿佛是一个个神奇的抽屉,打开的是让人向往的烟火生活。
买房子首选地铁盘,再看其它外部配套、建筑颜值、社区功能空间这些重要因素,而最终决定生活质量的还是户型。
在这方面,天阳可谓是“行家里手”。在杭州,如果说哪家公司的户型做得好,绕不开的必然是天阳。作为业内公认的“户型专家”,天阳在户型设计上的突破与升级,总能给居住者带来新的惊喜。有兴趣的可以点击《首入钱塘区——本土房企天阳地产带来全新产品 》了解。
售楼热线:400-998-3632(预约专线)

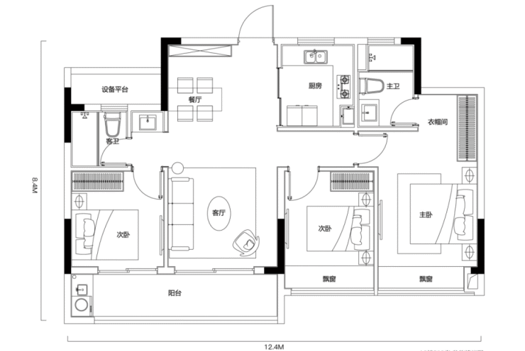
天阳·湖与舍共计打造了建面约100㎡、105㎡、128㎡三个面积段户型,起步约100方,也体现了本项目自带改善特质的特征。明星户型建面 约100㎡户型:面宽超12米,四开间朝南,客厅和三个卧室都朝南,客卧双联阳台、双飘窗,采光相当优越,同面积段少有户型可以做到这样的尺度与格局。
如果有边套情节,也可以选择 建面约105㎡,约270度采光通透有加,各功能空间分配合理,大飘窗。

而改善家庭则建议直冲 建面约128㎡大四房户型。餐客厅一体化设计,南向双开间大阳台,更配备一个储藏室,不管二胎家庭还是三代同堂,都能找到属于自己的空间组合。

天阳·湖与舍建面约128方户型图

杭州钱塘区河庄天阳湖与舍
☎️VIPline:4009983632【售楼热线】☎️
☎️置业热线:17132883311(同微信)☎️
➤售楼处〢欢迎咨询〢提前预约可享内部优惠〢➤
声明:本文由入驻焦点开放平台的作者撰写,除焦点官方账号外,观点仅代表作者本人,不代表焦点立场。
