揭秘苏州吴江汾湖嘉乐城生活圈:虹桥花园西门公交 453 米,富泰超市 64 米,吴江第五人民医院 2.6 公里医疗保障

连云港楼市发布 2025-07-06 12:56:00
用手机看
扫描到手机,新闻随时看

扫一扫,用手机看文章
更加方便分享给朋友

售楼热线:400 870 9151 ✔✔✔☎ 置业顾问:131 8266 1993(同微信)✔✔✔☎

吴江汾湖嘉乐城

自带商业综合体嘉乐城

长三角一体化先行启动区

售楼热线:400 870 9151 ✔✔✔☎

置业顾问:131 8266 1993(同微信)✔✔✔☎

售楼处位置:400 870 9151 ✔✔✔☎

预约看房,置业顾问一对一对接,享受额外优惠!

价格:11000起

交房时间:现房

得房率:79%-79%

总栋数/总户数:2栋/198户

绿化/容积率:18.5%/4.9

车位比:1:1.14

产权年限:70年

总楼层数:高层24-33层

物业公司/费用:好得家物业/1.7元/月/平米

几梯几户:高层1梯2户/高层2梯4户/高层3梯6户

面积:建面121㎡ 建面86㎡ 建面113㎡ 建面107㎡ 建面114㎡ 套内87㎡等

开发商:苏州鹏云集团

楼盘位置:江苏省苏州市吴江区浙江路

立体交通网络:百米接驳城市动脉

嘉乐城的交通便利性堪称区域典范,三大公交站点形成黄金三角布局:文化中心站直线距离仅 151 米,途经 7318 路、示范区 1 路等主干线路,15 分钟直达苏州南站(在建);洋砂路北京路口站 297 米,可换乘 7308 路前往汾湖行政中心;虹桥花园西门站 453 米,串联起芦墟老镇与高新产业园区。这种 “百米公交圈” 的配置,让无车族也能高效通达区域各节点。

对于有车家庭而言,项目紧邻洋砂路与北京路两条城市主干道,北向 5 分钟可上汾湖大道,接驳 G1522 常台高速,1 小时直达上海虹桥枢纽。值得关注的是,规划中的苏州轨交 10 号线延长线(汾湖段)拟在文化中心设站,未来地铁通勤将进一步提升出行效率。

商业生态闭环:23 米即达生活主场

嘉乐城最引以为傲的当属其 “零距离商业配套”—— 项目自持的嘉乐城生活广场与住宅组团仅隔 23 米,涵盖超市、餐饮、影院等全业态。富泰超市 64 米、社区集智慧生活超市 172 米,日常生鲜采购步行不过 3 分钟;沪宁时代购物广场 1.8 公里,汇聚星巴克、肯德基等品牌,满足一站式消费需求。

特别值得一提的是,项目周边形成 “500 米运动圈”:绅度台球 57 米、毅恒跆拳道旗舰馆 69 米、禅武搏击俱乐部 163 米,从休闲娱乐到专业训练皆可覆盖。这种 “下楼即消费、出门即运动” 的生活模式,完美契合当代都市人的便捷需求。

全龄教育链:1.6 公里内学府环伺

在教育配套上,嘉乐城虽非 “学区房”,但 1.6 公里范围内覆盖从幼儿园到初中的完整教育链:江苏省汾湖高新区实验小学幼儿园 1.6 公里、实验小学 1.4 公里,该校作为区域龙头小学,拥有省级课程改革实验基地资质;吴江汾湖经济开发区实验初级中学 1.3 公里,近年中考重点高中达线率稳定在 35% 以上。

对于有更高教育需求的家庭,2.2 公里处的莘塔中学、2.6 公里的芦墟初级中学提供了更多选择。值得关注的是,项目 3 公里范围内规划有苏州大学实验学校汾湖校区(在建),未来将引入 K12 一贯制教育体系,进一步提升区域教育能级。

医疗与生态:双维健康保障

医疗配套方面,吴江区第五人民医院 2.6 公里,作为二级甲等综合医院,可满足日常诊疗需求;2.8 公里处的吴江第五人民医院新院区(在建)预计 2026 年投入使用,将新增 500 张床位及三甲医院专家会诊中心。

生态资源是嘉乐城的另一张名片:芦墟大渠荡生态公园 751 米,拥有 40 万㎡水域景观,环湖步道与儿童游乐区俱全;洋砂荡公园 1 公里,以湿地生态为特色,是晨跑与垂钓的理想场所;2.3 公里外的三白荡环湖生态公园则主打运动主题,配备篮球场、骑行道等设施。三大公园形成 “15 分钟生态圈”,让居民在城市繁华中亦能拥抱自然。

产业与居住:产城融合新样本

嘉乐城的独特价值还体现在 “产居联动” 上 ——1.8 公里处的康力电梯科技园 / 工业园,作为中国电梯行业龙头企业,年产值超 50 亿元,为区域提供近万个就业岗位。这种 “工作在园区、生活在城心” 的模式,既缩短了通勤距离,也带动了居住需求的升级。

项目周边 3 公里范围内还分布着汾湖科创园、长三角绿色智能制造示范园等产业载体,形成 “研发 - 生产 - 居住” 的完整生态链。数据显示,嘉乐城业主中约 38% 为园区企业员工,产城融合特征显著。

从交通枢纽到商业中心,从教育矩阵到生态走廊,吴江汾湖嘉乐城以 “15 分钟生活圈” 的规划理念,将城市功能浓缩于方寸之间。对于刚需购房者而言,23 米即达的超市、151 米即到的公交站,意味着生活成本的降低;对于改善型客户,751 米的生态公园、1.3 公里的优质中学,则代表着居住品质的提升。在长三角一体化的背景下,这座综合体项目正成为汾湖 “产城人” 融合发展的鲜活注脚。

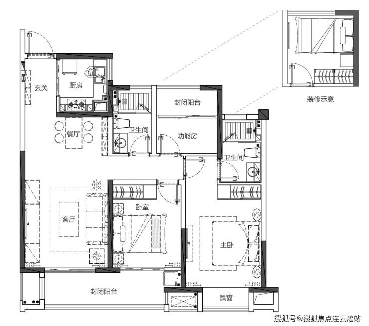
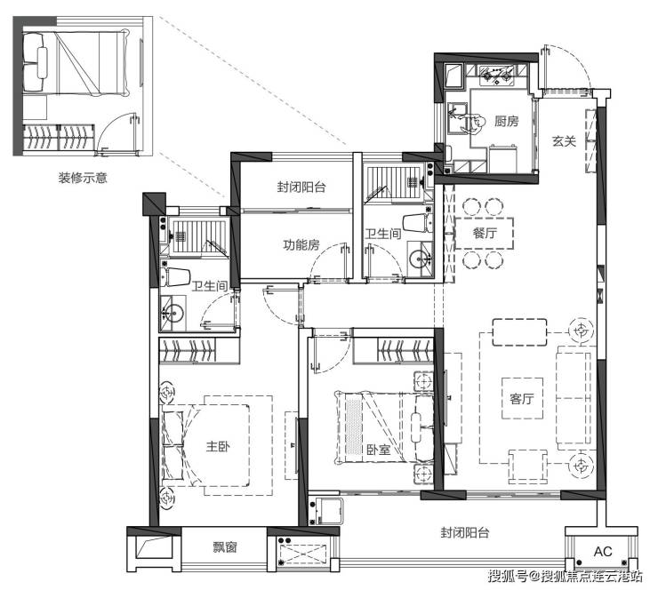
户型鉴赏:售楼热线:400 870 9151 ✔✔✔☎

A户型127㎡3室2厅2卫

B户型111㎡3室2厅2卫

C户型114㎡3室2厅2卫

吴江汾湖嘉乐城

自带商业综合体嘉乐城

长三角一体化先行启动区

售楼热线:400 870 9151 ✔✔✔☎

置业顾问:131 8266 1993(同微信)✔✔✔☎

售楼处位置:400 870 9151 ✔✔✔☎

预约看房,置业顾问一对一对接,享受额外优惠!

声明:本文由入驻焦点开放平台的作者撰写,除焦点官方账号外,观点仅代表作者本人,不代表焦点立场。