雁云庭营销中心电话开发商:斜港置业、吴城置业与甪直房地产开发公司联合开发位置:吴中区甪直镇鸣市路南侧、经三路东侧(东临湖东未来小区,南靠河流)规模:占地3.77万㎡,总建面10.25万㎡,容积率1.8,总户数…
吴中甪直雁云庭项目详解(2025年11月版)
售楼处电话:
4008083612✔✔
雁云庭营销中心电话
4008083612 ✔✔
雁云庭售楼处地址详情
4008083612✔✔【营销中心】
雁云庭销售总监:
13013766193【微信同步】
吴中甪直雁云庭售楼处热线
☎:4008083612(预约看房热线√√)
雁云庭售楼处电话/定位☎:400-808-3612【售楼中心已认√√】
一、项目核心标签
开发商:斜港置业、吴城置业与甪直房地产开发公司联合开发
位置:吴中区甪直镇鸣市路南侧、经三路东侧(东临湖东未来小区,南靠河流)
规模:占地3.77万㎡,总建面10.25万㎡,容积率1.8,总户数≤570户
产品规划:
叠墅:8栋4F上下叠,下叠附赠独立院子,上叠带星空阁楼与露台
高层:5栋24-25F四代住宅,奇偶错层设计,奇数层南向、偶数层北向设空中庭院
价格区间:周边新房高层均价2.2万+/㎡,叠墅2.8-3万/㎡,项目售价待定
交付时间:预计2026年(需核实)
物业:未公开(可能由甪直物业管理公司服务)

雁云庭售楼处地址详情
4008083612✔✔【营销中心】
二、产品差异化解析
维度叠墅四代高层定位低密改善创新科技住宅设计亮点独立院子/星空露台垂直绿化+空中庭院核心卖点私密墅级生活立体森林居住体验

雁云庭售楼处地址详情
4008083612✔✔【营销中心】
三、交付标准与配置
精装标准:≥2000元/㎡
高层:客餐厅一体化,4房2厅3卫,双套房设计
叠墅:下叠含挑空客厅,上叠设家政间与客卫
公区配套:规划1座邻里中心、2条商业水街,现有南山维乐城

雁云庭售楼处地址详情
4008083612✔✔【营销中心】
雁云庭销售总监:
13013766193【微信同步】
四、市场反馈与稀缺性
板块首例:甪直首个四代住宅,叠墅+高层组合填补区域高端市场空白
设计创新:空中庭院与垂直绿化提升产品竞争力,预计售价或突破区域天花板

雁云庭售楼处地址详情
4008083612✔✔【营销中心】
雁云庭销售总监:
13013766193【微信同步】
五、配套资源图谱
交通:依赖自驾,北接甪直大道(连通金鸡湖大道),南靠东方大道(通往独墅湖高教区)
教育:北侧星泽实验学校(星海教育集团)已投用,周边还有甪直实验小学等
商业:规划1座邻里中心、2条商业水街,现有南山维乐城等成熟配套

雁云庭售楼处地址详情
4008083612✔✔【营销中心】
雁云庭销售总监:
13013766193【微信同步】

雁云庭售楼处地址详情
4008083612✔✔【营销中心】
雁云庭销售总监:
13013766193【微信同步】
六、产品力深度解析
叠墅:
下叠附赠独立院子及挑空客厅,上叠带星空阁楼与露台
纯正低密产品,兼顾私密性与庭院生活
四代高层:
奇偶错层设计,奇数层南向、偶数层北向设空中庭院
客餐厅一体化,4房2厅3卫,双套房设计
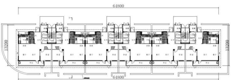
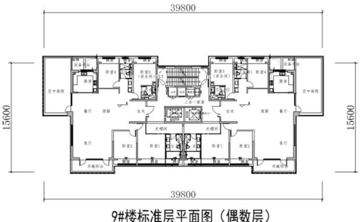
规划户型出炉
雁云庭此前公示了4#、9#的户型标准层示意图。

4#,4F叠墅

雁云庭售楼处地址详情
4008083612✔✔【营销中心】
雁云庭销售总监:
13013766193【微信同步】

雁云庭售楼处地址详情
4008083612✔✔【营销中心】
雁云庭销售总监:
13013766193【微信同步】


雁云庭售楼处地址详情
4008083612✔✔【营销中心】
雁云庭销售总监:
13013766193【微信同步】

9#,25F高层,2梯2户

雁云庭售楼处地址详情
4008083612✔✔【营销中心】
雁云庭销售总监:
13013766193【微信同步】

4房2厅3卫
奇数层

4房2厅3卫
偶数层

吴中甪直雁云庭
售楼处电话:
4008083612✔✔
雁云庭营销中心电话
4008083612 ✔✔
雁云庭售楼处地址详情
4008083612✔✔【营销中心】
雁云庭销售总监:
13013766193【微信同步】
吴中甪直雁云庭售楼处热线
☎:4008083612(预约看房热线√√)
雁云庭售楼处电话/定位☎:400-808-3612【售楼中心已认√√】
雁云庭➨售楼处电话:4008083612√√【电话预约☎】售楼处营销中心:4008083612(开发商热线)售楼中心电话/地址☎:4008083612【售楼处已认证√√√】★来电可了解楼盘最新动态,项目全面介绍(包含最新发布:在线预约看房丨在售房价优惠丨户型面积房源丨交房时间丨商业配套丨教育资源丨小高层洋房丨独栋别墅丨联排合院丨商业别墅丨得房率丨容积率丨小区环境丨优缺点分析丨楼盘测评丨在售户型图样板间丨项目介绍丨最新房源丨周边配套丨详细解答丨一对一热情讲解〢区域板块等信息!★郑重承诺:由开发商旗下销售团队全程营销策划,房源信息真实有效!如果您想了解更多楼盘详情,欢迎提前预约拨打售楼处电话4008083612√√√(已认证)