2025 深度探秘临平区天都城天河苑楼盘,全方位解析房价、户型、小区环境等要点,涵盖房型、户型图及交通地铁等楼盘详情
扫描到手机,新闻随时看
扫一扫,用手机看文章
更加方便分享给朋友
杭州临平天都城天河苑
项目相关信息如下:- **面积**:25至90平方米。- **单价**:每平方米2.2万元。- **总价**:毛坯房54万元起。若您有购房意向,可通过以下方式联系我们:☎️ VIP热线:4009983632 【售楼热线】☎️ 置业热线:17132883311(同微信)➤售楼处热忱欢迎您前来咨询。温馨提示,提前预约能够享受内部优惠哦!


**项目资料**:**区域板块**:项目地处天都城板块,临近地铁3号线天都城站。**产品类别**:涵盖精装平层住宅以及复式住宅。**交付标准**:以毛坯形式交付。**面积区间及户型**:面积范围为25 - 90平方米,具体户型如下: - 25方a户型:为1室1厅1卫的布局。 - 28方b户型:同样是1室1厅1卫的设计。 - 32方c户型:依旧是1室1厅1卫的格局。 - 45方d户型:拥有2室1厅1卫的空间规划。 - 55方e户型:采用2室2厅1卫的架构。 - 79方f户型:配备3室2厅2卫的宽敞格局。**体量**:项目整体体量约200套左右。**均价**:每平方米均价约22000元 。 【项目亮点】位于杭州市内地铁口的住宅项目——广厦天都城,具备极高的吸引力。它既适合投资,也适合自住,且为现房,装修完毕即可入住。【项目地址】项目具体坐落于杭州市广厦天都城内。【价格区间】该项目总价范围为54万 - 140万,54万起即可拥有。【交付时间】现房状态,交付时间极为迅速,装修结束就能入住。【咨询热线】若您对该项目感兴趣,可拨打售楼热线:400 - 998 - 3632(预约专线) 进行详细咨询。

**项目配套**:【交通配套】:该项目交通十分便利,地铁 3 号线天都城站距离项目约 300 米,出行轻松便捷。不仅如此,项目临近高架与高速,为驾车出行提供了极大的便利,而且周边公交网络分布广泛,可满足不同人群的出行需求。【商圈配套】:广厦天都城作为超大社区,拥有自身完善的商业配套。同时,项目周边还有丁桥商圈以及星桥商圈环绕,丰富的商业资源能充分满足业主日常购物、休闲等多方面的生活需求。【学区配套】:在教育资源方面,项目周边有星桥第一小学和星桥中学,为孩子提供了良好的学习环境与教育条件。

户型鉴赏:

天河苑25㎡户型图
从样板间的窗户向外眺望,映入眼帘的是香榭路广场以及一排充满法式风情的建筑。
值得一提的是,天河苑均为6层小洋房设计,这使得视野几乎没有遮挡。当窗户打开,九月带着秋意的凉风便会缓缓吹来。
此外,天河苑还提供了诸多70 - 90㎡的刚需户型,以满足不同购房者的需求。

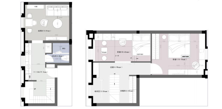
天河苑79㎡户型图

天河苑84㎡户型解析
在天河苑,众多户型中84㎡户型多采用LOFT设计。下面,我们就来详细看看该户型的具体布局:
首先是一层,这里设有一个一字型厨房,与餐厅紧密相邻。值得一提的是,南向位置规划了一间套房,空间十分宽敞,并且还配备了独立卫生间,既保证了居住的舒适度,又提供了充足的私密性。
再看二层,这里拥有较为充裕的公共空间,功能十分多样。业主既可以将其打造成充满韵味的茶室,在闲暇时光品茗聊天;也能够布置成静谧的书房,沉浸在知识的海洋。除此之外,二层同样配置了一间带有独立卫生间的套房,为居住者提供了更便利、舒适的居住体验。





杭州临平天都城天河苑
☎️ 贵宾专线:4009983632【售楼热线】☎️
☎️ 购房咨询热线:17132883311(与微信同号)☎️
➤ 售楼处竭诚欢迎您的咨询!提前预约,即可享受内部专属优惠哦 〢➤
声明:本文由入驻焦点开放平台的作者撰写,除焦点官方账号外,观点仅代表作者本人,不代表焦点立场。
