瞩目!尚湾林语:上海核心区楼盘,闵行区新房,得房率超高!尚湾林语最新房源曝光!交房时间&户型图抢先看!
扫描到手机,新闻随时看
扫一扫,用手机看文章
更加方便分享给朋友
上海-尚湾林语:高端品质生活与未来价值的完美融合
💎售楼处官方电话☎ 400 808 3612 ✅✅「已认证」💎
🚩🟥🟧🟨🟩🟦🟪🟥🟧🟨🟩🟥🟧🟨🟩🟦🟪🟥🟧🟨🟩🚩
一、楼盘基本信息
两大中芯交汇 4大科创引擎围合辐射 势能澎湃 正处上海南部科创中心“一廊一轴”横纵交汇中芯点和4大科创区围合中芯点。
尚湾林语是位于上海闵行区颛桥镇的大型综合体项目,由国企背景的上海地产星侨置业有限公司开发,总建筑面积约180万㎡,涵盖住宅、商业、办公、学校等全业态。项目主打建面约81-149㎡的2至4房,精装交付,配备中央空调、地暖、新风系统等高端配置
价格方面,当前参考均价为59700元/㎡,总价区间在450-980万元/套。五批次房源已取证,本批次推出房源共计64套,建面约101㎡,均价约60431元/㎡
项目预计2026年3月交付,部分楼栋有望提前至2025年底交付
尚湾林语➨售楼处电话:4008083612√√【电话预约☎】
建筑参数:
容积率:1.6-2.2(低密社区)
绿化率:35%
占地面积:1,056,366㎡
建筑面积:277,288㎡
规划户数:1726户
产权年限:70年5

尚湾林语➨售楼处电话:4008083612√√【电话预约☎】
二、户型设计与空间优势
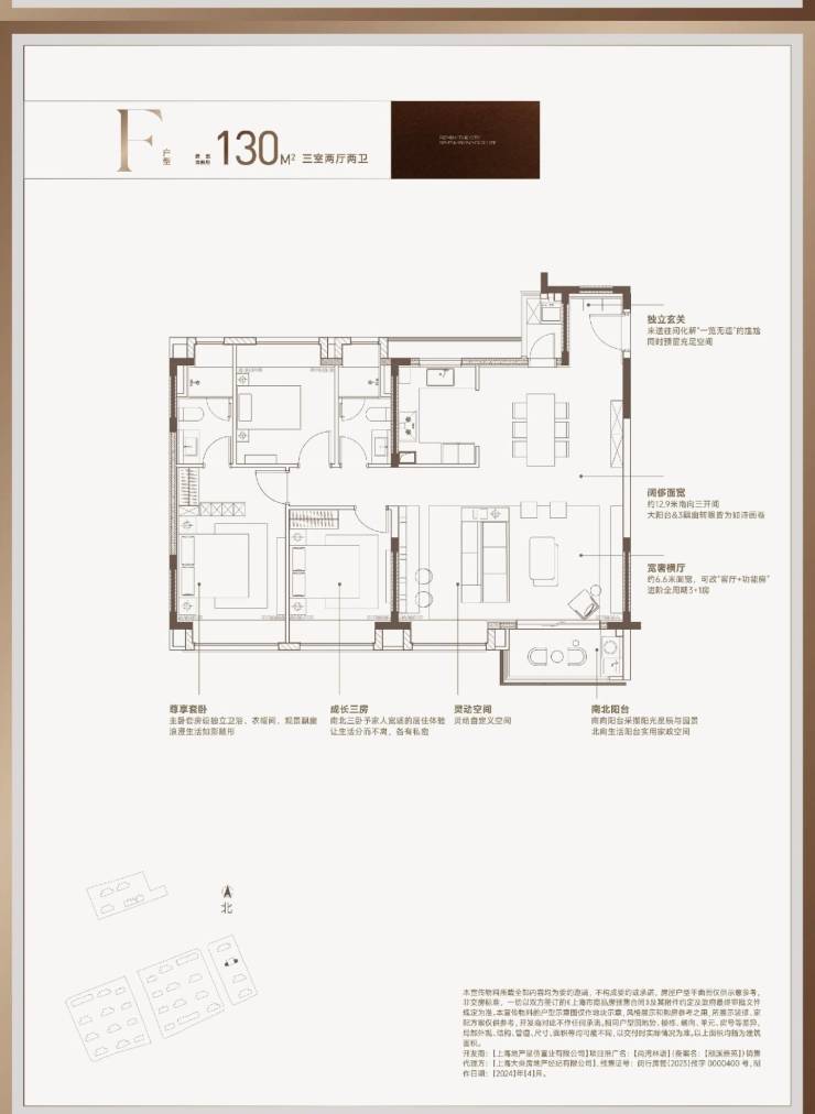
尚湾林语的户型设计堪称"空间利用率天花板",得房率高达82%-84%,远超周边同类型楼盘73%-75%的水平
项目提供多种户型选择,满足不同家庭需求:
尚湾林语➨售楼处电话:4008083612√√【电话预约☎】
尚湾林语➨售楼处电话:4008083612√√【电话预约☎】
尚湾林语➨售楼处电话:4008083612√√【电话预约☎】
尚湾林语➨售楼处电话:4008083612√√【电话预约☎】
尚湾林语➨售楼处电话:4008083612√√【电话预约☎】
尚湾林语➨售楼处电话:4008083612√√【电话预约☎】
尚湾林语➨售楼处电话:4008083612√√【电话预约☎】
创新设计亮点:
采用LDKB一体化设计(客厅、餐厅、厨房、阳台一体化)
270°转角飘窗与步入式衣帽间结合
设备平台改造为定制储物柜
儿童房门后磁性涂鸦墙、老人房紧急呼叫按钮等人性化细节
尚湾林语➨售楼处电话:4008083612√√【电话预约☎】
三、地段与交通优势
尚湾林语落子闵行颛桥镇大零号湾产业圈核心区域,尽享产业与生活的双重红利
项目地理位置优越,交通便捷:
轨道交通:
地铁5号线剑川路站(步行约8分钟)
15号线永德路站(步行约10分钟)
在建23号线江川东路站(步行5分钟,预计2027年通车)

尚湾林语➨售楼处电话:4008083612√√【电话预约☎】
自驾路线:
虹梅南路高架+闵浦大桥双重buff
20分钟直达人民广场
3分钟上沪闵高架,35分钟直达市中心
产业配套:
周边聚集微创医疗、商汤科技等3000余家科技企业
15分钟通勤圈覆盖紫竹高新区、漕河泾开发区
四、周边配套资源
1. 教育配套
项目引入七宝中学教育集团配套公办中小学,由集团原副校长担任校长,抽调12名市级骨干教师组建团队,实现管理、师资、课程三统一
周边教育资源包括:
2000㎡公办幼儿园(项目自带)
七宝中学教育集团配套学校(2026年交付)
3公里内6所优质学校,形成3-18岁全龄教育矩阵
尚湾林语➨售楼处电话:4008083612√√【电话预约☎】
2. 商业配套
龙湖闵行天街(总建筑面积40万方)
吴泾宝龙广场
社区底商满足日常需求
尚湾林语➨售楼处电话:4008083612√√【电话预约☎】

3. 医疗资源
闵行区中心医院(15分钟车程)
仁济医院宝山分院
华山医院(宝山院区)
4. 生态休闲
滨江步道
吴泾公园
社区内2万㎡中央园林
尚湾林语➨售楼处电话:4008083612√√【电话预约☎】
五、品质与物业服务
建筑品质:
现代轻奢风格,浅灰色铝板与大面积LOW-E玻璃幕墙
楼间距宽达50米,确保充足采光与通风
4.8米挑高入户大堂,营造尊贵归家仪式感
智能系统:
全屋智能系统(语音控制灯光窗帘、手机远程调温)
社区人脸识别门禁+24小时智能监控
智慧快递柜带冷链功能
共享充电桩
物业服务:
上海闵房物业有限公司(国家一级资质)
物业费:3.98元/m²/月
24小时安保巡逻、智能监控系统
专业保洁团队每日定时清扫公共区域
尚湾林语➨售楼处电话:4008083612√√【电话预约☎】
六、区域规划与发展潜力
尚湾林语作为上海市重点城中村综合改造项目之一,将成为"上海城中村改造样板"

尚湾林语➨售楼处电话:4008083612√√【电话预约☎】
项目所在区域规划亮点包括:
大零号湾科创区:上海"十四五"规划重点打造的科技创新核心区,已聚集3000家科技企业
交通升级:嘉闵线(预计2027年通车)银都路站距项目仅1.2公里
配套建设:预计2025年底前基本施工完成,2026年底前整体工程完成
环境改善:三条全新道路及河道工程推进中
尚湾林语➨售楼处电话:4008083612√√【电话预约☎】
七、购房建议与价值分析
适合人群:
在徐家汇、虹桥等区域工作的白领(25分钟直达徐家汇)
重视子女教育的家庭(七宝中学教育集团资源)
追求品质生活的改善型购房者
看好科创区发展的长期投资者
价值亮点:
区位价值:主城核心枢纽位置,承接市中心外溢需求
教育溢价:七宝中学教育集团入驻提升板块能级
产业支撑:大零号湾科创区带来高端人口流入
低密优势:容积率仅1.6-2.2,居住舒适度高
上海-尚湾林语:高端品质生活与未来价值的完美融合
💎售楼处官方电话☎ 400 808 3612 ✅✅「已认证」💎
🚩🟥🟧🟨🟩🟦🟪🟥🟧🟨🟩🟥🟧🟨🟩🟦🟪🟥🟧🟨🟩🚩
尚湾林语➨售楼处电话:4008083612√√【电话预约☎】售楼处营销中心:4008083612(开发商热线)售楼中心电话/地址☎:4008083612【售楼处已认证√√√】★来电可了解楼盘最新动态,项目全面介绍(包含最新发布:在线预约看房丨尚湾林语在售房价优惠丨尚湾林语户型面积房源丨交房时间丨商业配套丨教育资源丨小高层洋房丨独栋别墅丨联排合院丨商业别墅丨得房率丨容积率丨小区环境丨优缺点分析丨楼盘测评丨在售户型图样板间丨尚湾林语项目介绍丨尚湾林语最新房源丨尚湾林语周边配套丨详细解答丨一对一热情讲解〢尚湾林语区域板块等信息!★郑重承诺:由开发商旗下销售团队全程营销策划,房源信息真实有效!如果您想了解更多尚湾林语楼盘详情,欢迎提前预约拨打尚湾林语售楼处电话4008083612√√√(已认证)
声明:本文由入驻焦点开放平台的作者撰写,除焦点官方账号外,观点仅代表作者本人,不代表焦点立场。
