吴中北辰观澜府官方售楼中心-苏州吴中北辰观澜府楼盘详情 (2026房价+户型图) 吴中北辰观澜府-楼盘鉴赏

连云港楼市发布 2025-10-29 12:32:00
用手机看
扫描到手机,新闻随时看

扫一扫,用手机看文章
更加方便分享给朋友

➨🚩🚩售楼处电话:400-870-9151√√售楼处营销中心:400-870-9151(开发商热线)

北辰观澜府

在售建面约88-108㎡瞰景高层

115-172㎡国风叠墅均为现房实景

北辰观澜府售楼热线:

4008709151 ✔✔✔☎

北辰观澜府置业顾问:

13182661993(同微信)✔✔✔☎

北辰观澜府售楼处位置:

4008709151 ✔✔✔☎

北辰观澜府预约看房,置业顾问一对一对接,享受额外优惠!

面积:建面88㎡ 建面108㎡ 建面90㎡ 建面120㎡

叠加:上叠115㎡下叠126㎡联排187㎡

价格:88万起叠加:22000

交付标准:毛坯规划户数:2244户

车位占比:1:1.2

容积率:1.6/绿化率:37%

层高:17层/小高层17-18层

物业旭辉-永升物业:2.59-2.83元/月/㎡

开发商:苏州北辰置业有限公司

楼盘地址:苏州市吴中区天境南路与伍相路交汇处

北辰观澜府售楼热线:

4008709151 ✔✔✔☎

核心信息

地址:吴中区香山街道香山实验小学北侧(主入口位于天镜南路与六号路交叉口)

在售户型:88-180㎡,主力为120-140㎡四室两厅,部分别墅户型达180-220㎡

价格:参考均价1.5万元/㎡,总价126万元/套起,二手房挂牌价约1.7万元/㎡

北辰观澜府售楼热线:

4008709151 ✔✔✔☎

配套

教育:香山实验小学、吴中香山中学等7所幼儿园及中小学

商业:欧德福超市(400米)、太湖中心MALL(12万方)

北辰观澜府售楼热线:

4008709151 ✔✔✔☎

项目亮点

现房销售:部分楼栋已交付,可即买即住

低密社区:容积率1.6,主打改善型居住环境

生态资源:毗邻太湖湿地公园、穹窿山景区等

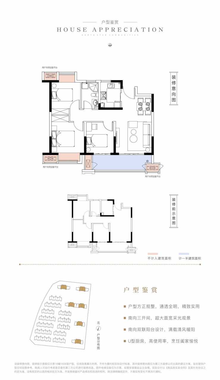
户型鉴赏:北辰观澜府售楼热线:

4008709151 ✔✔✔☎

88平3室2厅1卫

90平3室2厅1卫

110平3室2厅2卫

联排(中户)4室3厅3卫187m2

北辰观澜府

在售建面约88-108㎡瞰景高层

115-172㎡国风叠墅均为现房实景

北辰观澜府售楼热线:

4008709151 ✔✔✔☎

北辰观澜府置业顾问:

13182661993(同微信)✔✔✔☎

北辰观澜府售楼处位置:

4008709151 ✔✔✔☎

北辰观澜府预约看房,置业顾问一对一对接,享受额外优惠!

➨🚩🚩售楼处电话:400-870-9151√√售楼处营销中心:400-870-9151(开发商热线)售楼中心电话/地址☎:4008709151【售楼处已认证√√√】★来电可了解楼盘最新动态,项目全面介绍(包含最新发布:在线预约看房丨在售房价优惠丨户型面积房源丨交房时间丨交通地铁丨商业配套丨教育资源丨小高层洋房丨独栋别墅丨联排合院丨商业别墅丨得房率丨容积率丨小区环境丨优缺点分析丨楼盘测评丨在售户型图丨项目介绍丨最新房源丨周边配套丨详细解答丨一对一热情讲解〢区域板块等信息!★郑重承诺:由开发商旗下销售团队全程营销策划,房源信息真实有效!如果您想了解更多楼盘详情,欢迎提前预约拨打售楼处电话400 870 9151√√√(已认证)

声明:本文由入驻焦点开放平台的作者撰写,除焦点官方账号外,观点仅代表作者本人,不代表焦点立场。