吴江太湖新城新楼盘象屿太湖天誉售楼处热线—象屿太湖天誉项目资料|周边生活配套|楼盘详细情况
扫描到手机,新闻随时看
扫一扫,用手机看文章
更加方便分享给朋友
吴江太湖新城新楼盘象屿太湖天誉
售楼处电话:
400 998 3631✔✔
象屿太湖天誉营销中心电话
4009983631 ✔✔
象屿太湖天誉售楼处位置
400-998-3631✔✔
洋房户型
太湖天誉
售楼处电话:
400 998 3631✔✔
象屿太湖天誉营销中心电话
4009983631 ✔✔
叠墅户型
太湖天誉
售楼处电话:
400 998 3631✔✔
象屿太湖天誉营销中心电话
4009983631 ✔✔
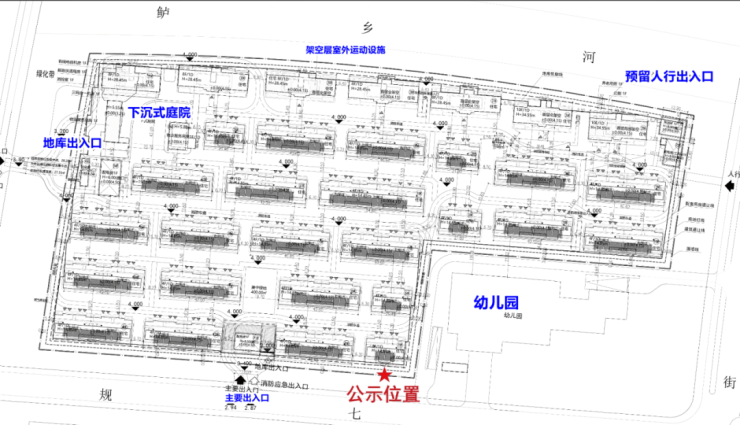
此前公示来看,项目共计打造了31栋住宅,其中5栋8F洋房,2栋10F洋房,24栋4F叠墅!
太湖天誉
售楼处电话:
400 998 3631✔✔
象屿太湖天誉营销中心电话
4009983631 ✔✔
平面图上来看,小区内部西侧设计了一个下沉式庭院,旁边就是物业用房和地块出入口,这里大概也会是未来的售楼处。主出入口在小区南面,北面预留了一个人行出入口。
在小区东南角,则设计了一所幼儿园。

太湖天誉
售楼处电话:
400 998 3631✔✔
象屿太湖天誉营销中心电话
4009983631 ✔✔
叠墅效果图上来看,外立面用的是灰色涂料、灰色铝板、金色铝板和玻璃栏杆!
太湖天誉
售楼处电话:
400 998 3631✔✔
象屿太湖天誉营销中心电话
4009983631 ✔✔
洋房外立面则是灰色涂料、灰色铝板、米白色仿石铝板和玻璃栏杆!
太湖天誉
售楼处电话:
400 998 3631✔✔
象屿太湖天誉营销中心电话
4009983631 ✔✔
另一个值得关注的是,项目的洋房从效果图上来看,也是做了错层设计,有大露台和空中花园,即,这也是个第四代住宅项目。
公示来看:
建设单位:苏州屿鑫房地产开发有限公司
项目名称:WJ-J-2024-010地块住宅项目
建设地点:吴江东太湖度假区(太湖新城)规七路北秋枫街西夏蓉街东
建设规模:总用地面积42014.12平方米,总建筑面积103676.27平方米,其中,地上建筑面积58158.58平方米,地下建筑面积45517.69平方米(以最终批准图纸为准)
用地性质:居住用地
最大建筑高度:34.55M
容积率:1.30
建筑密度:39.99%
绿地率:30.01%
公示期限:2025年1月14日至2025年1月23日
吴江城建&象屿10号地块,位于东太湖度假区(太湖新城)规七路北侧、夏蓉街东侧,住宅用地,出让面积42014.12平。地块成交总价94490万元,成交楼面价17300元/平,溢价率0%。
太湖天誉
售楼处电话:
400 998 3631✔✔
象屿太湖天誉营销中心电话
4009983631 ✔✔
地块周边来看,居住氛围也是比较浓厚的,且都是新建住宅。附近比较近的入市项目就是西北面的阅湖之星了,该项目备案均价在3.5W,未来地块价格可以参照!
吴江太湖新城新楼盘象屿太湖天誉
售楼处电话:
400 998 3631✔✔
象屿太湖天誉营销中心电话
4009983631 ✔✔
象屿太湖天誉售楼处位置
400-998-3631✔✔
象屿太湖天誉置业顾问:
131 6013 6853【营销中心】
吴江太湖新城新楼盘象屿太湖天誉售楼处热线
☎:400-998-3631(预约看房热线√√)
象屿太湖天誉售楼处电话/地址☎:400-998-3631【售楼中心已认√√】
➨����售楼处电话:400-998-3631√√【电话预约☎】售楼处营销中心:400-998-3631(开发商热线)售楼中心电话/地址☎:4009983631【售楼处已认证√√√】★来电可了解楼盘最新动态,项目全面介绍(包含最新发布:在线预约看房丨在售房价优惠丨户型面积房源丨交房时间丨交通地铁丨商业配套丨教育资源丨小高层洋房丨独栋别墅丨联排合院丨商业别墅丨得房率丨容积率丨小区环境丨优缺点分析丨楼盘测评丨在售户型图样板间丨项目介绍丨最新房源丨周边配套丨详细解答丨一对一热情讲解〢区域板块等信息!★郑重承诺:由开发商旗下销售团队全程营销策划,房源信息真实有效!如果您想了解更多楼盘详情,欢迎提前预约拨打售楼处电话400 998 3631√√√(已认证)
声明:本文由入驻焦点开放平台的作者撰写,除焦点官方账号外,观点仅代表作者本人,不代表焦点立场。
