太湖朗郡-苏州(太湖朗郡)首页网站-2025最新房价+户型图+小区环境+配套

连云港楼市发布 2025-10-03 19:00:00
用手机看
扫描到手机,新闻随时看

扫一扫,用手机看文章
更加方便分享给朋友

太湖朗郡所有户型都搭载的是朗诗三恒系统,该套系统从多维细节出发,打造出“恒温、恒氧、恒湿、低噪、适光”的经典科技住宅。太湖朗郡的这套科技系统搭载全置换式新风系统,内设加湿、除湿等模块,实现室内恒氧、恒湿。洋房…

【太湖朗郡】

✔✔✔☎太湖朗郡售楼热线:400 837 8831 ✔✔✔☎

✔✔✔☎太湖朗郡置业顾问:159 6256 4266(同微信)✔✔✔☎

✔✔✔☎太湖朗郡售楼处位置:400 837 8831 ✔✔✔☎

项目简介

项目地址:孙武路与后塘桥路交汇处

占地面积:7.9万m²

建筑面积:22.4万m²

容积率:2.0

绿化率:37%

规划户数:1371

车位配比:1:1.43

车位数: 1961

社区规划:17F小高层+10F洋房

交付标准:精装+朗诗科技住宅系统

产品面积:小高层95平、117平、139平,洋房117平、148平

教育方面,项目附近学校环伺,幼儿园、小学、中学全龄教育资源全覆盖。一河之隔便是度假区第三小学和度假区实验中学,都已经投入使用。

商业方面,板块内有多个商业体,目前板块内最大的商业综合体太湖中心Mall已经开业,这也是区域首家全业态购物中心,体量超过12万方。

医疗方面,距离项目1公里的距离便是度假区人民医院,每周会有苏大第一附属医院、吴中区人民医院等专家会诊,不出度假区,就能享受到同等优质医疗服务。

交通方面从项目出发,5分钟即可到达子胥快速路,距离4公里也就是绕城高速,太湖度假区板块内地铁已经开通,苏州轨道交通5号线

从项目出发,5分钟即可到达子胥快速路,距离4公里也就是绕城高速

其他板块配套,太湖度假区接轨木渎,位于狮山南,和两个板块距离都不算太远,可共享两区的核心配套。木渎拥有大运城、花样城、悠方、山姆等多个大型商业综合体,一站式购物需求全部解决。

太湖朗郡所有户型都搭载的是朗诗三恒系统,该套系统从多维细节出发,打造出“恒温、恒氧、恒湿、低噪、适光”的经典科技住宅。

恒温

相较于现在市面上大部分精装中的中央空调,太湖朗郡直接升级,运用地源热泵、顶棚辐射等科技系统,无风无噪,并将室内温度控制在约18-26℃。

恒氧、恒湿

太湖朗郡的这套科技系统搭载全置换式新风系统,内设加湿、除湿等模块,实现室内恒氧、恒湿。

新风系统采用下送上排的换气模式,风从地上的送风口、通过通风槽后排入排风口,实现24h新鲜空气循环。

户型鉴赏

95平A1户型(3-2-1) 👇👇

95平A2户型(3-2-1) 👇👇

95平A3户型(3-2-1) 👇👇

117平B1户型(3+1-2-2)👇👇

117平B2户型(3+1-2-2)👇👇

洋房117平C户型(4房2厅2卫)👇👇

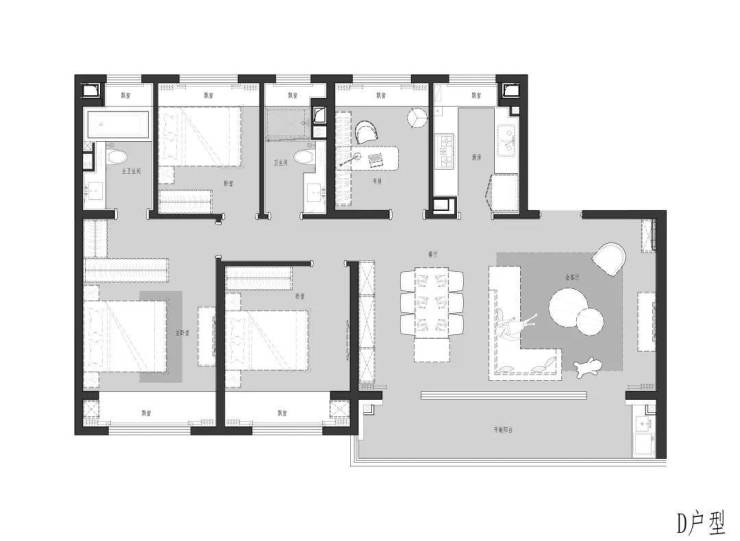
139平D户型(4-2-2)👇👇

洋房148平E户型(4-2-3)👇👇

【太湖朗郡】

✔✔✔☎太湖朗郡售楼热线:400 837 8831 ✔✔✔☎

✔✔✔☎太湖朗郡置业顾问:159 6256 4266(同微信)✔✔✔☎

✔✔✔☎太湖朗郡售楼处位置:400 837 8831 ✔✔✔☎

声明:本文由入驻焦点开放平台的作者撰写,除焦点官方账号外,观点仅代表作者本人,不代表焦点立场。