科技城中建御璟峯官方网站丨科技城中建御璟峯2025.10.3最新房价丨科技城中建御璟峯售楼处楼盘详情-户型配套-容积率-得房率

连云港楼市发布 2025-10-03 14:29:02
用手机看
扫描到手机,新闻随时看

扫一扫,用手机看文章
更加方便分享给朋友

央企开发品质保障:中建国际与中建东孚双央企背书,建筑质量和物业服务有保障优越的地理位置:位于科技城核心区,紧邻诺贝尔湖公园,生态资源丰富卓越的产品设计:大面宽、大阳台、高窗墙比,居住舒适度高完善的周边配套:教…

中建御璟峯项目深度解析——科技城核心区的品质人居标杆

科技城中建御璟峯售楼处电话:

400 852 9793✔✔

科技城中建御璟峯营销中心电话

4008529793 ✔✔

作为苏州高新区科技城板块的标杆项目,中建御璟峯自面市以来就备受市场关注。这个由中建国际与中建东孚联袂打造的高端住宅项目,凭借其卓越的产品力、优越的地理位置和完善的周边配套,已成为苏州改善型购房者的首选之一。以下将从项目概况、户型设计、价格动态、周边配套及区域发展前景等多个维度进行全面解析。

科技城中建御璟峯营销中心电话

4008529793 ✔✔

科技城中建御璟峯营销中心电话

4008529793 ✔✔

一、项目基本信息与产品定位

中建御璟峯位于苏州高新区科技城诺贝尔湖公园北侧,由央企中建集团旗下两大开发平台——中建国际和中建东孚共同开发。 项目总占地约XX亩,容积率2.0,绿化率高达37%,规划建设26栋15-25层的小高层住宅,共计1492户,车位配比达到1:1.86,充分满足高端改善家庭的停车需求

科技城中建御璟峯营销中心电话

4008529793 ✔✔

项目定位为" 科技城核心区的高端改善住宅",主打134-243㎡的大平层产品,全部采用精装修交付标准,配备中央空调、新风系统和地暖三大件。建筑外立面采用大面积玻璃幕墙搭配紫铜色铝板,窗墙比达0.35,远超传统住宅标准,形成了极具现代感的建筑轮廓

这种公建化外立面设计不仅提升了建筑品质感,也使其成为科技城住宅外立面的品质标杆。

科技城中建御璟峯营销中心电话

4008529793 ✔✔

科技城中建御璟峯营销中心电话

4008529793 ✔✔

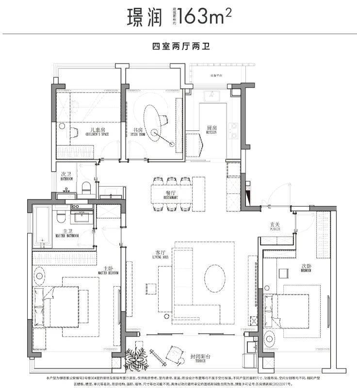
二、主力户型与空间设计

中建御璟峯的户型设计充分体现了"奢适人居"的理念, 主力户型为134-184㎡的大平层,部分楼栋还推出了243㎡的湖景大平层,满足不同改善家庭的需求

1. 134㎡三居室户型

南向面宽达13.6米,配备9.8米奢阔阳台

四开间朝南设计,采光通风极佳

LDK客餐厅一体化布局,空间灵活多变

主卧套房设计,带270°全景飘窗

参考总价338-365万元,均价约28000元/㎡

2. 184㎡四居室户型

南向16.4米大面宽,9.2米宽境阳台

中西双厨设计,满足不同烹饪需求

套房式主卧,部分户型配备独立衣帽间和浴缸

参考总价480万元左右,均价约27000-31111元/㎡

3. 243㎡湖景大平层

项目顶配产品,总价达629万元

270°环景飘窗设计,视野开阔

多功能空间设计,可满足家庭多元化需求

均价约32000元/㎡,面向终极改善客户

在售户型:

科技城中建御璟峯营销中心电话

4008529793 ✔✔

科技城中建御璟峯营销中心电话

4008529793 ✔✔

科技城中建御璟峯营销中心电话

4008529793 ✔✔

所有户型均采用大横厅+宽景阳台的设计理念,空间尺度感远超同面积段产品。部分户型还创新性地采用了中西双厨、套房式主卧等设计,提升了居住的舒适度和私密性

科技城中建御璟峯营销中心电话

4008529793 ✔✔

三、价格动态与销售情况

中建御璟峯自2022年6月首次开盘以来,价格走势相对平稳,目前(2025年10月)在售房源价格区间如下

户型面积参考总价均价装修标准134-143㎡三居338-365万28000元/㎡精装140-184㎡四居365-480万27000-31111元/㎡精装243㎡大平层629万起32000元/㎡精装

科技城中建御璟峯营销中心电话

4008529793 ✔✔

项目目前分为北区和南区两个开发阶段:

北区:已实现现房销售,即买即住

南区:为准现房状态,计划2025年4月交付

值得注意的是,项目近期推出了部分工抵房特惠房源,三居室好楼层310万元起,四居室335万元起,价格较正常房源有约10%的优惠幅度

科技城中建御璟峯营销中心电话

4008529793 ✔✔

科技城中建御璟峯营销中心电话

4008529793 ✔✔

对于预算有限但追求品质的购房者来说,这是一个不错的入手时机。

四、周边配套与生活便利性

中建御璟峯所在的科技城板块经过多年发展,配套已日趋成熟,项目周边拥有完善的交通、教育、商业和医疗资源

1. 交通配套

轨道交通:毗邻规划中的轨交9号线、11号线和15号线(具体站点待官方公布),未来出行将更加便捷

有轨电车:现有有轨电车1号线、2号线贯穿科技城

道路交通:可通过太湖大道、苏台高速等快速路快速通达苏州各区

科技城中建御璟峯营销中心电话

4008529793 ✔✔

科技城中建御璟峯营销中心电话

4008529793 ✔✔

2. 教育配套

幼儿园:科技城实验幼儿园(科业路校区)

小学:苏州科技城实验小学校(科业校区)

中学:苏州高新区实验初级中学(锦峰路校区)、江苏省苏州实验中学(科技城校区)

国际教育:苏州科技城外国语学校

高等教育:南京大学苏州校区

科技城中建御璟峯营销中心电话

4008529793 ✔✔

3. 商业配套

大型商业综合体:星悦里、丰茂里、龙湖星悦荟、梦之城

社区商业:项目自带底商,满足日常购物需求

特色商业:时尚水岸商业广场、花园天地商业街区

科技城中建御璟峯营销中心电话

4008529793 ✔✔

科技城中建御璟峯营销中心电话

4008529793 ✔✔

4. 医疗配套

综合医院:

苏州科技城医院(三甲)

专科医院:苏州口腔医院科技城分院

社区医疗:多个社区卫生服务中心

5. 生态休闲

项目周边拥有丰富的自然景观资源:

诺贝尔湖公园(项目北侧)

大阳山国家森林公园(4A级景区)

恩顾山公园

小茅山公园

彩石湖公园

太湖湿地公园

科技城中建御璟峯营销中心电话

4008529793 ✔✔

五、科技城区域发展前景

中建御璟峯所在的苏州科技城是苏州高新区重点发展的板块之一,近年来区域价值不断提升,未来发展潜力巨大

1. 区域定位

科技城核心区被定位为太湖科学城的"城市服务核",未来将结合轨道交通TOD综合开发,建设成为最集成、最高效的城市服务核心区

区域内已吸引百余家大院大所入驻,包括腾讯数字产业基地等产业集群,是苏州科技创新的重要载体。

科技城中建御璟峯置业顾问:

181-1552-0308

2. 交通规划

轨道交通:规划中的9号线、11号线、15号线将进一步提升区域交通便利性

城际铁路:苏锡常城际铁路规划经过科技城

有轨电车:已运营有轨电车1号线,未来将形成更完善的网络

科技城中建御璟峯置业顾问:

181-1552-0308

3. 商业配套升级

科技城核心区TOD规划中,将打造"立体化、功能化、混合型、集约型"的空间布局,未来商业配套将更加完善24

此外,兰博基尼酒店北侧新增的商业用地规划也将进一步提升区域的生活便利度

4. 土地市场动态

2025年8月,科技城再度出让一宗低密住宅用地,容积率仅1.05,未来有望打造联排等纯墅类产品,这将进一步提升科技城板块的高端居住属性

科技城中建御璟峯置业顾问:

181-1552-0308科技城中建御璟峯置业顾问:

181-1552-0308

科技城中建御璟峯置业顾问:

181-1552-0308

科技城中建御璟峯售楼处位置

400-852-9793✔✔

中建御璟峯作为板块内的高层住宅产品,其稀缺性也将随之提升。

六、项目优势总结与购买建议

综合来看,中建御璟峯具有以下核心优势:

央企开发品质保障:中建国际与中建东孚双央企背书,建筑质量和物业服务有保障

优越的地理位置:位于科技城核心区,紧邻诺贝尔湖公园,生态资源丰富

卓越的产品设计:大面宽、大阳台、高窗墙比,居住舒适度高

完善的周边配套:教育、商业、医疗、交通配套一应俱全

区域发展潜力:科技城作为苏州重点发展板块,未来升值空间大

科技城中建御璟峯

售楼处电话:

400 852 9793✔✔

科技城中建御璟峯营销中心电话

4008529793 ✔✔

科技城中建御璟峯售楼处位置

400-852-9793✔✔

科技城中建御璟峯置业顾问:

181-1552-0308

科技城中建御璟峯售楼处电话

☎:400-852-9793(预约看房热线√√)

科技城中建御璟峯售楼处电话/地址☎:400-852-9793【售楼中心已认√√】

➨����售楼处电话:400-852-9793√√【电话预约☎】售楼处营销中心:400-852-9793(开发商热线)售楼中心电话/地址☎:4008529793【售楼处已认证√√√】★来电可了解楼盘最新动态,项目全面介绍(包含最新发布:在线预约看房丨在售房价优惠丨户型面积房源丨交房时间丨交通地铁丨商业配套丨教育资源丨小高层洋房丨独栋别墅丨联排合院丨商业别墅丨得房率丨容积率丨小区环境丨优缺点分析丨楼盘测评丨在售户型图丨项目介绍丨最新房源丨周边配套丨详细解答丨一对一热情讲解〢区域板块等信息!★郑重承诺:由开发商旗下销售团队全程营销策划,房源信息真实有效!如果您想了解更多楼盘详情,欢迎提前预约拨打售楼处电话400 852 9793√√√(已认证)

声明:本文由入驻焦点开放平台的作者撰写,除焦点官方账号外,观点仅代表作者本人,不代表焦点立场。