中国铁建·星樾湖滨:4009983631距离土拍成交楼面价为34500元/㎡的独墅湖66号地块仅3公里,但销售价格仅3.5万元/㎡,是园区的价格洼地,未来价值可期。目前板块新盘数量极少,板块却有极强的改善需求…
园区-中铁建星樾湖滨
售楼处电话 :400 998 3631
面积129㎡-143㎡
面积112㎡-118㎡
单价:32000元/㎡左右

项目概况:
所属区位:工业园区独墅湖板块
开发商:中国铁建地产
占地面积:约4.5万方
建筑面积:约13.3万方
产品类型:面积129㎡-143㎡,面积112㎡-118㎡
绿化率:35%
容积率:2.0
总户数:747户
车位数:1082个
车位比:1:1.45
交付标准:精装修交付(含地暖,中央空调,新风系统三大件)
物业公司:中国铁建物业
傲居独墅湖芯,战略发展加持
中国铁建·星樾湖滨:4009983631位于吴淞湾未来城。市政府规划报告中提出的两个核芯区域,以“独墅湖科教创新区+吴淞湾未来城”双重利好政策发展,是未来园区战略发展的核芯区域。随着区域价值不断提升,且产业、人才、优质资源将更加集聚,独墅湖将成为“园区核芯”的发展主流。

深扒独墅湖板块,她拥有超50%科创型企业、上市公司占园区总量60%以上、年税收贡献超100亿、预计超10万+高净值人口、超5000家技术领先企业、37家上市公司、56家潜在独角兽企业、15 家“国家队”科研院所。独墅湖板块作为“苏州重要的高教产业、高端技术产业、科技创新产业聚集地”,是未来园区乃至苏州重要的产业经济主战场之一,其区域地位不言而喻。

在“产、学、研、居”方面,独墅湖板块迎来的全面发展。未来,在双政府战略背景支持下,将借势腾飞。
一高双轨三隧道,引擎园区速度
项目周边构建了“一高、双轨、多轴线”的立体交通体系,当路网连接更紧密,在独墅的交通出行也变得更加从容。

一高即是苏州东站,30分钟可随时畅享上海繁华都市生活。双轨是周地铁2号、8号线。未来通车后,2站直达产业园、3站月亮湾、大学城、4站到斜塘双湖板块。另周边有3条城市隧道:独墅湖隧道、独墅湖2期隧道、尹山湖隧道,可直接链接城市主动脉。项目周边多条路网,与城市主干道相接,迅速通达全城。


▲129㎡展示样板房实拍图

同时,星樾湖滨整盘都是全屋精装交付,三大件(新风系统、中央空调、纳米电地暖)全配齐。直接体验人性化的精装生活,省钱省力又省心。
苏州园区「中铁建星樾湖滨」:13160136853
3.5万元/㎡当红洋房,园区价格洼地
中国铁建·星樾湖滨:4009983631距离土拍成交楼面价为34500元/㎡的独墅湖66号地块仅3公里,但销售价格仅3.5万元/㎡,是园区的价格洼地,未来价值可期。


项目配套:
交通上面,地块西北面有8号线车坊站,8号线预计在2024年开通,未来2站可换乘2号线。
自驾上面,北面有东方大道,西面有松涛街,东面有星塘街,也是比较便利的,尤其是片区距离独墅湖高教区比较近。
商业上面,片区内是有几宗商业用地的,北面的文荟邻里中心已经开工建设
用地面积约8205平方米,总建筑面积约2.45万方,拟于2022年结构封顶,开始二次结构施工。
现成的商业还有普惠商业广场等,日常生活需求可一并解决。
目前板块新盘数量极少,板块却有极强的改善需求,相信未来星樾湖滨入市后也是不愁卖的存在。
另外,车坊板块还有不少待出让地块,再加上紧邻创新产业园等,是无数高精尖人才买房的第一站,未来的区域价值不容小觑。
中铁建星樾湖滨:400 998 3631

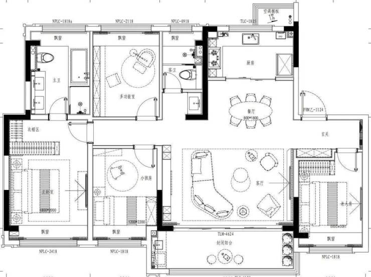
户型鉴赏:
洋房约129㎡4房2厅2卫

4房设计,3开间朝南,南向总面宽约11.9米,约5.5米长的大横厅和双联阳台;
另外还有独立入户玄关、主卧套房设计,次卫干湿分离。
洋房约143㎡4房2厅2卫

南向约15米,4开间朝南,5.7米长大横厅,还有U型厨房,主卧双台盆套房设计,所有卧室均有飘窗,整体尺度阔绰,居住起来十分舒适。
高层户型暂未释放,目前仅是地块规划图。
1#-26F标准层平面图

园区-中铁建星樾湖滨
售楼处电话:400 998 3631
中铁建星樾湖滨:13160136853