科技城中建御璟峯(聚焦2025.10.2科技城中建御璟峯)楼盘百科-中建御璟峯最新价格-楼盘评测-户型-周边配套

连云港楼市发布 2025-10-02 11:49:00
用手机看
扫描到手机,新闻随时看

扫一扫,用手机看文章
更加方便分享给朋友

中建御璟峯是由中建国际与中建东孚联袂打造的苏州高新区科技城标杆豪宅项目,荣膺2023-2024年苏州高新区改善商品住宅销售TOP1。央企品质保障:中国建筑(世界500强第13位)旗下企业开发,全球建筑经验背书…

中建御璟峯:科技城第一豪宅项目深度解析

科技城中建御璟峯售楼处电话:

400 852 9793✔✔

中建御璟峯营销中心电话

4008529793 ✔✔

中建御璟峯是由中建国际与中建东孚联袂打造的苏州高新区科技城标杆豪宅项目,荣膺2023-2024年苏州高新区改善商品住宅销售TOP1。项目位于科技城核心区域,紧邻诺贝尔湖公园北侧,坐拥得天独厚的自然景观资源。

中建御璟峯营销中心电话

4008529793 ✔✔

基本信息:

开发商:中建国际(中国建筑旗下海外业务平台)与中建东孚(中建八局全资子公司)联合开发

物业类型:70年产权住宅

容积率:2.0(低密社区)

绿化率:37%

建筑形态:15-25层小高层

车位配比:1:1.86(共2807个机动车位)

物业公司:中海物业(3.2元/月/㎡)

产品亮点

1. 国际级建筑美学

项目采用公建化外立面设计,大面积玻璃幕墙搭配紫铜色铝板, 270°转角窗设计,窗墙比达0.35(远超传统标准),形成极具现代感的建筑轮廓。铝板一体成型工艺兼具防流挂、防腐蚀特性,是目前科技城住宅外立面的品质标杆

中建御璟峯营销中心电话

4008529793 ✔✔

中建御璟峯营销中心电话

4008529793 ✔✔

2. 奢适户型设计

主力户型为134-184㎡大平层,部分户型达243㎡,全部采用大横厅+宽景阳台设计:

134㎡户型:南向13.6m面宽,9.8m奢阔阳台

184㎡户型:南向16.4m面宽,9.2m宽境阳台

特色设计: 中西双厨、套房式主卧(部分户型带衣帽间+浴缸)、270°环景飘窗

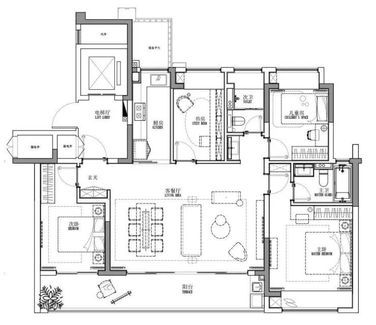
户型鉴赏

——奢阔空间尺度 突破人居想象——

中建御璟峯营销中心电话

4008529793 ✔✔

中建御璟峯营销中心电话

4008529793 ✔✔

南向约9.8米跑道级环幕大阳台

四开间朝南,约13.6米大面宽

LDK客餐厅一体化,空间灵活多变

主卧套房设计,270°全景飘窗,礼遇美好人生

中建御璟峯营销中心电话

4008529793 ✔✔

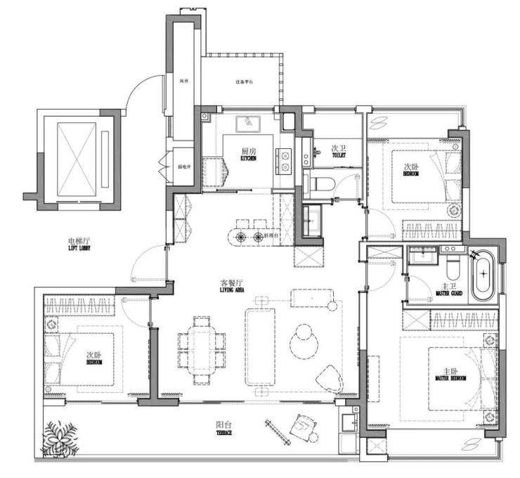
南向约6.8米阔尺横厅,朗阔格局

四开间朝南,全明通透格局

270°转角飘窗,环幕景色尽收眼底

动静功能分区合理,互不干扰

中建御璟峯营销中心电话

4008529793

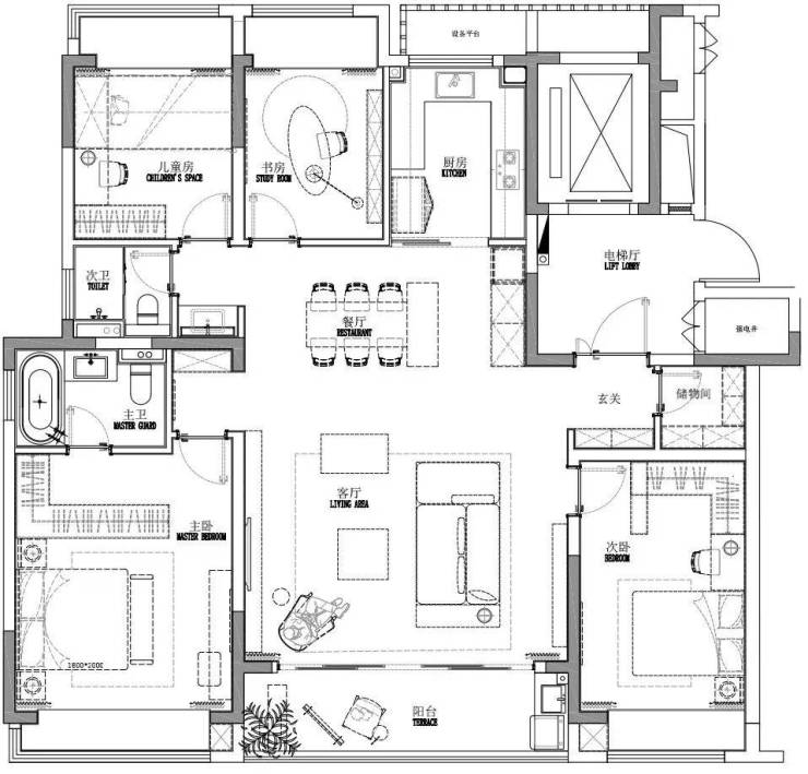
南向约13.5米面宽,约9米阔尺阳台

同级别4+1房设计,空间尺度和功能俱佳

主卧套房设计,步入式衣帽间+私属浴缸

餐客厅约40㎡超大活动空间,灵活百变

点击输入图片描述(最多30字)

中建御璟峯营销中心电话

4008529793 ✔✔

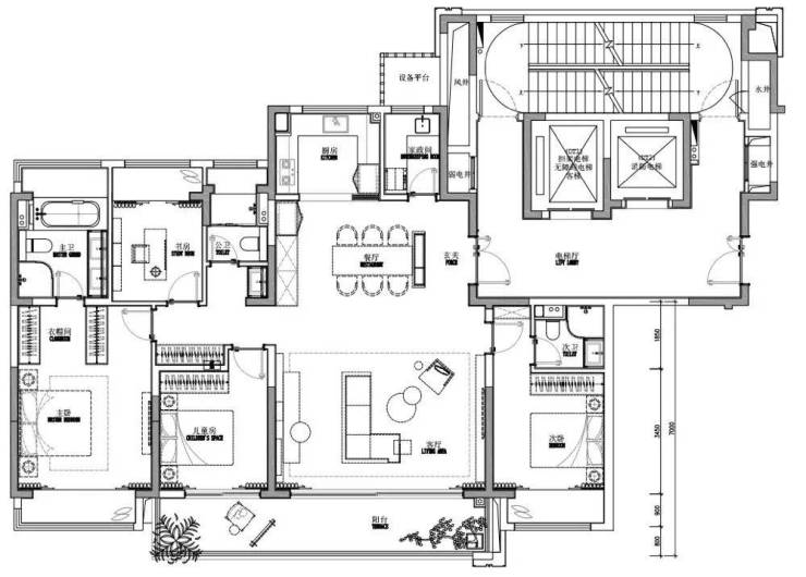
南向双套房双衣帽间设计,超大尊享空间

南向13.3米大面宽,尽享中央景观

阔尺4+1房,容纳全家幸福时光

U形厨房设计,灵活烹饪空间

点击输入图片描述(最多30字)

中建御璟峯营销中心电话

4008529793 ✔✔

约9.2米宽境阳台,享270°中央景观

超大中西式厨房,带独立家政间

双主卧套房设计,私享礼遇

一梯一户,入户子母门,豪宅专属

中建御璟峯营销中心电话

4008529793 ✔✔

独梯独户,独立电梯厅,直接电梯入户

双入户动线,家政动线分离,互不相扰

LDKB一体化空间,面积达到了110㎡+

南向双阳台设计,分别连接次卧与客厅

豪华双套房,各自带独立卫浴间

3. 精装交付标准

项目采用精装交付,配备:

中央空调+新风系统+地暖"三大件"

西门子、TOTO等国际品牌厨卫

智能家居系统

全屋定制收纳系统(如主卧L型衣柜、岛台一体餐桌等)

最新动态(截至2025年10月)

销售状态 :现房销售

政策利好:

契税优惠:140㎡以下1%,140㎡以上首套1.5%

人才补贴:符合条件者可获30-1000万购房补贴

周边配套

1. 交通网络

轨道交通:有轨电车1/2号线,规划轨交11号线25

快速路网:太湖大道、苏台高速等主干道环绕

自驾便利:可达苏州各区核心商圈

中建御璟峯营销中心电话

4008529793 ✔✔

中建御璟峯营销中心电话

4008529793 ✔✔

中建御璟峯营销中心电话

4008529793 ✔✔

2. 教育资源

基础教育:科技城实验小学(科业校区)、高新区实验初中(锦峰路校区)

优质中学:江苏省苏州实验中学(科技城校区)

国际教育:苏州科技城外国语学校

高等教育:南京大学苏州校区(在建)

中建御璟峯营销中心电话

4008529793 ✔✔

3. 商业配套

综合体:星悦里、龙湖星悦荟、梦之城(车程5分钟内)

特色商业:丰茂里、花园天地商业街区

文体设施:科技城文体中心

4. 生态资源

城市公园:诺贝尔湖公园(项目北侧)、恩顾山公园

国家景区:大阳山国家森林公园(4A级)、太湖湿地公园

湖山景观:项目高层可俯瞰湖光山色

中建御璟峯营销中心电话

4008529793 ✔✔

中建御璟峯营销中心电话

4008529793 ✔✔

中建御璟峯营销中心电话

4008529793 ✔✔

中建御璟峯营销中心电话

4008529793 ✔✔

项目核心价值

央企品质保障:中国建筑(世界500强第13位)旗下企业开发,全球建筑经验背书

现房实景呈现:部分楼栋已交付,品质眼见为实,规避期房风险

科技城核心区位:苏州数字经济创新高地,产业+生态双优配置

圈层纯粹性:全社区大户型设计,业主群体素质统一

科技城中建御璟峯

售楼处电话:

400 852 9793✔✔

中建御璟峯营销中心电话

4008529793 ✔✔

中建御璟峯售楼处位置

400-852-9793✔✔

中建御璟峯置业顾问:

181-1552-0308

科技城中建御璟峯售楼处电话

☎:400-852-9793(预约看房热线√√)

中建御璟峯售楼处电话/地址☎:400-852-9793【售楼中心已认√√】

➨����售楼处电话:400-852-9793√√【电话预约☎】售楼处营销中心:400-852-9793(开发商热线)售楼中心电话/地址☎:4008529793【售楼处已认证√√√】★来电可了解楼盘最新动态,项目全面介绍(包含最新发布:在线预约看房丨在售房价优惠丨户型面积房源丨交房时间丨交通地铁丨商业配套丨教育资源丨小高层洋房丨独栋别墅丨联排合院丨商业别墅丨得房率丨容积率丨小区环境丨优缺点分析丨楼盘测评丨在售户型图丨项目介绍丨最新房源丨周边配套丨详细解答丨一对一热情讲解〢区域板块等信息!★郑重承诺:由开发商旗下销售团队全程营销策划,房源信息真实有效!如果您想了解更多楼盘详情,欢迎提前预约拨打售楼处电话400 852 9793√√√(已认证)

声明:本文由入驻焦点开放平台的作者撰写,除焦点官方账号外,观点仅代表作者本人,不代表焦点立场。