吴江汾湖嘉乐城
自带商业综合体嘉乐城
长三角一体化先行启动区
嘉乐城售楼热线:
4008709151 ✔✔✔☎
嘉乐城置业顾问:
13182661993(同微信)✔✔✔☎
嘉乐城售楼处位置:
4008709151 ✔✔✔☎
嘉乐城预约看房,置业顾问一对一对接,享受额外优惠!
价格:10000起
交房时间:现房得房率:79%-79%
总栋数/总户数:2栋/198户
绿化/容积率:18.5%/4.9
车位比:1:1.14产权年限:70年
总楼层数:高层24-33层
物业公司/费用:好得家物业/1.7元/月/平米
几梯几户:高层1梯2户/高层2梯4户/高层3梯6户
面积:86-107-111-113-114-121-127㎡
开发商:苏州鹏云集团
楼盘位置:江苏省苏州市吴江区浙江路

嘉乐城售楼热线:
4008709151 ✔✔✔☎
项目概况
地理位置:吴江区汾湖高新区芦莘大道临沪大道,紧邻大渠荡生态公园,三面环湖(大渠荡、三白荡、洋砂荡)
规模:占地约15万㎡,总建筑面积45万㎡,容积率2.5,绿化率30%
开发商:绿地控股集团(世界500强企业),物业为绿地物业(住宅物业费3.2元/㎡·月)

嘉乐城售楼热线:
4008709151 ✔✔✔☎
在售房源(2025年9月)
住宅:
89㎡三房:均价10500元/㎡,总价93万起;
115㎡三房:均价10500元/㎡,总价120万起;
140㎡四房:均价10500元/㎡,总价147万起
商业:A2地块商住用房参考均价7580元/㎡,总价47.5万/套起

嘉乐城售楼热线:
4008709151 ✔✔✔☎
核心优势
交通便捷:距苏州南站(在建)约7公里,沪苏湖铁路、通苏嘉甬城际高铁交汇,未来20min直达上海虹桥
生态资源:周边水域覆盖率40%,绿化率42%,毗邻大渠荡生态公园
商业配套:自建20万㎡综合商业,含洲际酒店、星巴克、上影国际影城等100+品牌商家
产业支撑:周边有华为研发基地、京东智能产业园等企业,就业机会丰富

嘉乐城售楼热线:
4008709151 ✔✔✔☎
最新动态
商业升级:2025年7月完成改造,优化灯光照明、休憩设施等,新增打卡点如熊猫雕塑、宇航员造型等。
工程进度:住宅部分已建至20层(总高26层),商业部分地基施工中

嘉乐城售楼热线:
4008709151 ✔✔✔☎
周边配套
教育:上海世外教育附属汾湖实验小学(1.5公里)、汾湖实验中学(2公里)
医疗:吴江第五人民医院
民生:2025年吴江区推进老旧小区改造、公交线路优化等,区域配套持续完善

户型鉴赏:嘉乐城营销中心:
4008709151 ✔✔✔☎

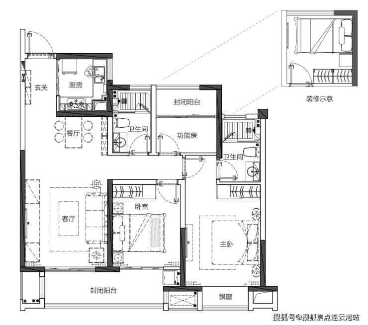
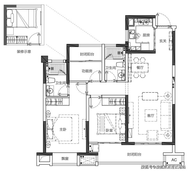
A户型127㎡3室2厅2卫

B户型111㎡3室2厅2卫

C户型114㎡3室2厅2卫




吴江汾湖嘉乐城
自带商业综合体嘉乐城
长三角一体化先行启动区
嘉乐城售楼热线:
4008709151 ✔✔✔☎
嘉乐城置业顾问:
13182661993(同微信)✔✔✔☎
嘉乐城售楼处位置:
4008709151 ✔✔✔☎
嘉乐城预约看房,置业顾问一对一对接,享受额外优惠!
➨🚩🚩售楼处电话:400-870-9151√√售楼处营销中心:400-870-9151(开发商热线)售楼中心电话/地址☎:4008709151【售楼处已认证√√√】★来电可了解楼盘最新动态,项目全面介绍(包含最新发布:在线预约看房丨在售房价优惠丨户型面积房源丨交房时间丨交通地铁丨商业配套丨教育资源丨小高层洋房丨独栋别墅丨联排合院丨商业别墅丨得房率丨容积率丨小区环境丨优缺点分析丨楼盘测评丨在售户型图丨项目介绍丨最新房源丨周边配套丨详细解答丨一对一热情讲解〢区域板块等信息!★郑重承诺:由开发商旗下销售团队全程营销策划,房源信息真实有效!如果您想了解更多楼盘详情,欢迎提前预约拨打售楼处电话400 870 9151√√√(已认证)