吴江汾湖嘉乐城官方售楼中心-苏州吴江汾湖嘉乐城楼盘详情 (2026房价+户型图) 吴江汾湖嘉乐城-楼盘鉴赏

连云港楼市发布 2025-10-24 15:38:00
用手机看
扫描到手机,新闻随时看

扫一扫,用手机看文章
更加方便分享给朋友

➨🚩🚩售楼处电话:400-870-9151√√售楼处营销中心:400-870-9151(开发商热线)

吴江汾湖嘉乐城

自带商业综合体嘉乐城

长三角一体化先行启动区

嘉乐城售楼热线:

4008709151 ✔✔✔☎

嘉乐城置业顾问:

13182661993(同微信)✔✔✔☎

嘉乐城售楼处位置:

4008709151 ✔✔✔☎

嘉乐城预约看房,置业顾问一对一对接,享受额外优惠!

价格:10000起

交房时间:现房得房率:79%-79%

总栋数/总户数:2栋/198户

绿化/容积率:18.5%/4.9

车位比:1:1.14产权年限:70年

总楼层数:高层24-33层

物业公司/费用:好得家物业/1.7元/月/平米

几梯几户:高层1梯2户/高层2梯4户/高层3梯6户

面积:86-107-111-113-114-121-127㎡

开发商:苏州鹏云集团

楼盘位置:江苏省苏州市吴江区浙江路

嘉乐城售楼热线:

4008709151 ✔✔✔☎

项目概况

地理位置:吴江区汾湖高新区城司路与洋砂路交汇处,三面环湖(大渠荡、三白荡、洋砂荡),直面大渠荡生态公园

开发规模:含20万㎡住宅、20万㎡商业及8万㎡地下车库,容积率2.4,绿化率35%-42%

物业类型:住宅、公寓、商铺、酒店等,产权年限70年/40年

嘉乐城售楼热线:

4008709151 ✔✔✔☎

核心优势

交通枢纽

距在建苏州南站约7公里,沪苏湖高铁、通苏嘉甬城际铁路交汇,未来8分钟直达上海虹桥

。紧邻沪苏浙高速、318国道,自驾30min到上海青浦

嘉乐城售楼热线:

4008709151 ✔✔✔☎

商业配套

自持20万㎡商业综合体,含洲际酒店、星巴克、万客隆超市等100+品牌,2025年完成升级改造,新增灯光秀与打卡点

嘉乐城售楼热线:

4008709151 ✔✔✔☎

生态资源

水域覆盖率40%,周边三大湖荡环绕,大渠荡生态公园野生动植物丰富

嘉乐城售楼热线:

4008709151 ✔✔✔☎

在售信息(2025年10月)

住宅:现房销售,户型90-132㎡,均价17525元/㎡,总价138万起

商办:61㎡二居室参考单价8000元/㎡,层高5.6米

优惠:限时赠送装修礼包及购物卡

嘉乐城售楼热线:

4008709151 ✔✔✔☎

周边配套

教育:上海世外附属汾湖实验小学(1.3公里)、中加枫华国际学校

医疗:吴江区第五人民医院(3公里)

户型鉴赏:嘉乐城营销中心:

4008709151 ✔✔✔☎

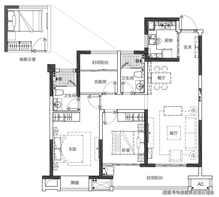
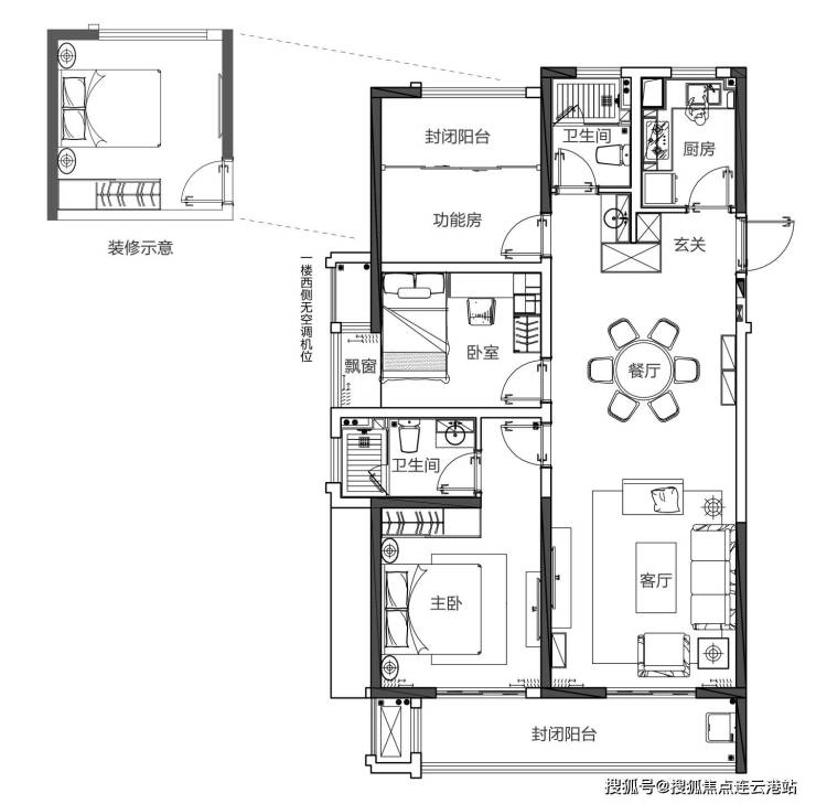
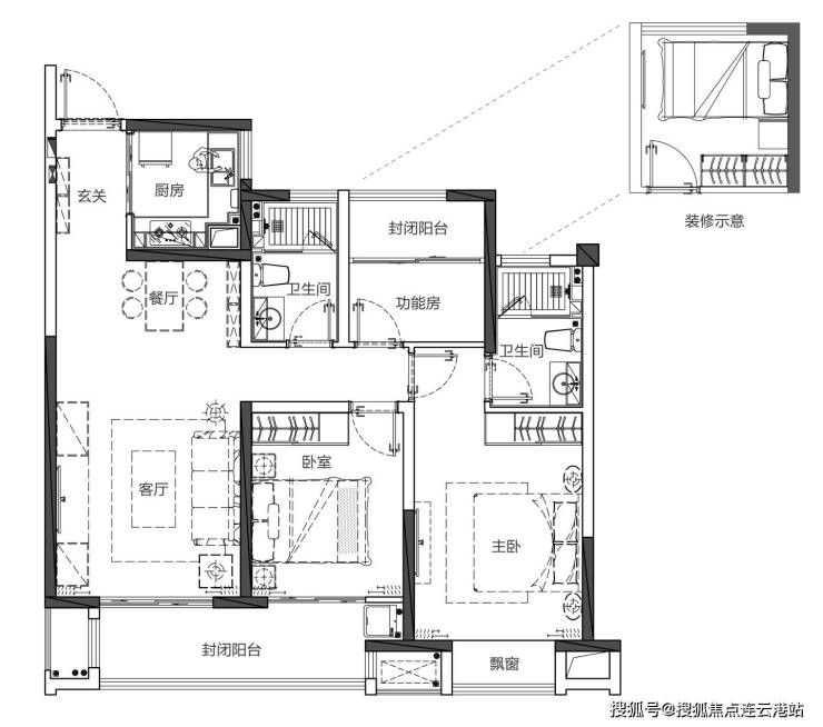
A户型127㎡3室2厅2卫

B户型111㎡3室2厅2卫

C户型114㎡3室2厅2卫

吴江汾湖嘉乐城

自带商业综合体嘉乐城

长三角一体化先行启动区

嘉乐城售楼热线:

4008709151 ✔✔✔☎

嘉乐城置业顾问:

13182661993(同微信)✔✔✔☎

嘉乐城售楼处位置:

4008709151 ✔✔✔☎

嘉乐城预约看房,置业顾问一对一对接,享受额外优惠!

➨🚩🚩售楼处电话:400-870-9151√√售楼处营销中心:400-870-9151(开发商热线)售楼中心电话/地址☎:4008709151【售楼处已认证√√√】★来电可了解楼盘最新动态,项目全面介绍(包含最新发布:在线预约看房丨在售房价优惠丨户型面积房源丨交房时间丨交通地铁丨商业配套丨教育资源丨小高层洋房丨独栋别墅丨联排合院丨商业别墅丨得房率丨容积率丨小区环境丨优缺点分析丨楼盘测评丨在售户型图丨项目介绍丨最新房源丨周边配套丨详细解答丨一对一热情讲解〢区域板块等信息!★郑重承诺:由开发商旗下销售团队全程营销策划,房源信息真实有效!如果您想了解更多楼盘详情,欢迎提前预约拨打售楼处电话400 870 9151√√√(已认证)

声明:本文由入驻焦点开放平台的作者撰写,除焦点官方账号外,观点仅代表作者本人,不代表焦点立场。