雁云庭(营销中心)官方网站-销售中心(售楼处)欢迎您-地址价格-户型-小区环境-楼盘详情-交房时间-周边配套-雁云庭售楼处电话

连云港楼市发布 2025-10-10 17:37:00
用手机看
扫描到手机,新闻随时看

扫一扫,用手机看文章
更加方便分享给朋友

吴中甪直-雁云庭‌ 官方售楼处电话: 4008083612✔✔ 销售总监:13013766193【微信同步】 吴中甪直-雁云庭‌售楼处热线 ☎:4008083612(预约看房热线√√) 雁云庭‌售楼处电话/地址☎:4008083612【售楼中心已认√√】

吴中甪直雁云庭四代宅高层+叠墅

吴中甪直-雁云庭

官方售楼处电话:

4008083612✔✔

销售总监:13013766193【微信同步】

吴中甪直-雁云庭售楼处热线

☎:4008083612(预约看房热线√√)

雁云庭售楼处电话/地址☎:4008083612【售楼中心已认√√】

价格:待定

总楼栋:8幢4F叠墅+5幢24-25F四代高层产品

容积率:1.8

占地面积:37740.2平

总建筑面积:102549.31平

开发商:斜港置业、吴城置业和甪直房地产开发公司联合

地址:吴中区甪直镇鸣市路南侧、经三路东侧

销售总监:13013766193【微信同步】

项目位于甪直镇鸣市路南侧、经三路东侧,容积率1.8,占地面积约3.8万㎡,2023年12月被斜港置业&吴城置业&甪直房地产开发竞得,成交总价约6.8亿,成交楼面地价10000元/㎡,未来房价或许会有惊喜。

产品亮点:

第四代住宅设计

高层采用奇偶错层布局,奇数层南向、偶数层北向设置空中庭院,实现垂直绿化;户型为4房2厅3卫,客餐厅一体化设计,装标≥2000元/㎡

低密叠墅组合

下叠:附赠独立院子,挑空客厅设计,南向卧室连通阳台

上叠:顶层设星空阁楼与超大露台,打造私人空中花园

配套与区位:

交通:依赖自驾,北接甪直大道(连通金鸡湖大道),南靠东方大道(通往独墅湖高教区)

教育:北侧星泽实验学校(星海教育集团)已投用

商业:规划1座邻里中心、2条商业水街,现有南山维乐城等配套

市场动态:雁云庭售楼热线:

项目周边新房高层均价约2.2万+/㎡,叠墅2.8-3万/㎡,雁云庭售价待定

作为板块首个四代宅,其低密叠墅与空中庭院设计有望提升区域房价天花板 。文案需要包含标题和正文,需要使用丰富的emoji和 的语气, 最后带相关性强的tag。

DS-V3 为你解答

销售总监:13013766193【微信同步】

✨ 【标题】 ✨

「苏州甪直新晋顶流!四代空中庭院+低密叠墅,这波人居升级我先冲为敬🏡✨」

💎 正文 💎

姐妹们!发现苏州吴中区的神仙盘了‼️ #雁云庭 真的把“住在花园里”玩明白了🌿~开发商斜港&吴城&甪直联合出品,1.8低密容积率,8幢叠墅+5幢四代高层,这配置直接拉满!

🔥 【产品亮点暴击】 🔥

✅ 四代高层·垂直绿化:奇偶层错位空中庭院!🌱 奇数层南向、偶数层北向全赠送,4房2厅3卫+客餐一体,装标≥2000元/㎡,阳台直接变“植物园”~

✅ 叠墅·私享天地:

▫️ 下叠:独立院子+挑空客厅,南向卧室直通阳光露台☀️

▫️ 上叠:顶层星空阁楼+超大露台,晚上躺着数星星✨这不就是梦中情房吗!

📍 【区位配套速递】 📍

🚗 自驾党狂喜!5分钟上甪直大道,一脚油门到金鸡湖~

🏫 星海教育集团 星泽实验学校 已开学,娃的学区稳了👩🎓

🛍️ 规划邻里中心+商业水街,南山维乐城就在旁边,奶茶火锅随时约🍲

💡 【市场彩蛋】 💡

周边新房高层2.2万+/㎡,叠墅2.8-3万/㎡,但!雁云庭作为 甪直首个四代宅,空中庭院+叠墅组合,价格可能藏惊喜🎁(懂的都懂~)

📞 速戳售楼处:400-808-3612 ✔️ 预约看房送精美好礼🎁

(偷偷说:早鸟优惠名额有限,冲鸭!)

🏷️ #苏州新房 #四代住宅 #低密叠墅 #甪直买房 #雁云庭

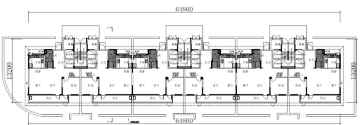
规划户型出炉

雁云庭此前公示了4#、9#的户型标准层示意图。

4#,4F叠墅

9#,25F高层,2梯2户

4房2厅3卫

奇数层

4房2厅3卫

偶数层

吴中甪直雁云庭四代宅高层+叠墅

吴中甪直-雁云庭

官方售楼处电话:

4008083612✔✔

销售总监:13013766193【微信同步】

吴中甪直-雁云庭售楼处热线

☎:4008083612(预约看房热线√√)

雁云庭售楼处电话/地址☎:4008083612【售楼中心已认√√】

声明:本文由入驻焦点开放平台的作者撰写,除焦点官方账号外,观点仅代表作者本人,不代表焦点立场。