宝业凤樾上筑首页网站-‌萧山坎山宝业凤樾上筑售楼部地址丨2025‌萧山坎山宝业凤樾上筑-最新楼盘评测-户型配套

连云港楼市发布 2024-11-30 19:07:00
用手机看
扫描到手机,新闻随时看

扫一扫,用手机看文章
更加方便分享给朋友

坎山住宅,158万起4自持,2公租,3.6在售,7号楼两个单元地铁7号线坎山直线距离1.7公里售楼热线:400-998-3632(预约专线)开盘时间:2022-9-7(分布楼栋6号楼,3号楼)售楼热线:400…

萧山坎山【宝业凤樾上筑】

面积89-105-108-128方

均价2万/平

总价158万起~260万

交付时间2024.7月

☎️VIPline:4009983632【售楼热线】☎️

☎️置业热线:17132883311(同微信)☎️

➤售楼处〢欢迎咨询〢提前预约可享内部优惠〢➤

地铁新盘 劲爆来袭---

凤樾上筑住宅

——奥体东 双地铁 不摇号——

单价只需17000多起精装修

坎山住宅,158万起

项目地址:浙江省杭州市萧山区坎山荣新路

——【项目基础信息】——

【区域板块】:坎山

【占地面积】:约16235平米

【容积率】:2

【产权性质】: 70年

【面积】:89-105-108-128方

【层 高】:2.9米

【总楼层】:14层,两梯四户

【体量】:共7栋,292户,可售246户。

1.4自持,2公租,3.6在售,7号楼两个单元

【车位】:1:1.7,12万

【装修标准】:3000元

【得房率】:82%

【绿化率】:31%

【水电】: 民用水电

【总价】:160万起~260万

【均价】:20350元/平

【拿地时间】:2021.5月

【交付时间】:2024.7月

【开发商】:宝业

【物业公司】: 物业:宝业物业,物业费2.5元+0.5元能耗费

【外销证】:无

地铁7号线坎山直线距离1.7公里

项目公司名称:杭州宝业房地产开发有限公司

售楼热线:400-998-3632(预约专线)

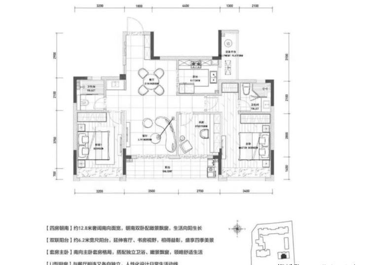
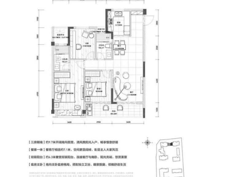
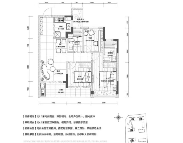
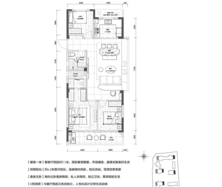
【在售户型信息】

【A户型】:南朝向,3室2厅2卫,建筑面积89㎡,178万/套。

【B2】:南朝向,3室2厅2卫,建筑面积105㎡,198万/套。

【C】:南朝向,4室2厅2卫,建筑面积128㎡,258万/套。

【B3】:南朝向,3室2厅2卫,建筑面积108㎡,218万/套。

【B1】:南朝向,3室2厅2卫,建筑面积105㎡,198万/套。

开盘时间:2022-9-7(分布楼栋6号楼,3号楼)

交房时间:2024(分布楼栋2号楼,1号楼,6号楼,3号楼,7号楼,4号楼,5号楼)

售楼热线:400-998-3632(预约专线)

【户型鉴赏】

萧山坎山【宝业凤樾上筑】

☎️VIPline:4009983632【售楼热线】☎️

☎️置业热线:17132883311(同微信)☎️

➤售楼处〢欢迎咨询〢提前预约可享内部优惠〢➤

声明:本文由入驻焦点开放平台的作者撰写,除焦点官方账号外,观点仅代表作者本人,不代表焦点立场。