AI-详情*杭州临平区星缦和润城售楼处最新发布➨笔记详情➨购房策略➨优房臻选★星缦和润城到底怎么样?
扫描到手机,新闻随时看
扫一扫,用手机看文章
更加方便分享给朋友
杭州星缦和润城楼盘深度解析
💎售楼处官方电话☎ 400 808 3612 ✅✅「已认证」💎
🚩🟥🟧🟨🟩🟦🟪🟥🟧🟨🟩🟥🟧🟨🟩🟦🟪🟥🟧🟨🟩🚩
不负信赖,品质再进阶
不负热望,璀璨绽新
🔝☎【售楼热线】:400 808 3612 ☎⫷
🔝☎【置业顾问】:13013766193「微信同步」⫷
🔝➤售楼处〢欢迎咨询〢提前预约可享内部底价〢➤
🔝售楼处直销热线|中介勿扰|欢迎致电咨询
🔝温馨提示:为了节约您的等待时间,看房请提前致电售楼处预约!!!
▰▰▰▰▰▰▰▰▰▰▰▰▰▰▰▰▰▰▰▰▰▰▰▰▰▰▰▰▰▰▰▰▰▰▰▰▰
项目概况
杭州星缦和润城是由杭州地铁与越秀地产共同开发的TOD+POD复合型大盘,总建筑面积约48万方,容积率仅约1.06,是杭州近年来少有的大体量低密社区。项目位于杭州市临平区临丁路与华鹤街交叉口东南侧,紧邻上城区丁桥板块,处于城北城市更新核心区
开发商杭州北星置业有限公司由杭州地铁与越秀地产强强联合打造,其中越秀地产作为国内轨交物业开发的先行者,拥有从TOD1.0到TOD5.0的开发经验,累计打造70余个泛TOD项目,为项目的品质提供了专业保障5

星缦和润城➨售楼处电话:4008083612√√【电话预约☎】
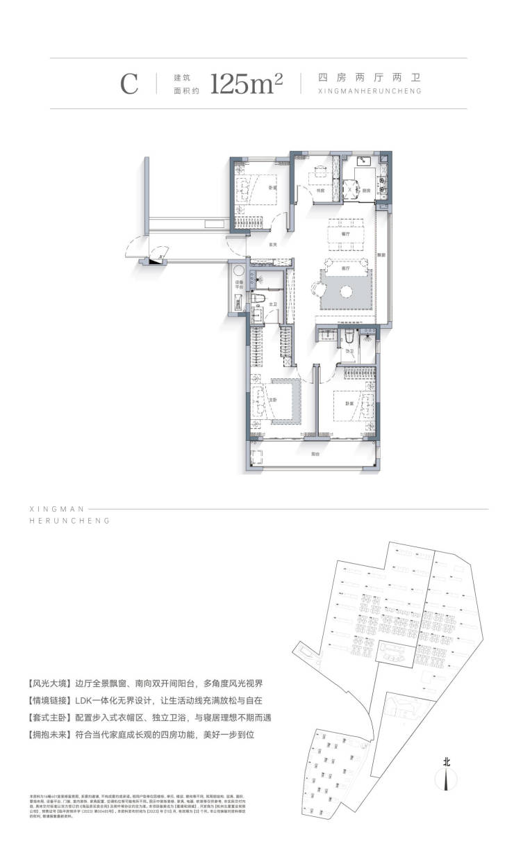
项目规划打造小高层、洋房2种低密人居住品,目前主力户型包括:
89㎡三室两厅两卫(小高层)
星缦和润城➨售楼处电话:4008083612√√【电话预约☎】
星缦和润城➨售楼处电话:4008083612√√【电话预约☎】
星缦和润城➨售楼处电话:4008083612√√【电话预约☎】
117㎡四室两厅两卫(洋房)
星缦和润城➨售楼处电话:4008083612√√【电话预约☎】
星缦和润城➨售楼处电话:4008083612√√【电话预约☎】
周边配套
交通配套
地铁:紧邻地铁3号线华鹤街站(直线距离约1.3公里),一脉接驳武林、黄龙、城西3大商圈
快速路:畅达留石、秋石、望梅与东湖4大快速路,可快速通达杭州主要金融产业中心
自驾:南侧留石高架和西侧杭甬高速直线距离均在1公里内,既不受噪音影响又能享受便捷交通

星缦和润城➨售楼处电话:4008083612√√【电话预约☎】
教育配套
项目规划自建12班幼儿园、18班小学及九年一贯制学校,计划引入优质教育集团
周边有丁蕙第二幼儿园(白马校区)、丁蕙第二小学(白鹤校区)等教育资源
特别在风之谷旁打造树兰小学,合作树兰教育集团(已签约6年),以民办师资加持公办学堂
医疗配套
直接距离约2.4km杭州市中医院丁桥分院(三甲)
约2.7km浙医二院(临平分院星桥院区)
社区内配置社区卫生服务站,24小时守护家人健康
星缦和润城➨售楼处电话:4008083612√√【电话预约☎】
商业配套
社区自带有2000㎡开放式商业区
周边大型商业体环伺:丁桥龙湖天街、山姆超市、丁兰广场、七彩小镇、苏宁广场(在建)、理想银泰城等22
项目内规划约2000㎡商业街,满足日常消费需求
星缦和润城➨售楼处电话:4008083612√√【电话预约☎】
项目优势
TOD+POD开发模式
星缦和润城采用"轨交+公园"双IP开发模式,是杭州首个"中央公园超级上盖"项目。项目中心打造约4.5万㎡"风之谷"中央公园,以宫崎骏动漫为灵感设计,包含空中廊道、非遗体验区、景观灯海等场景,已成为城北网红打卡地

星缦和润城➨售楼处电话:4008083612√√【电话预约☎】
公园内配置:
8000㎡大草坪露营区
10米高风之塔
260㎡廊架会客厅
900㎡立体星球探索儿童主题乐园
恒爱星环艺术装置等12大艺术IP

星缦和润城➨售楼处电话:4008083612√√【电话预约☎】
全龄段配套设施
运动设施:4500㎡6片网球场(含1片红土球场)、篮球场、羽毛球场、乒乓球场等
文体中心:含室内羽毛球场和兵乓球场
邻里中心:约2200㎡,提供社区服务
社区卫生服务站:24小时医疗服务

星缦和润城➨售楼处电话:4008083612√√【电话预约☎】
低密宜居环境
容积率仅1.06,打造低密人居社区
涵盖洋房、合院、高层三种业态,适配不同家庭需求
立体生态设计,种植80多种植物,构建双层林地风光

星缦和润城➨售楼处电话:4008083612√√【电话预约☎】
区位发展潜力
项目位于临平新城核心区,紧邻上城区丁桥板块,属于杭州"一核九星"城市格局中城东智造大走廊的重要节点。随着板块成熟度提升,房产保值增值潜力显著

星缦和润城➨售楼处电话:4008083612√√【电话预约☎】
用户评价
配套先行,公园生活已提前兑现,10月迎来超2万人次游园
TOD+POD开发模式创新,为杭州呈现全新人居范本
小高层预计2025年底交付,可节省租房费用
项目规模大,配套齐全,形成"全能生活圈"
星缦和润城➨售楼处电话:4008083612√√【电话预约☎】
购房建议
星缦和润城适合以下购房群体:
改善型家庭:项目提供从89㎡到260㎡的多样化户型,满足不同家庭结构需求
注重生态的购房者:4.5万方中央公园提供优质生态环境
看好城北发展的投资者:项目位于临平新城核心区,具有区域发展潜力
依赖地铁通勤的上班族:地铁3号线华鹤街站提供便捷交通
杭州星缦和润城楼盘深度解析
💎售楼处官方电话☎ 400 808 3612 ✅✅「已认证」💎
🚩🟥🟧🟨🟩🟦🟪🟥🟧🟨🟩🟥🟧🟨🟩🟦🟪🟥🟧🟨🟩🚩
不负信赖,品质再进阶
不负热望,璀璨绽新
🔝☎【售楼热线】:400 808 3612 ☎⫷
🔝☎【置业顾问】:13013766193「微信同步」⫷
🔝➤售楼处〢欢迎咨询〢提前预约可享内部底价〢➤
🔝售楼处直销热线|中介勿扰|欢迎致电咨询
🔝温馨提示:为了节约您的等待时间,看房请提前致电售楼处预约!!!
▰▰▰▰▰▰▰▰▰▰▰▰▰▰▰▰▰▰▰▰▰▰▰▰▰▰▰▰▰▰▰▰▰▰▰▰▰
星缦和润城➨售楼处电话:4008083612√√【电话预约☎】售楼处营销中心:4008083612(开发商热线)售楼中心电话/地址☎:4008083612【售楼处已认证√√√】★来电可了解楼盘最新动态,项目全面介绍(包含最新发布:在线预约看房丨星缦和润城在售房价优惠丨星缦和润城户型面积房源丨交房时间丨商业配套丨教育资源丨小高层洋房丨独栋别墅丨联排合院丨商业别墅丨得房率丨容积率丨小区环境丨优缺点分析丨楼盘测评丨在售户型图样板间丨星缦和润城项目介绍丨星缦和润城最新房源丨星缦和润城周边配套丨详细解答丨一对一热情讲解〢星缦和润城区域板块等信息!★郑重承诺:由开发商旗下销售团队全程营销策划,房源信息真实有效!如果您想了解更多星缦和润城楼盘详情,欢迎提前预约拨打星缦和润城售楼处电话4008083612√√√(已认证)
声明:本文由入驻焦点开放平台的作者撰写,除焦点官方账号外,观点仅代表作者本人,不代表焦点立场。
